污染源监测信息披露
时间:2022-09-01浏览:
污染源监测信息披露
单位名称:山东钢铁集团永锋临港有限公司
统一社会信用代码:91371300MA3PH4Y80L
行业类别:黑色金属冶炼和压延加工
法定代表人(实际负责人):逄晓男
技术负责人:杨永鑫
联系电话:15588936518
编制日期:2022年9月1日
一、企业基本信息
表1-1企业基本信息表
|
内容 |
备注 |
|
|
企业名称 |
山东钢铁集团永锋临港有限公司 |
|
|
社会信用代码 |
91371300MA3PH4Y80L |
|
|
注册地址 |
山东省临沂市临港开发区坪上镇中兴商务企业发展中心 |
|
|
生产地址 |
临沂临港经济开发区高端不锈钢与先进特钢园区内 |
|
|
生产经营场所中心经度 |
119°4′18.44″ |
|
|
生产经营场所中心纬度 |
35°8′11.11″ |
|
|
邮政编码 |
276600 |
|
|
行业类别 |
黑色金属冶炼和压延加工业 |
|
|
法定代表人 |
逄晓男 |
|
|
环保联系人 |
吕慧 |
|
|
联系电话 |
15589195196 |
|
|
排污许可编号 |
91371300MA3PH4Y80L001P |
|
|
环评批复文号 |
临港行审投决字[2020]59号 |
|
|
自行监测委托机构名称 |
山东东萍莱科环保科技有限公司、山东元通监测有限公司 |
|
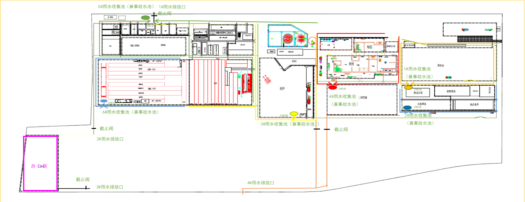
厂区平面布置图
二、自行监测方案
废气自行监测内容表
|
监测项目 |
排放口 |
监测点位 |
监测频次 |
执行排放标准 |
标准限值 |
监测方法 |
分析仪器 |
备注 |
|
颗粒物 |
DA001 |
原料1#除尘 |
1次/两年 |
钢铁工业大气污染物排放标准DB37/990-2019 |
10mg/Nm3 |
固定污染源排气中颗粒物测定与气态污染物采样方法 GB/T 16157-1996,固定污染源废气低浓度颗粒物的测定重量HJ 836-2017 |
自动烟尘(气)测试仪 |
手工监测 |
|
颗粒物 |
DA002 |
原料2#除尘 |
1次/两年 |
钢铁工业大气污染物排放标准DB37/990-2019 |
10mg/Nm3 |
固定污染源排气中颗粒物测定与气态污染物采样方法 GB/T 16157-1996,固定污染源废气低浓度颗粒物的测定重量HJ 836-2017 |
自动烟尘(气)测试仪 |
手工监测 |
|
颗粒物 |
DA003 |
原料3#除尘 |
1次/两年 |
钢铁工业大气污染物排放标准DB37/990-2019 |
10mg/Nm3 |
固定污染源排气中颗粒物测定与气态污染物采样方法 GB/T 16157-1996,固定污染源废气低浓度颗粒物的测定重量HJ 836-2017 |
自动烟尘(气)测试仪 |
手工监测 |
|
颗粒物 |
DA004 |
原料4#除尘 |
1次/两年 |
钢铁工业大气污染物排放标准DB37/990-2019 |
10mg/Nm3 |
固定污染源排气中颗粒物测定与气态污染物采样方法 GB/T 16157-1996,固定污染源废气低浓度颗粒物的测定重量HJ 836-2017 |
自动烟尘(气)测试仪 |
手工监测 |
|
颗粒物 |
DA005 |
原料5#除尘 |
1次/两年 |
钢铁工业大气污染物排放标准DB37/990-2019 |
10mg/Nm3 |
固定污染源排气中颗粒物测定与气态污染物采样方法 GB/T 16157-1996,固定污染源废气低浓度颗粒物的测定重量HJ 836-2017 |
自动烟尘(气)测试仪 |
手工监测 |
|
颗粒物 |
DA006 |
原料6#除尘 |
1次/两年 |
钢铁工业大气污染物排放标准DB37/990-2019 |
10mg/Nm3 |
固定污染源排气中颗粒物测定与气态污染物采样方法 GB/T 16157-1996,固定污染源废气低浓度颗粒物的测定重量HJ 836-2017 |
自动烟尘(气)测试仪 |
手工监测 |
|
颗粒物 |
DA007 |
原料7#除尘 |
1次/两年 |
钢铁工业大气污染物排放标准DB37/990-2019 |
10mg/Nm3 |
固定污染源排气中颗粒物测定与气态污染物采样方法 GB/T 16157-1996,固定污染源废气低浓度颗粒物的测定重量HJ 836-2017 |
自动烟尘(气)测试仪 |
手工监测 |
|
颗粒物 |
DA008 |
原料8#除尘 |
1次/两年 |
钢铁工业大气污染物排放标准DB37/990-2019 |
10mg/Nm3 |
固定污染源排气中颗粒物测定与气态污染物采样方法 GB/T 16157-1996,固定污染源废气低浓度颗粒物的测定重量HJ 836-2017 |
自动烟尘(气)测试仪 |
手工监测 |
|
铅及其化合物 |
DA009 |
烧结球团脱硫脱硝 |
1次/季 |
钢铁工业大气污染物排放标准DB37/990-2019 |
0.9mg/Nm3 |
固定污染源废气铅的测定火焰原子吸收分光光度法HJ 685 |
原子吸收分光光度计 |
手工监测 |
|
氮氧化物 |
DA009 |
烧结球团脱硫脱硝 |
自动监测 |
钢铁工业大气污染物排放标准DB37/990-2019 |
50mg/Nm3 |
固定污染源废气 氮氧化物的测定 非分散红外吸收法HJ 692-2014,固定污染源排气中氮氧化物的测定 紫外分光光度法 HJ/T 42-1999 |
烟气自动连续监测仪 |
|
|
氟化物 |
DA009 |
烧结球团脱硫脱硝 |
1次/季 |
钢铁工业大气污染物排放标准DB37/990-2019 |
3mg/Nm3 |
大气固定污染源 氟化物的测定 离子选择电极法HJ/T 67-2001 |
氟离子电极 |
手工监测 |
|
二氧化硫 |
DA009 |
烧结球团脱硫脱硝 |
自动监测 |
钢铁工业大气污染物排放标准DB37/990-2019 |
35mg/Nm3 |
固定污染源废气 二氧化硫的测定 非分散红外吸收法HJ 629-2011,固定污染源废气 二氧化硫的测定 便携式紫外吸收法HJ 1131-2020 |
烟气自动连续监测仪 |
|
|
二噁英类 |
DA009 |
烧结球团脱硫脱硝 |
1次/年 |
钢铁工业大气污染物排放标准DB37/990-2019 |
0.5ng-TEQ/m3 |
环境空气和废气 二噁英类的测定 同位素稀释高分辨气相色谱-高分辨质谱法HJ/T 77.2-2008 |
磁式质谱仪 |
手工监测 |
|
颗粒物 |
DA009 |
烧结球团脱硫脱硝 |
自动监测 |
钢铁工业大气污染物排放标准DB37/990-2019 |
10mg/Nm3 |
固定污染源排气中颗粒物测定与气态污染物采样方法 GB/T 16157-1996,固定污染源废气低浓度颗粒物的测定重量HJ 836-2017 |
烟气自动连续监测仪 |
|
|
颗粒物 |
DA010 |
烧结机尾除尘 |
自动监测 |
钢铁工业大气污染物排放标准DB37/990-2019 |
10mg/Nm3 |
固定污染源排气中颗粒物测定与气态污染物采样方法 GB/T 16157-1996,固定污染源废气低浓度颗粒物的测定重量HJ 836-2017 |
烟气自动连续监测仪 |
|
|
颗粒物 |
DA011 |
烧结配料除尘 |
1次/季 |
钢铁工业大气污染物排放标准DB37/990-2019 |
10mg/Nm3 |
固定污染源排气中颗粒物测定与气态污染物采样方法 GB/T 16157-1996,固定污染源废气低浓度颗粒物的测定重量HJ 836-2017 |
自动烟尘(气)测试仪 |
手工监测 |
|
颗粒物 |
DA012 |
烧结燃破除尘 |
1次/年 |
钢铁工业大气污染物排放标准DB37/990-2019 |
10mg/Nm3 |
固定污染源排气中颗粒物测定与气态污染物采样方法 GB/T 16157-1996,固定污染源废气低浓度颗粒物的测定重量HJ 836-2017 |
自动烟尘(气)测试仪 |
手工监测 |
|
颗粒物 |
DA013 |
烧结筛分除尘 |
1次/季 |
钢铁工业大气污染物排放标准DB37/990-2019 |
10mg/Nm3 |
固定污染源排气中颗粒物测定与气态污染物采样方法 GB/T 16157-1996,固定污染源废气低浓度颗粒物的测定重量HJ 836-2017 |
自动烟尘(气)测试仪 |
手工监测 |
|
颗粒物 |
DA014 |
烧结一混除尘 |
1次/年 |
钢铁工业大气污染物排放标准DB37/990-2019 |
10mg/Nm3 |
固定污染源排气中颗粒物测定与气态污染物采样方法 GB/T 16157-1996,固定污染源废气低浓度颗粒物的测定重量HJ 836-2017 |
自动烟尘(气)测试仪 |
手工监测 |
|
颗粒物 |
DA015 |
烧结二混除尘 |
1次/年 |
钢铁工业大气污染物排放标准DB37/990-2019 |
10mg/Nm3 |
固定污染源排气中颗粒物测定与气态污染物采样方法 GB/T 16157-1996,固定污染源废气低浓度颗粒物的测定重量HJ 836-2017 |
自动烟尘(气)测试仪 |
手工监测 |
|
颗粒物 |
DA016 |
球团烘干机除尘 |
1次/年 |
钢铁工业大气污染物排放标准DB37/990-2019 |
10mg/Nm3 |
固定污染源排气中颗粒物测定与气态污染物采样方法 GB/T 16157-1996,固定污染源废气低浓度颗粒物的测定重量HJ 836-2017 |
自动烟尘(气)测试仪 |
手工监测 |
|
颗粒物 |
DA017 |
球团干燥一段除尘 |
1次/年 |
钢铁工业大气污染物排放标准DB37/990-2019 |
10mg/Nm3 |
固定污染源排气中颗粒物测定与气态污染物采样方法 GB/T 16157-1996,固定污染源废气低浓度颗粒物的测定重量HJ 836-2017 |
自动烟尘(气)测试仪 |
手工监测 |
|
颗粒物 |
DA018 |
球团环境除尘 |
1次/年 |
钢铁工业大气污染物排放标准DB37/990-2019 |
10mg/Nm3 |
固定污染源排气中颗粒物测定与气态污染物采样方法 GB/T 16157-1996,固定污染源废气低浓度颗粒物的测定重量HJ 836-2017 |
自动烟尘(气)测试仪 |
手工监测 |
|
颗粒物 |
DA019 |
1#高炉矿槽除尘 |
自动监测 |
钢铁工业大气污染物排放标准DB37/990-2019 |
10mg/Nm3 |
固定污染源排气中颗粒物测定与气态污染物采样方法 GB/T 16157-1996,固定污染源废气低浓度颗粒物的测定重量HJ 836-2017 |
烟气自动连续监测仪 |
|
|
颗粒物 |
DA020 |
1#高炉出铁场除尘 |
自动监测 |
钢铁工业大气污染物排放标准DB37/990-2019 |
10mg/Nm3 |
固定污染源排气中颗粒物测定与气态污染物采样方法 GB/T 16157-1996,固定污染源废气低浓度颗粒物的测定重量HJ 836-2017 |
烟气自动连续监测仪 |
|
|
颗粒物 |
DA021 |
1#喷煤收尘器 |
1次/年 |
钢铁工业大气污染物排放标准DB37/990-2019 |
10mg/Nm3 |
固定污染源排气中颗粒物测定与气态污染物采样方法 GB/T 16157-1996,固定污染源废气低浓度颗粒物的测定重量HJ 836-2017 |
自动烟尘(气)测试仪 |
手工监测 |
|
颗粒物 |
DA022 |
2#高炉矿槽除尘 |
自动监测 |
钢铁工业大气污染物排放标准DB37/990-2019 |
10mg/Nm3 |
固定污染源排气中颗粒物测定与气态污染物采样方法 GB/T 16157-1996,固定污染源废气低浓度颗粒物的测定重量HJ 836-2017 |
烟气自动连续监测仪 |
|
|
颗粒物 |
DA023 |
2#高炉出铁场除尘 |
自动监测 |
钢铁工业大气污染物排放标准DB37/990-2019 |
10mg/Nm3 |
固定污染源排气中颗粒物测定与气态污染物采样方法 GB/T 16157-1996,固定污染源废气低浓度颗粒物的测定重量HJ 836-2017 |
烟气自动连续监测仪 |
|
|
颗粒物 |
DA024 |
2#喷煤收尘器 |
1次/年 |
钢铁工业大气污染物排放标准DB37/990-2019 |
10mg/Nm3 |
固定污染源排气中颗粒物测定与气态污染物采样方法 GB/T 16157-1996,固定污染源废气低浓度颗粒物的测定重量HJ 836-2017 |
自动烟尘(气)测试仪 |
手工监测 |
|
氮氧化物 |
DA025 |
1#高炉热风炉 |
自动监测 |
钢铁工业大气污染物排放标准DB37/990-2019 |
150mg/Nm3 |
固定污染源废气 氮氧化物的测定 非分散红外吸收法HJ 692-2014,固定污染源排气中氮氧化物的测定 紫外分光光度法 HJ/T 42-1999 |
烟气自动连续监测仪 |
|
|
二氧化硫 |
DA025 |
1#高炉热风炉 |
自动监测 |
钢铁工业大气污染物排放标准DB37/990-2019 |
50mg/Nm3 |
固定污染源废气 二氧化硫的测定 非分散红外吸收法HJ 629-2011,固定污染源废气 二氧化硫的测定 便携式紫外吸收法HJ 1131-2020 |
烟气自动连续监测仪 |
|
|
颗粒物 |
DA025 |
1#高炉热风炉 |
自动监测 |
钢铁工业大气污染物排放标准DB37/990-2019 |
10mg/Nm3 |
固定污染源排气中颗粒物测定与气态污染物采样方法 GB/T 16157-1996,固定污染源废气低浓度颗粒物的测定重量HJ 836-2017 |
烟气自动连续监测仪 |
|
|
氮氧化物 |
DA026 |
2#高炉热风炉 |
自动监测 |
钢铁工业大气污染物排放标准DB37/990-2019 |
150mg/Nm3 |
固定污染源废气 氮氧化物的测定 非分散红外吸收法HJ 692-2014,固定污染源排气中氮氧化物的测定 紫外分光光度法 HJ/T 42-1999 |
烟气自动连续监测仪 |
|
|
二氧化硫 |
DA026 |
2#高炉热风炉 |
自动监测 |
钢铁工业大气污染物排放标准DB37/990-2019 |
50mg/Nm3 |
固定污染源废气 二氧化硫的测定 非分散红外吸收法HJ 629-2011,固定污染源废气 二氧化硫的测定 便携式紫外吸收法HJ 1131-2020 |
烟气自动连续监测仪 |
|
|
颗粒物 |
DA026 |
2#高炉热风炉 |
自动监测 |
钢铁工业大气污染物排放标准DB37/990-2019 |
10mg/Nm3 |
固定污染源排气中颗粒物测定与气态污染物采样方法 GB/T 16157-1996,固定污染源废气低浓度颗粒物的测定重量HJ 836-2017 |
烟气自动连续监测仪 |
|
|
颗粒物 |
DA028 |
1#转炉一次除尘 |
1次/两年 |
钢铁工业大气污染物排放标准DB37/990-2019 |
20mg/Nm3 |
固定污染源排气中颗粒物测定与气态污染物采样方法 GB/T 16157-1996,固定污染源废气低浓度颗粒物的测定重量HJ 836-2017 |
自动烟尘(气)测试仪 |
手工监测 |
|
颗粒物 |
DA029 |
1#转炉二次除尘 |
自动监测 |
钢铁工业大气污染物排放标准DB37/990-2019 |
10mg/Nm3 |
固定污染源排气中颗粒物测定与气态污染物采样方法 GB/T 16157-1996,固定污染源废气低浓度颗粒物的测定重量HJ 836-2017 |
烟气自动连续监测仪 |
|
|
颗粒物 |
DA030 |
转炉三次除尘 |
1次/季 |
钢铁工业大气污染物排放标准DB37/990-2019 |
10mg/Nm3 |
固定污染源排气中颗粒物测定与气态污染物采样方法 GB/T 16157-1996,固定污染源废气低浓度颗粒物的测定重量HJ 836-2017 |
自动烟尘(气)测试仪 |
手工监测 |
|
颗粒物 |
DA031 |
转炉上料除尘 |
1次/两年 |
钢铁工业大气污染物排放标准DB37/990-2019 |
10mg/Nm3 |
固定污染源排气中颗粒物测定与气态污染物采样方法 GB/T 16157-1996,固定污染源废气低浓度颗粒物的测定重量HJ 836-2017 |
自动烟尘(气)测试仪 |
手工监测 |
|
颗粒物 |
DA032 |
2#转炉一次除尘 |
1次/两年 |
钢铁工业大气污染物排放标准DB37/990-2019 |
20mg/Nm3 |
固定污染源排气中颗粒物测定与气态污染物采样方法 GB/T 16157-1996,固定污染源废气低浓度颗粒物的测定重量HJ 836-2017 |
自动烟尘(气)测试仪 |
手工监测 |
|
颗粒物 |
DA033 |
2#转炉二次除尘 |
自动监测 |
钢铁工业大气污染物排放标准DB37/990-2019 |
10mg/Nm3 |
固定污染源排气中颗粒物测定与气态污染物采样方法 GB/T 16157-1996,固定污染源废气低浓度颗粒物的测定重量HJ 836-2017 |
烟气自动连续监测仪 |
|
|
颗粒物 |
DA037 |
连铸大包除尘 |
1次/两年 |
钢铁工业大气污染物排放标准DB37/990-2019 |
10mg/Nm3 |
固定污染源排气中颗粒物测定与气态污染物采样方法 GB/T 16157-1996,固定污染源废气低浓度颗粒物的测定重量HJ 836-2017 |
自动烟尘(气)测试仪 |
手工监测 |
|
颗粒物 |
DA038 |
石灰窑受料槽除尘 |
1次/两年 |
钢铁工业大气污染物排放标准DB37/990-2019 |
10mg/Nm3 |
固定污染源排气中颗粒物测定与气态污染物采样方法 GB/T 16157-1996,固定污染源废气低浓度颗粒物的测定重量HJ 836-2017 |
自动烟尘(气)测试仪 |
手工监测 |
|
氮氧化物 |
DA039 |
石灰窑焙烧除尘 |
自动监测 |
钢铁工业大气污染物排放标准DB37/990-2019 |
150mg/Nm3 |
固定污染源废气 氮氧化物的测定 非分散红外吸收法HJ 692-2014,固定污染源排气中氮氧化物的测定 紫外分光光度法 HJ/T 42-1999 |
烟气自动连续监测仪 |
|
|
二氧化硫 |
DA039 |
石灰窑焙烧除尘 |
自动监测 |
钢铁工业大气污染物排放标准DB37/990-2019 |
50mg/Nm3 |
固定污染源废气 二氧化硫的测定 非分散红外吸收法HJ 629-2011,固定污染源废气 二氧化硫的测定 便携式紫外吸收法HJ 1131-2020 |
烟气自动连续监测仪 |
|
|
颗粒物 |
DA039 |
石灰窑焙烧除尘 |
自动监测 |
钢铁工业大气污染物排放标准DB37/990-2019 |
10mg/Nm3 |
固定污染源排气中颗粒物测定与气态污染物采样方法 GB/T 16157-1996,固定污染源废气低浓度颗粒物的测定重量HJ 836-2017 |
烟气自动连续监测仪 |
|
|
颗粒物 |
DA040 |
石灰窑原料除尘 |
1次/两年 |
钢铁工业大气污染物排放标准DB37/990-2019 |
10mg/Nm3 |
固定污染源排气中颗粒物测定与气态污染物采样方法 GB/T 16157-1996,固定污染源废气低浓度颗粒物的测定重量HJ 836-2017 |
自动烟尘(气)测试仪 |
手工监测 |
|
颗粒物 |
DA041 |
石灰窑成品除尘 |
1次/两年 |
钢铁工业大气污染物排放标准DB37/990-2019 |
10mg/Nm3 |
固定污染源排气中颗粒物测定与气态污染物采样方法 GB/T 16157-1996,固定污染源废气低浓度颗粒物的测定重量HJ 836-2017 |
自动烟尘(气)测试仪 |
手工监测 |
|
氮氧化物 |
DA042 |
1#加热炉空烟 |
1次/季 |
钢铁工业大气污染物排放标准DB37/990-2019 |
150mg/Nm3 |
固定污染源废气 氮氧化物的测定 非分散红外吸收法HJ 692-2014,固定污染源排气中氮氧化物的测定 紫外分光光度法 HJ/T 42-1999 |
紫外差分烟气综合分析仪 |
手工监测 |
|
二氧化硫 |
DA042 |
1#加热炉空烟 |
1次/季 |
钢铁工业大气污染物排放标准DB37/990-2019 |
50mg/Nm3 |
固定污染源废气 二氧化硫的测定 非分散红外吸收法HJ 629-2011,固定污染源废气 二氧化硫的测定 便携式紫外吸收法HJ 1131-2020 |
紫外差分烟气综合分析仪 |
手工监测 |
|
颗粒物 |
DA042 |
1#加热炉空烟 |
1次/季 |
钢铁工业大气污染物排放标准DB37/990-2019 |
10mg/Nm3 |
固定污染源排气中颗粒物测定与气态污染物采样方法 GB/T 16157-1996,固定污染源废气低浓度颗粒物的测定重量HJ 836-2017 |
自动烟尘(气)测试仪 |
手工监测 |
|
氮氧化物 |
DA043 |
1#加热炉煤烟 |
1次/季 |
钢铁工业大气污染物排放标准DB37/990-2019 |
150mg/Nm3 |
固定污染源废气 氮氧化物的测定 非分散红外吸收法HJ 692-2014,固定污染源排气中氮氧化物的测定 紫外分光光度法 HJ/T 42-1999 |
紫外差分烟气综合分析仪 |
手工监测 |
|
二氧化硫 |
DA043 |
1#加热炉煤烟 |
1次/季 |
钢铁工业大气污染物排放标准DB37/990-2019 |
50mg/Nm3 |
固定污染源废气 二氧化硫的测定 非分散红外吸收法HJ 629-2011,固定污染源废气 二氧化硫的测定 便携式紫外吸收法HJ 1131-2020 |
紫外差分烟气综合分析仪 |
手工监测 |
|
颗粒物 |
DA043 |
1#加热炉煤烟 |
1次/季 |
钢铁工业大气污染物排放标准DB37/990-2019 |
10mg/Nm3 |
固定污染源排气中颗粒物测定与气态污染物采样方法 GB/T 16157-1996,固定污染源废气低浓度颗粒物的测定重量HJ 836-2017 |
自动烟尘(气)测试仪 |
手工监测 |
|
氮氧化物 |
DA044 |
2#加热炉空烟 |
1次/季 |
钢铁工业大气污染物排放标准DB37/990-2019 |
150mg/Nm3 |
固定污染源废气 氮氧化物的测定 非分散红外吸收法HJ 692-2014,固定污染源排气中氮氧化物的测定 紫外分光光度法 HJ/T 42-1999 |
紫外差分烟气综合分析仪 |
手工监测 |
|
二氧化硫 |
DA044 |
2#加热炉空烟 |
1次/季 |
钢铁工业大气污染物排放标准DB37/990-2019 |
50mg/Nm3 |
固定污染源废气 二氧化硫的测定 非分散红外吸收法HJ 629-2011,固定污染源废气 二氧化硫的测定 便携式紫外吸收法HJ 1131-2020 |
紫外差分烟气综合分析仪 |
手工监测 |
|
颗粒物 |
DA044 |
2#加热炉空烟 |
1次/季 |
钢铁工业大气污染物排放标准DB37/990-2019 |
10mg/Nm3 |
固定污染源排气中颗粒物测定与气态污染物采样方法 GB/T 16157-1996,固定污染源废气低浓度颗粒物的测定重量HJ 836-2017 |
自动烟尘(气)测试仪 |
手工监测 |
|
氮氧化物 |
DA045 |
2#加热炉煤烟 |
1次/季 |
钢铁工业大气污染物排放标准DB37/990-2019 |
150mg/Nm3 |
固定污染源废气 氮氧化物的测定 非分散红外吸收法HJ 692-2014,固定污染源排气中氮氧化物的测定 紫外分光光度法 HJ/T 42-1999 |
紫外差分烟气综合分析仪 |
手工监测 |
|
二氧化硫 |
DA045 |
2#加热炉煤烟 |
1次/季 |
钢铁工业大气污染物排放标准DB37/990-2019 |
50mg/Nm3 |
固定污染源废气 二氧化硫的测定 非分散红外吸收法HJ 629-2011,固定污染源废气 二氧化硫的测定 便携式紫外吸收法HJ 1131-2020 |
紫外差分烟气综合分析仪 |
手工监测 |
|
颗粒物 |
DA045 |
2#加热炉煤烟 |
1次/季 |
钢铁工业大气污染物排放标准DB37/990-2019 |
10mg/Nm3 |
固定污染源排气中颗粒物测定与气态污染物采样方法 GB/T 16157-1996,固定污染源废气 二氧化硫的测定 便携式紫外吸收法HJ 1131-2020 |
自动烟尘(气)测试仪 |
手工监测 |
|
氮氧化物 |
DA046 |
3#加热炉空烟 |
1次/季 |
钢铁工业大气污染物排放标准DB37/990-2019 |
150mg/Nm3 |
固定污染源废气 氮氧化物的测定 非分散红外吸收法HJ 692-2014,固定污染源排气中氮氧化物的测定 紫外分光光度法 HJ/T 42-1999 |
紫外差分烟气综合分析仪 |
手工监测 |
|
二氧化硫 |
DA046 |
3#加热炉空烟 |
1次/季 |
钢铁工业大气污染物排放标准DB37/990-2019 |
50mg/Nm3 |
固定污染源废气 二氧化硫的测定 非分散红外吸收法HJ 629-2011,固定污染源废气 二氧化硫的测定 便携式紫外吸收法HJ 1131-2020 |
紫外差分烟气综合分析仪 |
手工监测 |
|
颗粒物 |
DA046 |
3#加热炉空烟 |
1次/季 |
钢铁工业大气污染物排放标准DB37/990-2019 |
10mg/Nm3 |
固定污染源排气中颗粒物测定与气态污染物采样方法 GB/T 16157-1996,固定污染源废气低浓度颗粒物的测定重量HJ 836-2017 |
自动烟尘(气)测试仪 |
手工监测 |
|
氮氧化物 |
DA047 |
3#加热炉煤烟 |
1次/季 |
钢铁工业大气污染物排放标准DB37/990-2019 |
150mg/Nm3 |
固定污染源废气 氮氧化物的测定 非分散红外吸收法HJ 692-2014,固定污染源排气中氮氧化物的测定 紫外分光光度法 HJ/T 42-1999 |
紫外差分烟气综合分析仪 |
手工监测 |
|
二氧化硫 |
DA047 |
3#加热炉煤烟 |
1次/季 |
钢铁工业大气污染物排放标准DB37/990-2019 |
50mg/Nm3 |
固定污染源废气 二氧化硫的测定 非分散红外吸收法HJ 629-2011,固定污染源废气 二氧化硫的测定 便携式紫外吸收法HJ 1131-2020 |
紫外差分烟气综合分析仪 |
手工监测 |
|
颗粒物 |
DA047 |
3#加热炉煤烟 |
1次/季 |
钢铁工业大气污染物排放标准DB37/990-2019 |
10mg/Nm3 |
固定污染源排气中颗粒物测定与气态污染物采样方法 GB/T 16157-1996,固定污染源废气低浓度颗粒物的测定重量HJ 836-2017 |
自动烟尘(气)测试仪 |
手工监测 |
|
氮氧化物 |
DA048 |
4#加热炉空烟 |
1次/季 |
钢铁工业大气污染物排放标准DB37/990-2019 |
150mg/Nm3 |
固定污染源废气 氮氧化物的测定 非分散红外吸收法HJ 692-2014,固定污染源排气中氮氧化物的测定 紫外分光光度法 HJ/T 42-1999 |
紫外差分烟气综合分析仪 |
手工监测 |
|
二氧化硫 |
DA048 |
4#加热炉空烟 |
1次/季 |
钢铁工业大气污染物排放标准DB37/990-2019 |
50mg/Nm3 |
固定污染源废气 二氧化硫的测定 非分散红外吸收法HJ 629-2011,固定污染源废气 二氧化硫的测定 便携式紫外吸收法HJ 1131-2020 |
紫外差分烟气综合分析仪 |
手工监测 |
|
颗粒物 |
DA048 |
4#加热炉空烟 |
1次/季 |
钢铁工业大气污染物排放标准DB37/990-2019 |
10mg/Nm3 |
固定污染源排气中颗粒物测定与气态污染物采样方法 GB/T 16157-1996,固定污染源废气低浓度颗粒物的测定重量HJ 836-2017 |
自动烟尘(气)测试仪 |
手工监测 |
|
氮氧化物 |
DA049 |
4#加热炉煤烟 |
1次/季 |
钢铁工业大气污染物排放标准DB37/990-2019 |
150mg/Nm3 |
固定污染源废气 氮氧化物的测定 非分散红外吸收法HJ 692-2014,固定污染源排气中氮氧化物的测定 紫外分光光度法 HJ/T 42-1999 |
紫外差分烟气综合分析仪 |
手工监测 |
|
二氧化硫 |
DA049 |
4#加热炉煤烟 |
1次/季 |
钢铁工业大气污染物排放标准DB37/990-2019 |
50mg/Nm3 |
固定污染源废气 二氧化硫的测定 非分散红外吸收法HJ 629-2011,固定污染源废气 二氧化硫的测定 便携式紫外吸收法HJ 1131-2020 |
紫外差分烟气综合分析仪 |
手工监测 |
|
颗粒物 |
DA049 |
4#加热炉煤烟 |
1次/季 |
钢铁工业大气污染物排放标准DB37/990-2019 |
10mg/Nm3 |
固定污染源排气中颗粒物测定与气态污染物采样方法 GB/T 16157-1996,固定污染源废气低浓度颗粒物的测定重量HJ 836-2017 |
自动烟尘(气)测试仪 |
手工监测 |
|
林格曼黑度 |
DA050 |
煤气发电锅炉脱硫 |
1次/季 |
山东省火电厂大气污染物排放标准DB37/ 664-2019 |
1级 |
固定污染源排放烟气黑度的测定 林格曼烟气黑度图法HJ/T 398-2007 |
格林曼黑度计 |
手工监测 |
|
氮氧化物 |
DA050 |
煤气发电锅炉脱硫 |
自动监测 |
《关于推进实施钢铁行业超低排放的意见》(环大气〔2019〕35号) |
50mg/Nm3 |
固定污染源废气 氮氧化物的测定 非分散红外吸收法HJ 692-2014,固定污染源排气中氮氧化物的测定 紫外分光光度法 HJ/T 42-1999 |
烟气自动连续监测仪 |
|
|
二氧化硫 |
DA050 |
煤气发电锅炉脱硫 |
自动监测 |
山东省火电厂大气污染物排放标准DB37/ 664-2019 |
35mg/Nm3 |
固定污染源废气 二氧化硫的测定 非分散红外吸收法HJ 629-2011,固定污染源废气 二氧化硫的测定 便携式紫外吸收法HJ 1131-2020 |
烟气自动连续监测仪 |
|
|
颗粒物 |
DA050 |
煤气发电锅炉脱硫 |
自动监测 |
山东省火电厂大气污染物排放标准DB37/ 664-2019 |
5mg/Nm3 |
固定污染源排气中颗粒物测定与气态污染物采样方法 GB/T 16157-1996,固定污染源废气低浓度颗粒物的测定重量HJ 836-2017 |
烟气自动连续监测仪 |
|
|
氮氧化物 |
DA051 |
原料块矿烘干除尘器 |
1次/季 |
区域性大气污染物综合排放标准DB37/2376-2019 |
100mg/Nm3 |
固定污染源废气 氮氧化物的测定 非分散红外吸收法HJ 692-2014,固定污染源排气中氮氧化物的测定 紫外分光光度法 HJ/T 42-1999 |
紫外差分烟气综合分析仪 |
手工监测 |
|
二氧化硫 |
DA051 |
原料块矿烘干除尘器 |
1次/季 |
区域性大气污染物综合排放标准DB37/2376-2019 |
50mg/Nm3 |
固定污染源废气 二氧化硫的测定 非分散红外吸收法HJ 629-2011,固定污染源废气 二氧化硫的测定 便携式紫外吸收法HJ 1131-2020 |
紫外差分烟气综合分析仪 |
手工监测 |
|
颗粒物 |
DA051 |
原料块矿烘干除尘器 |
1次/季 |
区域性大气污染物综合排放标准DB37/2376-2019 |
10mg/Nm3 |
固定污染源排气中颗粒物测定与气态污染物采样方法 GB/T 16157-1996,固定污染源废气低浓度颗粒物的测定重量HJ 836-2017 |
自动烟尘(气)测试仪 |
手工监测 |
|
氮氧化物 |
DA052 |
除尘灰处理窑尾除尘 |
1次/季 |
区域性大气污染物综合排放标准DB37/2376-2019 |
100mg/Nm3 |
固定污染源废气 氮氧化物的测定 非分散红外吸收法HJ 692-2014,固定污染源排气中氮氧化物的测定 紫外分光光度法 HJ/T 42-1999 |
紫外差分烟气综合分析仪 |
手工监测 |
|
二氧化硫 |
DA052 |
除尘灰处理窑尾除尘 |
1次/季 |
区域性大气污染物综合排放标准DB37/2376-2019 |
50mg/Nm3 |
固定污染源废气 二氧化硫的测定 非分散红外吸收法HJ 629-2011,固定污染源废气 二氧化硫的测定 便携式紫外吸收法HJ 1131-2020 |
紫外差分烟气综合分析仪 |
手工监测 |
|
颗粒物 |
DA052 |
除尘灰处理窑尾除尘 |
1次/季 |
区域性大气污染物综合排放标准DB37/2376-2019 |
10mg/Nm3 |
固定污染源排气中颗粒物测定与气态污染物采样方法 GB/T 16157-1996,固定污染源废气低浓度颗粒物的测定重量HJ 836-2017 |
自动烟尘(气)测试仪 |
手工监测 |
|
颗粒物 |
DA053 |
除尘灰处理窑头及上料除尘 |
1次/季 |
钢铁工业大气污染物排放标准DB37/990-2019 |
10mg/Nm3 |
固定污染源排气中颗粒物测定与气态污染物采样方法 GB/T 16157-1996,固定污染源废气低浓度颗粒物的测定重量HJ 836-2017 |
自动烟尘(气)测试仪 |
手工监测 |
|
氮氧化物 |
DA054 |
矿渣粉磨除尘 |
1次/季 |
区域性大气污染物综合排放标准DB37/2376-2019 |
100mg/Nm3 |
固定污染源废气 氮氧化物的测定 非分散红外吸收法HJ 692-2014,固定污染源排气中氮氧化物的测定 紫外分光光度法 HJ/T 42-1999 |
紫外差分烟气综合分析仪 |
手工监测 |
|
二氧化硫 |
DA054 |
矿渣粉磨除尘 |
1次/季 |
区域性大气污染物综合排放标准DB37/2376-2019 |
50mg/Nm3 |
固定污染源废气 二氧化硫的测定 非分散红外吸收法HJ 629-2011,固定污染源废气 二氧化硫的测定 便携式紫外吸收法HJ 1131-2020 |
紫外差分烟气综合分析仪 |
手工监测 |
|
颗粒物 |
DA054 |
矿渣粉磨除尘 |
1次/季 |
区域性大气污染物综合排放标准DB37/2376-2019 |
10mg/Nm3 |
固定污染源排气中颗粒物测定与气态污染物采样方法 GB/T 16157-1996,固定污染源废气低浓度颗粒物的测定重量HJ 836-2017 |
自动烟尘(气)测试仪 |
手工监测 |
|
颗粒物 |
DA055 |
1#钢渣湿电除尘 |
1次/年 |
钢铁工业大气污染物排放标准DB37/990-2019 |
20mg/Nm3 |
固定污染源排气中颗粒物测定与气态污染物采样方法 GB/T 16157-1996,固定污染源废气低浓度颗粒物的测定重量HJ 836-2017 |
自动烟尘(气)测试仪 |
手工监测 |
|
颗粒物 |
DA056 |
2#钢渣湿电除尘 |
1次/年 |
钢铁工业大气污染物排放标准DB37/990-2019 |
20mg/Nm3 |
固定污染源排气中颗粒物测定与气态污染物采样方法 GB/T 16157-1996,固定污染源废气低浓度颗粒物的测定重量HJ 836-2017 |
自动烟尘(气)测试仪 |
手工监测 |
|
颗粒物 |
DA057 |
钢渣二次处理除尘 |
1次/年 |
钢铁工业大气污染物排放标准DB37/990-2019 |
10mg/Nm3 |
固定污染源排气中颗粒物测定与气态污染物采样方法 GB/T 16157-1996,固定污染源废气低浓度颗粒物的测定重量HJ 836-2017 |
自动烟尘(气)测试仪 |
手工监测 |
|
污染物排放方式及排放去向 |
净化处理后,通过排气筒高空排放 |
|||||||
|
采样和样品保存方法 |
废气手工采样方法的选择参照相关污染物排放标准及 GB/T 16157、HJ/T 397 等执行。废气自动监测参照 HJ/T 75、HJ/T 76执行。 |
|||||||
|
监测质量控制措施 |
1、监测人员严格执行环境监测技术规范。 |
|||||||
|
监测结果公开时限 |
依据《国家重点监控企业自行监测及信息公开办法》及《排污单位自行监测技术指南 钢铁工业及炼焦化学工业》的频次进行监测,监测完成后一周内向社会公开信息。 |
|||||||
|
备注 |
|
|||||||
废水自行监测内容表
|
监测项目 |
排放口 |
监测点位 |
监测频次 |
执行排放标准 |
标准限值 |
监测方法 |
分析仪器 |
备注 |
|
pH 值 |
DW001 |
烧结球团脱硫车间废水排放口 |
1 月/次 |
钢铁工业水污染物排放标准(GB13456-2012) |
/ |
玻璃电极法 |
PH 计 |
手工监测 |
|
悬浮物 |
DW001 |
烧结球团脱硫车间废水排放口 |
1 月/次 |
钢铁工业水污染物排放标准(GB13456-2012) |
/ |
重量法 |
悬浮物测定仪 |
手工监测 |
|
化学需氧量 |
DW001 |
烧结球团脱硫车间废水排放口 |
1 月/次 |
钢铁工业水污染物排放标准(GB13456-2012) |
/ |
重铬酸盐法 |
消解仪 |
手工监测 |
|
石油类 |
DW001 |
烧结球团脱硫车间废水排放口 |
1 月/次 |
钢铁工业水污染物排放标准(GB13456-2012) |
/ |
红外分光光度法 |
分光光度计 |
手工监测 |
|
总砷 |
DW001 |
烧结球团脱硫车间废水排放口 |
1 月/次 |
钢铁工业水污染物排放标准(GB13456-2012) |
0.5 mg/L |
原子荧光法 |
原子荧光光度计 |
手工监测 |
|
总铅 |
DW001 |
烧结球团脱硫车间废水排放口 |
1 月/次 |
钢铁工业水污染物排放标准(GB13456-2012) |
1.0 mg/L |
原子吸收分光光度法 |
原子吸收分光光度计 |
手工监测 |
|
流量 |
DW001 |
烧结球团脱硫车间废水排放口 |
1 月/次 |
钢铁工业水污染物排放标准(GB13456-2012) |
/ |
流速仪法 |
流量计 |
手工监测 |
|
总砷 |
DW003 |
轧钢一车间废水排放口 |
1 月/次 |
钢铁工业水污染物排放标准(GB13456-2012) |
0.5 mg/L |
原子荧光法 |
原子荧光光度计 |
手工监测 |
|
六价铬 |
DW003 |
轧钢一车间废水排放口 |
1 月/次 |
钢铁工业水污染物排放标准(GB13456-2012) |
0.5 mg/L |
二苯碳酰二肼分光光度法 |
分光光度计 |
手工监测 |
|
总镉 |
DW003 |
轧钢一车间废水排放口 |
1 月/次 |
钢铁工业水污染物排放标准(GB13456-2012) |
0.1 mg/L |
原子吸收分光 |
原子荧光光度计 |
手工监测 |
|
总镍 |
DW003 |
轧钢一车间废水排放口 |
1 月/次 |
钢铁工业水污染物排放标准(GB13456-2012) |
1.0 mg/L |
火焰原子吸收分光光度法 |
分光光度计 |
手工监测 |
|
总铬 |
DW003 |
轧钢一车间废水排放口 |
1 月/次 |
钢铁工业水污染物排放标准(GB13456-2012) |
1.5 mg/L |
锰酸钾氧化-二苯碳酰二肼分光光度法 |
分光光度计 |
手工监测 |
|
总汞 |
DW003 |
轧钢一车间废水排放口 |
1 月/次 |
钢铁工业水污染物排放标准(GB13456-2012) |
0.05 mg/L |
高锰酸钾-过硫酸钾消解法双硫腙分光光度法 |
分光光度计 |
手工监测 |
|
总砷 |
DW004 |
轧钢二车间废水排放口 |
1 月/次 |
钢铁工业水污染物排放标准(GB13456-2012) |
0.5 mg/L |
原子荧光法 |
原子荧光光度计 |
手工监测 |
|
六价铬 |
DW004 |
轧钢二车间废水排放口 |
1 月/次 |
钢铁工业水污染物排放标准(GB13456-2012) |
0.5 mg/L |
二苯碳酰二肼分光光度法 |
分光光度计 |
手工监测 |
|
总镉 |
DW004 |
轧钢二车间废水排放口 |
1 月/次 |
钢铁工业水污染物排放标准(GB13456-2012) |
0.1 mg/L |
原子吸收分光 |
原子荧光光度计 |
手工监测 |
|
总镍 |
DW004 |
轧钢二车间废水排放口 |
1 月/次 |
钢铁工业水污染物排放标准(GB13456-2012) |
1.0 mg/L |
火焰原子吸收分光光度法 |
分光光度计 |
手工监测 |
|
总铬 |
DW004 |
轧钢二车间废水排放口 |
1 月/次 |
钢铁工业水污染物排放标准(GB13456-2012) |
1.5 mg/L |
锰酸钾氧化-二苯碳酰二肼分光光度法 |
分光光度计 |
手工监测 |
|
总汞 |
DW004 |
轧钢二车间废水排放口 |
1 月/次 |
钢铁工业水污染物排放标准(GB13456-2012) |
0.05 mg/L |
高锰酸钾-过硫酸钾消解法双硫腙分光光度法 |
分光光度计 |
手工监测 |
|
悬浮物 |
YS001 |
1#雨水排放口 |
有流量的情况下每日一次 |
流域水污染物综合排放标准 第 4 部分:海河流域(DB37/3416.4-2018) |
30 mg/L |
重量法 |
电子天平 |
手工监测 |
|
化学需氧量 |
YS001 |
1#雨水排放口 |
有流量的情况下每日一次 |
流域水污染物综合排放标准 第 4 部分:海河流域(DB37/3416.4-2018) |
60 mg/L |
重铬酸盐法 |
消解仪 |
手工监测 |
|
石油类 |
YS001 |
1#雨水排放口 |
有流量的情况下每日一次 |
流域水污染物综合排放标准 第 4 部分:海河流域(DB37/3416.4-2018) |
3 mg/L |
红外分光光度法 |
分光光度计 |
手工监测 |
|
氨氮(NH3-N) |
YS001 |
1#雨水排放口 |
有流量的情况下每日一次 |
流域水污染物综合排放标准 第 4 部分:海河流域(DB37/3416.4-2018) |
5 mg/L |
纳氏试剂分光光度法 |
分光光度计 |
手工监测 |
|
悬浮物 |
YS002 |
2#雨水排放口 |
有流量的情况下每日一次 |
流域水污染物综合排放标准 第 4 部分:海河流域(DB37/3416.4-2018) |
30 mg/L |
重量法 |
电子天平 |
手工监测 |
|
化学需氧量 |
YS002 |
2#雨水排放口 |
有流量的情况下每日一次 |
流域水污染物综合排放标准 第 4 部分:海河流域(DB37/3416.4-2018) |
60 mg/L |
重铬酸盐法 |
消解仪 |
手工监测 |
|
石油类 |
YS002 |
2#雨水排放口 |
有流量的情况下每日一次 |
流域水污染物综合排放标准 第 4 部分:海河流域(DB37/3416.4-2018) |
3 mg/L |
红外分光光度法 |
分光光度计 |
手工监测 |
|
氨氮(NH3-N) |
YS002 |
2#雨水排放口 |
有流量的情况下每日一次 |
流域水污染物综合排放标准 第 4 部分:海河流域(DB37/3416.4-2018) |
5 mg/L |
纳氏试剂分光光度法 |
分光光度计 |
手工监测 |
|
悬浮物 |
YS003 |
3#雨水排放口 |
有流量的情况下每日一次 |
流域水污染物综合排放标准 第 4 部分:海河流域(DB37/3416.4-2018) |
30 mg/L |
重量法 |
电子天平 |
手工监测 |
|
化学需氧量 |
YS003 |
3#雨水排放口 |
有流量的情况下每日一次 |
流域水污染物综合排放标准 第 4 部分:海河流域(DB37/3416.4-2018) |
60 mg/L |
重铬酸盐法 |
消解仪 |
手工监测 |
|
石油类 |
YS003 |
3#雨水排放口 |
有流量的情况下每日一次 |
流域水污染物综合排放标准 第 4 部分:海河流域(DB37/3416.4-2018) |
3 mg/L |
红外分光光度法 |
分光光度计 |
手工监测 |
|
氨氮(NH3-N) |
YS003 |
3#雨水排放口 |
有流量的情况下每日一次 |
流域水污染物综合排放标准 第 4 部分:海河流域(DB37/3416.4-2018) |
5 mg/L |
纳氏试剂分光光度法 |
分光光度计 |
手工监测 |
|
悬浮物 |
YS004 |
4#雨水排放口 |
有流量的情况下每日一次 |
流域水污染物综合排放标准 第 4 部分:海河流域(DB37/3416.4-2018) |
30 mg/L |
重量法 |
电子天平 |
手工监测 |
|
化学需氧量 |
YS004 |
4#雨水排放口 |
有流量的情况下每日一次 |
流域水污染物综合排放标准 第 4 部分:海河流域(DB37/3416.4-2018) |
60 mg/L |
重铬酸盐法 |
消解仪 |
手工监测 |
|
石油类 |
YS004 |
4#雨水排放口 |
有流量的情况下每日一次 |
流域水污染物综合排放标准 第 4 部分:海河流域(DB37/3416.4-2018) |
3 mg/L |
红外分光光度法 |
分光光度计 |
手工监测 |
|
氨氮(NH3-N) |
YS004 |
4#雨水排放口 |
有流量的情况下每日一次 |
流域水污染物综合排放标准 第 4 部分:海河流域(DB37/3416.4-2018) |
5 mg/L |
纳氏试剂分光光度法 |
分光光度计 |
手工监测 |
|
挥发酚 |
/ |
1#高炉冲渣回用水 |
1 周/次 |
钢铁工业水污染物排放标准(GB13456-2012) |
/ |
4-氨基安替比林分光光度法 |
分光光度计 |
手工监测 |
|
PH |
/ |
1#高炉冲渣补水口 |
1 周/次 |
钢铁工业水污染物排放标准(GB13456-2012) |
/ |
玻璃电极法 |
PH 计 |
手工监测 |
|
悬浮物 |
/ |
1#高炉冲渣补水口 |
1 周/次 |
钢铁工业水污染物排放标准(GB13456-2012) |
/ |
重量法 |
电子天平 |
手工监测 |
|
化学需氧量 |
/ |
1#高炉冲渣补水口 |
1 周/次 |
钢铁工业水污染物排放标准(GB13456-2012) |
/ |
重铬酸盐法 |
消解仪 |
手工监测 |
|
氨氮 |
/ |
1#高炉冲渣补水口 |
1 周/次 |
钢铁工业水污染物排放标准(GB13456-2012) |
/ |
水杨酸比色法 |
氨氮分析仪 |
手工监测 |
|
挥发酚 |
/ |
1#高炉冲渣补水口 |
1 周/次 |
钢铁工业水污染物排放标准(GB13456-2012) |
/ |
4-氨基安替比 |
分光光度计 |
手工监测 |
|
氰化物 |
/ |
1#高炉冲渣补水口 |
1 周/次 |
钢铁工业水污染物排放标准(GB13456-2012) |
/ |
异烟酸吡唑啉酮分光光度法 |
分光光度计 |
手工监测 |
|
挥发酚 |
/ |
2#高炉冲渣回用水 |
1 周/次 |
钢铁工业水污染物排放标准(GB13456-2012) |
/ |
4-氨基安替比林分光光度法 |
分光光度计 |
手工监测 |
|
PH |
/ |
2#高炉冲渣回用水 |
1 周/次 |
钢铁工业水污染物排放标准(GB13456-2012) |
/ |
玻璃电极法 |
PH 计 |
手工监测 |
|
悬浮物 |
/ |
2#高炉冲渣回用水 |
1 周/次 |
钢铁工业水污染物排放标准(GB13456-2012) |
/ |
重量法 |
电子天平 |
手工监测 |
|
化学需氧量 |
/ |
2#高炉冲渣回用水 |
1 周/次 |
钢铁工业水污染物排放标准(GB13456-2012) |
/ |
重铬酸盐法 |
消解仪 |
手工监测 |
|
氨氮 |
/ |
2#高炉冲渣回用水 |
1 周/次 |
钢铁工业水污染物排放标准(GB13456-2012) |
/ |
水杨酸比色法 |
氨氮分析仪 |
手工监测 |
|
挥发酚 |
/ |
2#高炉冲渣回用水 |
1 周/次 |
钢铁工业水污染物排放标准(GB13456-2012) |
/ |
4-氨基安替比 |
分光光度计 |
手工监测 |
|
氰化物 |
/ |
2#高炉冲渣回用水 |
1 周/次 |
钢铁工业水污染物排放标准(GB13456-2012) |
/ |
异烟酸吡唑啉酮分光光度法 |
分光光度计 |
手工监测 |
|
污染物排放方式及排放去向 |
综合污水处理厂处理后不外排 |
|||||||
|
采样和样品保存方法 |
按照《HJ 493-2009 水质 样品的保存和管理技术规定》、《HJ 494-2009 水质 采样技术导则》、《HJ 91.1-2019 污水监测技术规范》及检测参数具体国家或地方检测标准进行样品采样和保存。 |
|||||||
|
监测质量控制措施 |
1、监测人员严格执行环境监测技术规范。 |
|||||||
|
监测结果公开时限 |
依据《国家重点监控企业自行监测及信息公开办法》及《排污单位自行监测技术指南 钢铁工业及炼焦化学工业》的频次进行监测,监测完成后一周内向社会公开信息。 |
|||||||
|
备注 |
|
|||||||
无组织自行监测内容表
|
监测项目 |
监测点位 |
监测频次 |
执行排放标准 |
标准限值 |
监测方法 |
分析仪器 |
备注 |
|
颗粒物 |
公司厂界无组织 |
1 季度/次 |
排污许可证 |
1 mg/m3 |
重量法 |
中流量智能TSP 采样器 |
手工监测 |
|
颗粒物 |
烧结机 |
1 年/次 |
排污许可证 |
8 mg/m3 |
重量法 |
中流量智能TSP 采样器 |
手工监测 |
|
颗粒物 |
球团 |
1 年/次 |
排污许可证 |
8 mg/m3 |
重量法 |
中流量智能TSP 采样器 |
手工监测 |
|
颗粒物 |
1#高炉 |
1 年/次 |
排污许可证 |
8 mg/m3 |
重量法 |
中流量智能TSP 采样器 |
手工监测 |
|
颗粒物 |
2#高炉 |
1 年/次 |
排污许可证 |
8 mg/m3 |
重量法 |
中流量智能TSP 采样器 |
手工监测 |
|
颗粒物 |
120t 转炉 |
1 年/次 |
排污许可证 |
8 mg/m3 |
重量法 |
中流量智能TSP 采样器 |
手工监测 |
|
污染物排放方式及排放去向 |
各产尘点配备有效的废气捕集装置 |
||||||
|
采样和样品保存方法 |
严格按《环境空气总悬浮物的测定重量法》(GB/T15432-1995)要求进行。 |
||||||
|
监测质量控制措施 |
1、监测人员严格执行环境监测技术规范。 |
||||||
|
监测结果公开时限 |
依据《国家重点监控企业自行监测及信息公开办法》的要求及《排污单位自行监测技术指南 钢铁工业及炼焦化学工业》的频次进行监测,监测完成后一周内向社会公开信息。 |
||||||
|
备注 |
|
||||||
厂界噪声自行监测内容表
|
监测项目 |
监测点位 |
监测频次 |
执行排放标准 |
标准限值 |
监测方法 |
分析仪器 |
备注 |
|
工业企业厂界环境噪声(夜间) |
东厂界 |
1 季度/次 |
排污许可证 |
55 dB |
噪声分析 |
多功能声级计 |
手工监测 |
|
工业企业厂界环境噪声(昼间) |
东厂界 |
1 季度/次 |
排污许可证 |
70 dB |
噪声分析 |
多功能声级计 |
手工监测 |
|
工业企业厂界环境噪声(夜间) |
西厂界 |
1 季度/次 |
排污许可证 |
55 dB |
噪声分析 |
多功能声级计 |
手工监测 |
|
工业企业厂界环境噪声(昼间) |
西厂界 |
1 季度/次 |
排污许可证 |
65 dB |
噪声分析 |
多功能声级计 |
手工监测 |
|
工业企业厂界环境噪声(夜间) |
南厂界 |
1 季度/次 |
排污许可证 |
55 dB |
噪声分析 |
多功能声级计 |
手工监测 |
|
工业企业厂界环境噪声(昼间) |
南厂界 |
1 季度/次 |
排污许可证 |
70 dB |
噪声分析 |
多功能声级计 |
手工监测 |
|
工业企业厂界环境噪声(夜间) |
北厂界 |
1 季度/次 |
排污许可证 |
55 dB |
噪声分析 |
多功能声级计 |
手工监测 |
|
工业企业厂界环境噪声(昼间) |
北厂界 |
1 季度/次 |
排污许可证 |
65 dB |
噪声分析 |
多功能声级计 |
手工监测 |
|
污染物排放方式及排放去向 |
经噪音治理设施处理 |
||||||
|
采样和样品保存方法 |
严格按照《工业企业厂界环境噪声排放标准》(GB12348-2008)、《声环境质量标准》(GB3096-2008)要求进行。 |
||||||
|
监测质量控制措施 |
1.机构:承担监测任务的检测机构通过省级计量认证或国家实验室资质认定。 |
||||||
|
监测结果公开时限 |
依据《国家重点监控企业自行监测及信息公开办法》的要求及《排污单位自行监测技术指南 钢铁工业及炼焦化学工业》的频次进行监测,监测完成后一周内向社会公开信息。 |
||||||
|
备注 |
|
||||||
土壤自行监测内容
|
监测项目 |
监测点位 |
监测频次 |
执行排放标准 |
标准限值 |
监测方法 |
分析仪器 |
备注 |
|
PH |
原料车间 |
1年/次 |
《土壤环境质量 建设用地土壤污染风险管控 标准(试行)》 (GB36600 -2018)
|
9-6级 |
玻璃电极法 |
离子计 |
手工监测 |
|
铜 |
原料车间 |
1年/次 |
《土壤环境质量 建设用地土壤污染风险管控 标准(试行)》 (GB36600 -2018)
|
18000mg/KG |
火焰原子吸收分光光度法
|
原子吸收分光光度计
|
手工监测 |
|
砷 |
原料车间 |
1年/次 |
《土壤环境质量 建设用地土壤污染风险管控 标准(试行)》 (GB36600 -2018)
|
60 mg/KG
|
原子荧光法
|
原子荧光光度计
|
手工监测 |
|
镉 |
原料车间 |
1年/次 |
《土壤环境质量 建设用地土壤污染风险管控 标准(试行)》 (GB36600 -2018)
|
65 mg/KG
|
原子荧光法
|
石墨炉原子吸收光谱仪
|
手工监测 |
|
铬(六价铬) |
原料车间 |
1年/次 |
《土壤环境质量 建设用地土壤污染风险管控 标准(试行)》 (GB36600 -2018)
|
5.7 mg/KG
|
火焰原子吸收分光光度法
|
原子吸收光谱仪
|
手工监测 |
|
铅 |
原料车间 |
1年/次 |
《土壤环境质量 建设用地土壤污染风险管控 标准(试行)》 (GB36600 -2018)
|
800 mg/KG
|
火焰原子吸收分光光度法
|
火焰原子吸收分光光度计
|
手工监测 |
|
汞 |
原料车间 |
1年/次 |
《土壤环境质量 建设用地土壤污染风险管控 标准(试行)》 (GB36600 -2018)
|
38 mg/KG |
原子荧光法 |
原子荧光光度 计 |
手工监测 |
|
镍 |
原料车间 |
1年/次 |
《土壤环境质量 建设用地土壤污染风险管控 标准(试行)》 (GB36600 -2018)
|
900 mg/KG |
火焰原子吸收 分光光度法 |
原子吸收分光 光度计 |
手工监测 |
|
四氯化碳 |
原料车间 |
1年/次 |
《土壤环境质量 建设用地土壤污染风险管控 标准(试行)》 (GB36600 -2018)
|
2.8 mg/KG |
质谱法 |
气象色谱仪 |
手工监测 |
|
氯仿 |
原料车间 |
1年/次 |
《土壤环境质量 建设用地土壤污染风险管控 标准(试行)》 (GB36600 -2018)
|
0.9 mg/KG |
质谱法 |
气象色谱仪 |
手工监测 |
|
氯甲烷 |
原料车间 |
1年/次 |
《土壤环境质量 建设用地土壤污染风险管控 标准(试行)》 (GB36600 -2018)
|
37 mg/KG |
质谱法 |
气象色谱仪 |
手工监测 |
|
顺-1,2-二氯乙烯 |
原料车间 |
1年/次 |
《土壤环境质量 建设用地土壤污染风险管控 标准(试行)》 (GB36600 -2018)
|
596 mg/KG |
质谱法 |
气象色谱仪 |
手工监测 |
|
反-1,2-二氯 乙烯 |
原料车间 |
1年/次 |
《土壤环境质量 建设用地土壤污染风险管控 标准(试行)》 (GB36600 -2018)
|
54 mg/KG |
质谱法 |
气象色谱仪 |
手工监测 |
|
二氯甲烷 |
原料车间 |
1年/次 |
《土壤环境质量 建设用地土壤污染风险管控 标准(试行)》 (GB36600 -2018)
|
616 mg/KG |
质谱法 |
气象色谱仪 |
手工监测 |
|
1,2-二氯丙烷 |
原料车间 |
1年/次 |
《土壤环境质量 建设用地土壤污染风险管控 标准(试行)》 (GB36600 -2018)
|
5--47mg/KG |
质谱法 |
气象色谱仪 |
手工监测 |
|
1,1-二氯乙烷 |
原料车间 |
1年/次 |
《土壤环境质量 建设用地土壤污染风险管控 标准(试行)》 (GB36600 -2018)
|
9 mg/KG |
质谱法 |
气象色谱仪 |
手工监测 |
|
1,2-二氯乙烷 |
原料车间 |
1年/次 |
《土壤环境质量 建设用地土壤污染风险管控 标准(试行)》 (GB36600 -2018)
|
5--21mg/KG |
质谱法 |
气象色谱仪 |
手工监测 |
|
1,1-二氯乙烯 |
原料车间 |
1年/次 |
《土壤环境质量 建设用地土壤污染风险管控 标准(试行)》 (GB36600 -2018)
|
66 mg/KG |
质谱法 |
气象色谱仪 |
手工监测 |
|
1,1,1,2-四氯乙烷 |
原料车间 |
1年/次 |
《土壤环境质量 建设用地土壤污染风险管控 标准(试行)》 (GB36600 -2018)
|
10 mg/KG |
质谱法 |
气象色谱仪 |
手工监测 |
|
1,1,2,2-四氯乙烷 |
原料车间 |
1年/次 |
《土壤环境质量 建设用地土壤污染风险管控 标准(试行)》 (GB36600 -2018)
|
6.8 mg/KG |
质谱法 |
气象色谱仪 |
手工监测 |
|
四氯乙烯 |
原料车间 |
1年/次 |
《土壤环境质量 建设用地土壤污染风险管控 标准(试行)》 (GB36600 -2018)
|
53 mg/KG |
质谱法 |
气象色谱仪 |
手工监测 |
|
1,1,1-三氯乙烷 |
原料车间 |
1年/次 |
《土壤环境质量 建设用地土壤污染风险管控 标准(试行)》 (GB36600 -2018)
|
701--840 mg/KG |
质谱法 |
气象色谱仪 |
手工监测 |
|
1,1,2-三氯乙烷 |
原料车间 |
1年/次 |
《土壤环境质量 建设用地土壤污染风险管控 标准(试行)》 (GB36600 -2018)
|
2.8--15 mg/KG |
质谱法 |
气象色谱仪 |
手工监测 |
|
氯乙烯 |
原料车间 |
1年/次 |
《土壤环境质量 建设用地土壤污染风险管控 标准(试行)》 (GB36600 -2018)
|
0.43mg/KG |
质谱法 |
气象色谱仪 |
手工监测 |
|
笨 |
原料车间 |
1年/次 |
《土壤环境质量 建设用地土壤污染风险管控 标准(试行)》 (GB36600 -2018)
|
4 mg/KG |
质谱法 |
气象色谱仪 |
手工监测 |
|
氯苯 |
原料车间 |
1年/次 |
《土壤环境质量 建设用地土壤污染风险管控 标准(试行)》 (GB36600 -2018)
|
270 mg/KG |
质谱法 |
气象色谱仪 |
手工监测 |
|
1,2-二氯苯 |
原料车间 |
1年/次 |
《土壤环境质量 建设用地土壤污染风险管控 标准(试行)》 (GB36600 -2018)
|
560 mg/KG |
质谱法 |
气象色谱仪 |
手工监测 |
|
1,4-二氯苯 |
原料车间 |
1年/次 |
《土壤环境质量 建设用地土壤污染风险管控 标准(试行)》 (GB36600 -2018)
|
20 mg/KG |
质谱法 |
气象色谱仪 |
手工监测 |
|
乙苯 |
原料车间 |
1年/次 |
《土壤环境质量 建设用地土壤污染风险管控 标准(试行)》 (GB36600 -2018)
|
28 mg/KG |
质谱法 |
气象色谱仪 |
手工监测 |
|
苯乙烯 |
原料车间 |
1年/次 |
《土壤环境质量 建设用地土壤污染风险管控 标准(试行)》 (GB36600 -2018)
|
1290mg/KG |
质谱法 |
气象色谱仪 |
手工监测 |
|
甲苯 |
原料车间 |
1年/次 |
《土壤环境质量 建设用地土壤污染风险管控 标准(试行)》 (GB36600 -2018)
|
1200mg/KG |
质谱法 |
气象色谱仪 |
手工监测 |
|
间二甲苯+对二甲苯 |
原料车间 |
1年/次 |
《土壤环境质量 建设用地土壤污染风险管控 标准(试行)》 (GB36600 -2018)
|
570 mg/KG |
质谱法 |
气象色谱仪 |
手工监测 |
|
邻二甲苯 |
原料车间 |
1年/次 |
《土壤环境质量 建设用地土壤污染风险管控 标准(试行)》 (GB36600 -2018)
|
640 mg/KG |
质谱法 |
气象色谱仪 |
手工监测 |
|
硝基苯 |
原料车间 |
1年/次 |
《土壤环境质量 建设用地土壤污染风险管控 标准(试行)》 (GB36600 -2018)
|
76 mg/KG |
质谱法 |
气象色谱仪 |
手工监测 |
|
苯胺 |
原料车间 |
1年/次 |
《土壤环境质量 建设用地土壤污染风险管控 标准(试行)》 (GB36600 -2018)
|
260 mg/KG |
质谱法 |
气象色谱仪 |
手工监测 |
|
2-氯酚 |
原料车间 |
1年/次 |
《土壤环境质量 建设用地土壤污染风险管控 标准(试行)》 (GB36600 -2018)
|
2256mg/KG |
质谱法 |
气象色谱仪 |
手工监测 |
|
苯并[a]蒽 |
原料车间 |
1年/次 |
《土壤环境质量 建设用地土壤污染风险管控 标准(试行)》 (GB36600 -2018)
|
15 mg/KG |
质谱法 |
气象色谱仪 |
手工监测 |
|
苯并[a]芘 |
原料车间 |
1年/次 |
《土壤环境质量 建设用地土壤污染风险管控 标准(试行)》 (GB36600 -2018)
|
1.5 mg/KG |
质谱法 |
气象色谱仪 |
手工监测 |
|
苯并[b]荧蒽 |
原料车间 |
1年/次 |
《土壤环境质量 建设用地土壤污染风险管控 标准(试行)》 (GB36600 -2018)
|
15 mg/KG |
质谱法 |
气象色谱仪 |
手工监测 |
|
苯并[k]荧蒽 |
原料车间 |
1年/次 |
《土壤环境质量 建设用地土壤污染风险管控 标准(试行)》 (GB36600 -2018)
|
151 mg/KG |
质谱法 |
气象色谱仪 |
手工监测 |
|
䓛 |
原料车间 |
1年/次 |
《土壤环境质量 建设用地土壤污染风险管控 标准(试行)》 (GB36600 -2018)
|
1293mg/KG |
质谱法 |
气象色谱仪 |
手工监测 |
|
二苯并(a, h)蒽 |
原料车间 |
1年/次 |
《土壤环境质量 建设用地土壤污染风险管控 标准(试行)》 (GB36600 -2018)
|
1.5 mg/KG |
质谱法 |
气象色谱仪 |
手工监测 |
|
茚并[1,2,3- cd]芘 |
原料车间 |
1年/次 |
《土壤环境质量 建设用地土壤污染风险管控 标准(试行)》 (GB36600 -2018)
|
15 mg/KG |
质谱法 |
气象色谱仪 |
手工监测 |
|
萘 |
原料车间 |
1年/次 |
《土壤环境质量 建设用地土壤污染风险管控 标准(试行)》 (GB36600 -2018)
|
70 mg/KG |
质谱法 |
气象色谱仪 |
手工监测 |
|
阳离子交换量 |
原料车间 |
1年/次 |
《土壤环境质量 建设用地土壤污染风险管控 标准(试行)》 (GB36600 -2018)
|
20cmol/kg |
分光光度法 |
分光光度计 |
手工监测 |
|
锌 |
原料车间 |
1年/次 |
《土壤环境质量 建设用地土壤污染风险管控 标准(试行)》 (GB36600 -2018)
|
200 mg/KG |
分光光度法 |
石墨炉原子吸 收光谱仪 |
手工监测 |
|
PH |
烧结车间 |
1年/次 |
《土壤环境质量 建设用地土壤污染风险管控 标准(试行)》 (GB36600 -2018)
|
9-6级 |
玻璃电极法 |
离子计 |
手工监测 |
|
铜 |
烧结车间 |
1年/次 |
《土壤环境质量 建设用地土壤污染风险管控 标准(试行)》 (GB36600 -2018)
|
18000mg/KG |
火焰原子吸收分光光度法
|
原子吸收分光光度计
|
手工监测 |
|
砷 |
烧结车间 |
1年/次 |
《土壤环境质量 建设用地土壤污染风险管控 标准(试行)》 (GB36600 -2018)
|
60 mg/KG
|
原子荧光法
|
原子荧光光度计
|
手工监测 |
|
镉 |
烧结车间 |
1年/次 |
《土壤环境质量 建设用地土壤污染风险管控 标准(试行)》 (GB36600 -2018)
|
65 mg/KG
|
原子荧光法
|
石墨炉原子吸收光谱仪
|
手工监测 |
|
铬(六价铬) |
烧结车间 |
1年/次 |
《土壤环境质量 建设用地土壤污染风险管控 标准(试行)》 (GB36600 -2018)
|
5.7 mg/KG
|
火焰原子吸收分光光度法
|
原子吸收光谱仪
|
手工监测 |
|
铅 |
烧结车间 |
1年/次 |
《土壤环境质量 建设用地土壤污染风险管控 标准(试行)》 (GB36600 -2018)
|
800 mg/KG
|
火焰原子吸收分光光度法
|
火焰原子吸收分光光度计
|
手工监测 |
|
汞 |
烧结车间 |
1年/次 |
《土壤环境质量 建设用地土壤污染风险管控 标准(试行)》 (GB36600 -2018)
|
38 mg/KG |
原子荧光法 |
原子荧光光度 计 |
手工监测 |
|
镍 |
烧结车间 |
1年/次 |
《土壤环境质量 建设用地土壤污染风险管控 标准(试行)》 (GB36600 -2018)
|
900 mg/KG |
火焰原子吸收 分光光度法 |
原子吸收分光 光度计 |
手工监测 |
|
四氯化碳 |
烧结车间 |
1年/次 |
《土壤环境质量 建设用地土壤污染风险管控 标准(试行)》 (GB36600 -2018)
|
2.8 mg/KG |
质谱法 |
气象色谱仪 |
手工监测 |
|
氯仿 |
烧结车间 |
1年/次 |
《土壤环境质量 建设用地土壤污染风险管控 标准(试行)》 (GB36600 -2018)
|
0.9 mg/KG |
质谱法 |
气象色谱仪 |
手工监测 |
|
氯甲烷 |
烧结车间 |
1年/次 |
《土壤环境质量 建设用地土壤污染风险管控 标准(试行)》 (GB36600 -2018)
|
37 mg/KG |
质谱法 |
气象色谱仪 |
手工监测 |
|
顺-1,2-二氯乙烯 |
烧结车间 |
1年/次 |
《土壤环境质量 建设用地土壤污染风险管控 标准(试行)》 (GB36600 -2018) |
596 mg/KG |
质谱法 |
气象色谱仪 |
手工监测 |
|
反-1,2-二氯 乙烯 |
烧结车间 |
1年/次 |
《土壤环境质量 建设用地土壤污染风险管控 标准(试行)》 (GB36600 -2018) |
54 mg/KG |
质谱法 |
气象色谱仪 |
手工监测 |
|
二氯甲烷 |
烧结车间 |
1年/次 |
《土壤环境质量 建设用地土壤污染风险管控 标准(试行)》 (GB36600 -2018) |
616 mg/KG |
质谱法 |
气象色谱仪 |
手工监测 |
|
1,2-二氯丙烷 |
烧结车间 |
1年/次 |
《土壤环境质量 建设用地土壤污染风险管控 标准(试行)》 (GB36600 -2018) |
5--47 mg/KG |
质谱法 |
气象色谱仪 |
手工监测 |
|
1,1-二氯乙烷 |
烧结车间 |
1年/次 |
《土壤环境质量 建设用地土壤污染风险管控 标准(试行)》 (GB36600 -2018) |
9 mg/KG |
质谱法 |
气象色谱仪 |
手工监测 |
|
1,2-二氯乙烷 |
烧结车间 |
1年/次 |
《土壤环境质量 建设用地土壤污染风险管控 标准(试行)》 (GB36600 -2018) |
5--21mg/KG |
质谱法 |
气象色谱仪 |
手工监测 |
|
1,1-二氯乙烯 |
烧结车间 |
1年/次 |
《土壤环境质量 建设用地土壤污染风险管控 标准(试行)》 (GB36600 -2018) |
66 mg/KG |
质谱法 |
气象色谱仪 |
手工监测 |
|
1,1,1,2-四氯乙烷 |
烧结车间 |
1年/次 |
《土壤环境质量 建设用地土壤污染风险管控 标准(试行)》 (GB36600 -2018) |
10 mg/KG |
质谱法 |
气象色谱仪 |
手工监测 |
|
1,1,2,2-四氯乙烷 |
烧结车间 |
1年/次 |
《土壤环境质量 建设用地土壤污染风险管控 标准(试行)》 (GB36600 -2018) |
6.8 mg/KG |
质谱法 |
气象色谱仪 |
手工监测 |
|
四氯乙烯 |
烧结车间 |
1年/次 |
《土壤环境质量 建设用地土壤污染风险管控 标准(试行)》 (GB36600 -2018) |
53 mg/KG |
质谱法 |
气象色谱仪 |
手工监测 |
|
1,1,1-三氯乙烷 |
烧结车间 |
1年/次 |
《土壤环境质量 建设用地土壤污染风险管控 标准(试行)》 (GB36600 -2018)
|
701--840 mg/KG |
质谱法 |
气象色谱仪 |
手工监测 |
|
1,1,2-三氯乙烷 |
烧结车间 |
1年/次 |
《土壤环境质量 建设用地土壤污染风险管控 标准(试行)》 (GB36600 -2018)
|
2.8--15 mg/KG |
质谱法 |
气象色谱仪 |
手工监测 |
|
氯乙烯 |
烧结车间 |
1年/次 |
《土壤环境质量 建设用地土壤污染风险管控 标准(试行)》 (GB36600 -2018)
|
0.43mg/KG |
质谱法 |
气象色谱仪 |
手工监测 |
|
笨 |
烧结车间 |
1年/次 |
《土壤环境质量 建设用地土壤污染风险管控 标准(试行)》 (GB36600 -2018)
|
4 mg/KG |
质谱法 |
气象色谱仪 |
手工监测 |
|
氯苯 |
烧结车间 |
1年/次 |
《土壤环境质量 建设用地土壤污染风险管控 标准(试行)》 (GB36600 -2018)
|
270 mg/KG |
质谱法 |
气象色谱仪 |
手工监测 |
|
1,2-二氯苯 |
烧结车间 |
1年/次 |
《土壤环境质量 建设用地土壤污染风险管控 标准(试行)》 (GB36600 -2018)
|
560 mg/KG |
质谱法 |
气象色谱仪 |
手工监测 |
|
1,4-二氯苯 |
烧结车间 |
1年/次 |
《土壤环境质量 建设用地土壤污染风险管控 标准(试行)》 (GB36600 -2018)
|
20 mg/KG |
质谱法 |
气象色谱仪 |
手工监测 |
|
乙苯 |
烧结车间 |
1年/次 |
《土壤环境质量 建设用地土壤污染风险管控 标准(试行)》 (GB36600 -2018)
|
28 mg/KG |
质谱法 |
气象色谱仪 |
手工监测 |
|
苯乙烯 |
烧结车间 |
1年/次 |
《土壤环境质量 建设用地土壤污染风险管控 标准(试行)》 (GB36600 -2018)
|
1290mg/KG |
质谱法 |
气象色谱仪 |
手工监测 |
|
甲苯 |
烧结车间 |
1年/次 |
《土壤环境质量 建设用地土壤污染风险管控 标准(试行)》 (GB36600 -2018)
|
1200mg/KG |
质谱法 |
气象色谱仪 |
手工监测 |
|
间二甲苯+对二甲苯 |
烧结车间 |
1年/次 |
《土壤环境质量 建设用地土壤污染风险管控 标准(试行)》 (GB36600 -2018)
|
570 mg/KG |
质谱法 |
气象色谱仪 |
手工监测 |
|
邻二甲苯 |
烧结车间 |
1年/次 |
《土壤环境质量 建设用地土壤污染风险管控 标准(试行)》 (GB36600 -2018)
|
640 mg/KG |
质谱法 |
气象色谱仪 |
手工监测 |
|
硝基苯 |
烧结车间 |
1年/次 |
《土壤环境质量 建设用地土壤污染风险管控 标准(试行)》 (GB36600 -2018)
|
76 mg/KG |
质谱法 |
气象色谱仪 |
手工监测 |
|
苯胺 |
烧结车间 |
1年/次 |
《土壤环境质量 建设用地土壤污染风险管控 标准(试行)》 (GB36600 -2018)
|
260 mg/KG |
质谱法 |
气象色谱仪 |
手工监测 |
|
2-氯酚 |
烧结车间 |
1年/次 |
《土壤环境质量 建设用地土壤污染风险管控 标准(试行)》 (GB36600 -2018)
|
2256mg/KG |
质谱法 |
气象色谱仪 |
手工监测 |
|
苯并[a]蒽 |
烧结车间 |
1年/次 |
《土壤环境质量 建设用地土壤污染风险管控 标准(试行)》 (GB36600 -2018)
|
15 mg/KG |
质谱法 |
气象色谱仪 |
手工监测 |
|
苯并[a]芘 |
烧结车间 |
1年/次 |
《土壤环境质量 建设用地土壤污染风险管控 标准(试行)》 (GB36600 -2018)
|
1.5 mg/KG |
质谱法 |
气象色谱仪 |
手工监测 |
|
苯并[b]荧蒽 |
烧结车间 |
1年/次 |
《土壤环境质量 建设用地土壤污染风险管控 标准(试行)》 (GB36600 -2018)
|
15 mg/KG |
质谱法 |
气象色谱仪 |
手工监测 |
|
苯并[k]荧蒽 |
烧结车间 |
1年/次 |
《土壤环境质量 建设用地土壤污染风险管控 标准(试行)》 (GB36600 -2018)
|
151 mg/KG |
质谱法 |
气象色谱仪 |
手工监测 |
|
䓛 |
烧结车间 |
1年/次 |
《土壤环境质量 建设用地土壤污染风险管控 标准(试行)》 (GB36600 -2018)
|
1293mg/KG |
质谱法 |
气象色谱仪 |
手工监测 |
|
二苯并(a, h)蒽 |
烧结车间 |
1年/次 |
《土壤环境质量 建设用地土壤污染风险管控 标准(试行)》 (GB36600 -2018)
|
1.5 mg/KG |
质谱法 |
气象色谱仪 |
手工监测 |
|
茚并[1,2,3- cd]芘 |
烧结车间 |
1年/次 |
《土壤环境质量 建设用地土壤污染风险管控 标准(试行)》 (GB36600 -2018)
|
15 mg/KG |
质谱法 |
气象色谱仪 |
手工监测 |
|
萘 |
烧结车间 |
1年/次 |
《土壤环境质量 建设用地土壤污染风险管控 标准(试行)》 (GB36600 -2018)
|
70 mg/KG |
质谱法 |
气象色谱仪 |
手工监测 |
|
阳离子交换量 |
烧结车间 |
1年/次 |
《土壤环境质量 建设用地土壤污染风险管控 标准(试行)》 (GB36600 -2018)
|
20cmol/kg |
分光光度法 |
分光光度计 |
手工监测 |
|
锌 |
烧结车间 |
1年/次 |
《土壤环境质量 建设用地土壤污染风险管控 标准(试行)》 (GB36600 -2018)
|
200 mg/KG |
分光光度法 |
石墨炉原子吸 收光谱仪 |
手工监测 |
|
|
|
|
|
|
|
|
|
|
PH |
高炉车间 |
1年/次 |
《土壤环境质量 建设用地土壤污染风险管控 标准(试行)》 (GB36600 -2018)
|
9-6级 |
玻璃电极法 |
离子计 |
手工监测 |
|
铜 |
高炉车间 |
1年/次 |
《土壤环境质量 建设用地土壤污染风险管控 标准(试行)》 (GB36600 -2018)
|
18000mg/KG |
火焰原子吸收分光光度法
|
原子吸收分光光度计
|
手工监测 |
|
砷 |
高炉车间 |
1年/次 |
《土壤环境质量 建设用地土壤污染风险管控 标准(试行)》 (GB36600 -2018)
|
60 mg/KG
|
原子荧光法
|
原子荧光光度计
|
手工监测 |
|
镉 |
高炉车间 |
1年/次 |
《土壤环境质量 建设用地土壤污染风险管控 标准(试行)》 (GB36600 -2018)
|
65 mg/KG
|
原子荧光法
|
石墨炉原子吸收光谱仪
|
手工监测 |
|
铬(六价铬) |
高炉车间 |
1年/次 |
《土壤环境质量 建设用地土壤污染风险管控 标准(试行)》 (GB36600 -2018)
|
5.7 mg/KG
|
火焰原子吸收分光光度法
|
原子吸收光谱仪
|
手工监测 |
|
铅 |
高炉车间 |
1年/次 |
《土壤环境质量 建设用地土壤污染风险管控 标准(试行)》 (GB36600 -2018)
|
800 mg/KG
|
火焰原子吸收分光光度法
|
火焰原子吸收分光光度计
|
手工监测 |
|
汞 |
高炉车间 |
1年/次 |
《土壤环境质量 建设用地土壤污染风险管控 标准(试行)》 (GB36600 -2018)
|
38 mg/KG |
原子荧光法 |
原子荧光光度 计 |
手工监测 |
|
镍 |
高炉车间 |
1年/次 |
《土壤环境质量 建设用地土壤污染风险管控 标准(试行)》 (GB36600 -2018)
|
900 mg/KG |
火焰原子吸收 分光光度法 |
原子吸收分光 光度计 |
手工监测 |
|
四氯化碳 |
高炉车间 |
1年/次 |
《土壤环境质量 建设用地土壤污染风险管控 标准(试行)》 (GB36600 -2018)
|
2.8 mg/KG |
质谱法 |
气象色谱仪 |
手工监测 |
|
氯仿 |
高炉车间 |
1年/次 |
《土壤环境质量 建设用地土壤污染风险管控 标准(试行)》 (GB36600 -2018)
|
0.9 mg/KG |
质谱法 |
气象色谱仪 |
手工监测 |
|
氯甲烷 |
高炉车间 |
1年/次 |
《土壤环境质量 建设用地土壤污染风险管控 标准(试行)》 (GB36600 -2018)
|
37 mg/KG |
质谱法 |
气象色谱仪 |
手工监测 |
|
顺-1,2-二氯乙烯 |
高炉车间 |
1年/次 |
《土壤环境质量 建设用地土壤污染风险管控 标准(试行)》 (GB36600 -2018)
|
596 mg/KG |
质谱法 |
气象色谱仪 |
手工监测 |
|
反-1,2-二氯 乙烯 |
高炉车间 |
1年/次 |
《土壤环境质量 建设用地土壤污染风险管控 标准(试行)》 (GB36600 -2018)
|
54 mg/KG |
质谱法 |
气象色谱仪 |
手工监测 |
|
二氯甲烷 |
高炉车间 |
1年/次 |
《土壤环境质量 建设用地土壤污染风险管控 标准(试行)》 (GB36600 -2018)
|
616 mg/KG |
质谱法 |
气象色谱仪 |
手工监测 |
|
1,2-二氯丙烷 |
高炉车间 |
1年/次 |
《土壤环境质量 建设用地土壤污染风险管控 标准(试行)》 (GB36600 -2018)
|
5--47 mg/KG |
质谱法 |
气象色谱仪 |
手工监测 |
|
1,1-二氯乙烷 |
高炉车间 |
1年/次 |
《土壤环境质量 建设用地土壤污染风险管控 标准(试行)》 (GB36600 -2018)
|
9 mg/KG |
质谱法 |
气象色谱仪 |
手工监测 |
|
1,2-二氯乙烷 |
高炉车间 |
1年/次 |
《土壤环境质量 建设用地土壤污染风险管控 标准(试行)》 (GB36600 -2018)
|
5--21mg/KG |
质谱法 |
气象色谱仪 |
手工监测 |
|
1,1-二氯乙烯 |
高炉车间 |
1年/次 |
《土壤环境质量 建设用地土壤污染风险管控 标准(试行)》 (GB36600 -2018)
|
66 mg/KG |
质谱法 |
气象色谱仪 |
手工监测 |
|
1,1,1,2-四氯乙烷 |
高炉车间 |
1年/次 |
《土壤环境质量 建设用地土壤污染风险管控 标准(试行)》 (GB36600 -2018)
|
10 mg/KG |
质谱法 |
气象色谱仪 |
手工监测 |
|
1,1,2,2-四氯乙烷 |
高炉车间 |
1年/次 |
《土壤环境质量 建设用地土壤污染风险管控 标准(试行)》 (GB36600 -2018)
|
6.8 mg/KG |
质谱法 |
气象色谱仪 |
手工监测 |
|
四氯乙烯 |
高炉车间 |
1年/次 |
《土壤环境质量 建设用地土壤污染风险管控 标准(试行)》 (GB36600 -2018)
|
53 mg/KG |
质谱法 |
气象色谱仪 |
手工监测 |
|
1,1,1-三氯乙烷 |
高炉车间 |
1年/次 |
《土壤环境质量 建设用地土壤污染风险管控 标准(试行)》 (GB36600 -2018)
|
701--840 mg/KG |
质谱法 |
气象色谱仪 |
手工监测 |
|
1,1,2-三氯乙烷 |
高炉车间 |
1年/次 |
《土壤环境质量 建设用地土壤污染风险管控 标准(试行)》 (GB36600 -2018)
|
2.8--15 mg/KG |
质谱法 |
气象色谱仪 |
手工监测 |
|
氯乙烯 |
高炉车间 |
1年/次 |
《土壤环境质量 建设用地土壤污染风险管控 标准(试行)》 (GB36600 -2018)
|
0.43mg/KG |
质谱法 |
气象色谱仪 |
手工监测 |
|
笨 |
高炉车间 |
1年/次 |
《土壤环境质量 建设用地土壤污染风险管控 标准(试行)》 (GB36600 -2018)
|
4 mg/KG |
质谱法 |
气象色谱仪 |
手工监测 |
|
氯苯 |
高炉车间 |
1年/次 |
《土壤环境质量 建设用地土壤污染风险管控 标准(试行)》 (GB36600 -2018)
|
270 mg/KG |
质谱法 |
气象色谱仪 |
手工监测 |
|
1,2-二氯苯 |
高炉车间 |
1年/次 |
《土壤环境质量 建设用地土壤污染风险管控 标准(试行)》 (GB36600 -2018)
|
560 mg/KG |
质谱法 |
气象色谱仪 |
手工监测 |
|
1,4-二氯苯 |
高炉车间 |
1年/次 |
《土壤环境质量 建设用地土壤污染风险管控 标准(试行)》 (GB36600 -2018)
|
20 mg/KG |
质谱法 |
气象色谱仪 |
手工监测 |
|
乙苯 |
高炉车间 |
1年/次 |
《土壤环境质量 建设用地土壤污染风险管控 标准(试行)》 (GB36600 -2018)
|
28 mg/KG |
质谱法 |
气象色谱仪 |
手工监测 |
|
苯乙烯 |
高炉车间 |
1年/次 |
《土壤环境质量 建设用地土壤污染风险管控 标准(试行)》 (GB36600 -2018)
|
1290mg/KG |
质谱法 |
气象色谱仪 |
手工监测 |
|
甲苯 |
高炉车间 |
1年/次 |
《土壤环境质量 建设用地土壤污染风险管控 标准(试行)》 (GB36600 -2018)
|
1200mg/KG |
质谱法 |
气象色谱仪 |
手工监测 |
|
间二甲苯+对二甲苯 |
高炉车间 |
1年/次 |
《土壤环境质量 建设用地土壤污染风险管控 标准(试行)》 (GB36600 -2018)
|
570 mg/KG |
质谱法 |
气象色谱仪 |
手工监测 |
|
邻二甲苯 |
高炉车间 |
1年/次 |
《土壤环境质量 建设用地土壤污染风险管控 标准(试行)》 (GB36600 -2018)
|
640 mg/KG |
质谱法 |
气象色谱仪 |
手工监测 |
|
硝基苯 |
高炉车间 |
1年/次 |
《土壤环境质量 建设用地土壤污染风险管控 标准(试行)》 (GB36600 -2018)
|
76 mg/KG |
质谱法 |
气象色谱仪 |
手工监测 |
|
苯胺 |
高炉车间 |
1年/次 |
《土壤环境质量 建设用地土壤污染风险管控 标准(试行)》 (GB36600 -2018)
|
260 mg/KG |
质谱法 |
气象色谱仪 |
手工监测 |
|
2-氯酚 |
高炉车间 |
1年/次 |
《土壤环境质量 建设用地土壤污染风险管控 标准(试行)》 (GB36600 -2018)
|
2256mg/KG |
质谱法 |
气象色谱仪 |
手工监测 |
|
苯并[a]蒽 |
高炉车间 |
1年/次 |
《土壤环境质量 建设用地土壤污染风险管控 标准(试行)》 (GB36600 -2018)
|
15 mg/KG |
质谱法 |
气象色谱仪 |
手工监测 |
|
苯并[a]芘 |
高炉车间 |
1年/次 |
《土壤环境质量 建设用地土壤污染风险管控 标准(试行)》 (GB36600 -2018)
|
1.5 mg/KG |
质谱法 |
气象色谱仪 |
手工监测 |
|
苯并[b]荧蒽 |
高炉车间 |
1年/次 |
《土壤环境质量 建设用地土壤污染风险管控 标准(试行)》 (GB36600 -2018)
|
15 mg/KG |
质谱法 |
气象色谱仪 |
手工监测 |
|
苯并[k]荧蒽 |
高炉车间 |
1年/次 |
《土壤环境质量 建设用地土壤污染风险管控 标准(试行)》 (GB36600 -2018)
|
151 mg/KG |
质谱法 |
气象色谱仪 |
手工监测 |
|
䓛 |
高炉车间 |
1年/次 |
《土壤环境质量 建设用地土壤污染风险管控 标准(试行)》 (GB36600 -2018)
|
1293mg/KG |
质谱法 |
气象色谱仪 |
手工监测 |
|
二苯并(a, h)蒽 |
高炉车间 |
1年/次 |
《土壤环境质量 建设用地土壤污染风险管控 标准(试行)》 (GB36600 -2018)
|
1.5 mg/KG |
质谱法 |
气象色谱仪 |
手工监测 |
|
茚并[1,2,3- cd]芘 |
高炉车间 |
1年/次 |
《土壤环境质量 建设用地土壤污染风险管控 标准(试行)》 (GB36600 -2018)
|
15 mg/KG |
质谱法 |
气象色谱仪 |
手工监测 |
|
萘 |
高炉车间 |
1年/次 |
《土壤环境质量 建设用地土壤污染风险管控 标准(试行)》 (GB36600 -2018)
|
70 mg/KG |
质谱法 |
气象色谱仪 |
手工监测 |
|
阳离子交换量 |
高炉车间 |
1年/次 |
《土壤环境质量 建设用地土壤污染风险管控 标准(试行)》 (GB36600 -2018)
|
20cmol/kg |
分光光度法 |
分光光度计 |
手工监测 |
|
锌 |
高炉车间 |
1年/次 |
《土壤环境质量 建设用地土壤污染风险管控 标准(试行)》 (GB36600 -2018)
|
200 mg/KG |
分光光度法 |
石墨炉原子吸 收光谱仪 |
手工监测 |
|
PH |
炼钢车间 |
1年/次 |
《土壤环境质量 建设用地土壤污染风险管控 标准(试行)》 (GB36600 -2018)
|
9-6级 |
玻璃电极法 |
离子计 |
手工监测 |
|
铜 |
炼钢车间 |
1年/次 |
《土壤环境质量 建设用地土壤污染风险管控 标准(试行)》 (GB36600 -2018)
|
18000mg/KG |
火焰原子吸收分光光度法
|
原子吸收分光光度计
|
手工监测 |
|
砷 |
炼钢车间 |
1年/次 |
《土壤环境质量 建设用地土壤污染风险管控 标准(试行)》 (GB36600 -2018)
|
60 mg/KG
|
原子荧光法
|
原子荧光光度计
|
手工监测 |
|
镉 |
炼钢车间 |
1年/次 |
《土壤环境质量 建设用地土壤污染风险管控 标准(试行)》 (GB36600 -2018)
|
65 mg/KG
|
原子荧光法
|
石墨炉原子吸收光谱仪
|
手工监测 |
|
铬(六价铬) |
炼钢车间 |
1年/次 |
《土壤环境质量 建设用地土壤污染风险管控 标准(试行)》 (GB36600 -2018)
|
5.7 mg/KG
|
火焰原子吸收分光光度法
|
原子吸收光谱仪
|
手工监测 |
|
铅 |
炼钢车间 |
1年/次 |
《土壤环境质量 建设用地土壤污染风险管控 标准(试行)》 (GB36600 -2018)
|
800 mg/KG
|
火焰原子吸收分光光度法
|
火焰原子吸收分光光度计
|
手工监测 |
|
汞 |
炼钢车间 |
1年/次 |
《土壤环境质量 建设用地土壤污染风险管控 标准(试行)》 (GB36600 -2018)
|
38 mg/KG |
原子荧光法 |
原子荧光光度 计 |
手工监测 |
|
镍 |
炼钢车间 |
1年/次 |
《土壤环境质量 建设用地土壤污染风险管控 标准(试行)》 (GB36600 -2018)
|
900 mg/KG |
火焰原子吸收 分光光度法 |
原子吸收分光 光度计 |
手工监测 |
|
四氯化碳 |
炼钢车间 |
1年/次 |
《土壤环境质量 建设用地土壤污染风险管控 标准(试行)》 (GB36600 -2018)
|
2.8 mg/KG |
质谱法 |
气象色谱仪 |
手工监测 |
|
氯仿 |
炼钢车间 |
1年/次 |
《土壤环境质量 建设用地土壤污染风险管控 标准(试行)》 (GB36600 -2018)
|
0.9 mg/KG |
质谱法 |
气象色谱仪 |
手工监测 |
|
氯甲烷 |
炼钢车间 |
1年/次 |
《土壤环境质量 建设用地土壤污染风险管控 标准(试行)》 (GB36600 -2018)
|
37 mg/KG |
质谱法 |
气象色谱仪 |
手工监测 |
|
顺-1,2-二氯乙烯 |
炼钢车间 |
1年/次 |
《土壤环境质量 建设用地土壤污染风险管控 标准(试行)》 (GB36600 -2018)
|
596 mg/KG |
质谱法 |
气象色谱仪 |
手工监测 |
|
反-1,2-二氯 乙烯 |
炼钢车间 |
1年/次 |
《土壤环境质量 建设用地土壤污染风险管控 标准(试行)》 (GB36600 -2018)
|
54 mg/KG |
质谱法 |
气象色谱仪 |
手工监测 |
|
二氯甲烷 |
炼钢车间 |
1年/次 |
《土壤环境质量 建设用地土壤污染风险管控 标准(试行)》 (GB36600 -2018)
|
616 mg/KG |
质谱法 |
气象色谱仪 |
手工监测 |
|
1,2-二氯丙烷 |
炼钢车间 |
1年/次 |
《土壤环境质量 建设用地土壤污染风险管控 标准(试行)》 (GB36600 -2018)
|
5--47 mg/KG |
质谱法 |
气象色谱仪 |
手工监测 |
|
1,1-二氯乙烷 |
炼钢车间 |
1年/次 |
《土壤环境质量 建设用地土壤污染风险管控 标准(试行)》 (GB36600 -2018)
|
9 mg/KG |
质谱法 |
气象色谱仪 |
手工监测 |
|
1,2-二氯乙烷 |
炼钢车间 |
1年/次 |
《土壤环境质量 建设用地土壤污染风险管控 标准(试行)》 (GB36600 -2018)
|
5--21mg/KG |
质谱法 |
气象色谱仪 |
手工监测 |
|
1,1-二氯乙烯 |
炼钢车间 |
1年/次 |
《土壤环境质量 建设用地土壤污染风险管控 标准(试行)》 (GB36600 -2018)
|
66 mg/KG |
质谱法 |
气象色谱仪 |
手工监测 |
|
1,1,1,2-四氯乙烷 |
炼钢车间 |
1年/次 |
《土壤环境质量 建设用地土壤污染风险管控 标准(试行)》 (GB36600 -2018)
|
10 mg/KG |
质谱法 |
气象色谱仪 |
手工监测 |
|
1,1,2,2-四氯乙烷 |
炼钢车间 |
1年/次 |
《土壤环境质量 建设用地土壤污染风险管控 标准(试行)》 (GB36600 -2018)
|
6.8 mg/KG |
质谱法 |
气象色谱仪 |
手工监测 |
|
四氯乙烯 |
炼钢车间 |
1年/次 |
《土壤环境质量 建设用地土壤污染风险管控 标准(试行)》 (GB36600 -2018)
|
53 mg/KG |
质谱法 |
气象色谱仪 |
手工监测 |
|
1,1,1-三氯乙烷 |
炼钢车间 |
1年/次 |
《土壤环境质量 建设用地土壤污染风险管控 标准(试行)》 (GB36600 -2018)
|
701--840 mg/KG |
质谱法 |
气象色谱仪 |
手工监测 |
|
1,1,2-三氯乙烷 |
炼钢车间 |
1年/次 |
《土壤环境质量 建设用地土壤污染风险管控 标准(试行)》 (GB36600 -2018)
|
2.8--15 mg/KG |
质谱法 |
气象色谱仪 |
手工监测 |
|
氯乙烯 |
炼钢车间 |
1年/次 |
《土壤环境质量 建设用地土壤污染风险管控 标准(试行)》 (GB36600 -2018)
|
0.43mg/KG |
质谱法 |
气象色谱仪 |
手工监测 |
|
笨 |
炼钢车间 |
1年/次 |
《土壤环境质量 建设用地土壤污染风险管控 标准(试行)》 (GB36600 -2018)
|
4 mg/KG |
质谱法 |
气象色谱仪 |
手工监测 |
|
氯苯 |
炼钢车间 |
1年/次 |
《土壤环境质量 建设用地土壤污染风险管控 标准(试行)》 (GB36600 -2018)
|
270 mg/KG |
质谱法 |
气象色谱仪 |
手工监测 |
|
1,2-二氯苯 |
炼钢车间 |
1年/次 |
《土壤环境质量 建设用地土壤污染风险管控 标准(试行)》 (GB36600 -2018)
|
560 mg/KG |
质谱法 |
气象色谱仪 |
手工监测 |
|
1,4-二氯苯 |
炼钢车间 |
1年/次 |
《土壤环境质量 建设用地土壤污染风险管控 标准(试行)》 (GB36600 -2018)
|
20 mg/KG |
质谱法 |
气象色谱仪 |
手工监测 |
|
乙苯 |
炼钢车间 |
1年/次 |
《土壤环境质量 建设用地土壤污染风险管控 标准(试行)》 (GB36600 -2018)
|
28 mg/KG |
质谱法 |
气象色谱仪 |
手工监测 |
|
苯乙烯 |
炼钢车间 |
1年/次 |
《土壤环境质量 建设用地土壤污染风险管控 标准(试行)》 (GB36600 -2018)
|
1290mg/KG |
质谱法 |
气象色谱仪 |
手工监测 |
|
甲苯 |
炼钢车间 |
1年/次 |
《土壤环境质量 建设用地土壤污染风险管控 标准(试行)》 (GB36600 -2018)
|
1200mg/KG |
质谱法 |
气象色谱仪 |
手工监测 |
|
间二甲苯+对二甲苯 |
炼钢车间 |
1年/次 |
《土壤环境质量 建设用地土壤污染风险管控 标准(试行)》 (GB36600 -2018)
|
570 mg/KG |
质谱法 |
气象色谱仪 |
手工监测 |
|
邻二甲苯 |
炼钢车间 |
1年/次 |
《土壤环境质量 建设用地土壤污染风险管控 标准(试行)》 (GB36600 -2018)
|
640 mg/KG |
质谱法 |
气象色谱仪 |
手工监测 |
|
硝基苯 |
炼钢车间 |
1年/次 |
《土壤环境质量 建设用地土壤污染风险管控 标准(试行)》 (GB36600 -2018)
|
76 mg/KG |
质谱法 |
气象色谱仪 |
手工监测 |
|
苯胺 |
炼钢车间 |
1年/次 |
《土壤环境质量 建设用地土壤污染风险管控 标准(试行)》 (GB36600 -2018)
|
260 mg/KG |
质谱法 |
气象色谱仪 |
手工监测 |
|
2-氯酚 |
炼钢车间 |
1年/次 |
《土壤环境质量 建设用地土壤污染风险管控 标准(试行)》 (GB36600 -2018)
|
2256mg/KG |
质谱法 |
气象色谱仪 |
手工监测 |
|
苯并[a]蒽 |
炼钢车间 |
1年/次 |
《土壤环境质量 建设用地土壤污染风险管控 标准(试行)》 (GB36600 -2018)
|
15 mg/KG |
质谱法 |
气象色谱仪 |
手工监测 |
|
苯并[a]芘 |
炼钢车间 |
1年/次 |
《土壤环境质量 建设用地土壤污染风险管控 标准(试行)》 (GB36600 -2018)
|
1.5 mg/KG |
质谱法 |
气象色谱仪 |
手工监测 |
|
苯并[b]荧蒽 |
炼钢车间 |
1年/次 |
《土壤环境质量 建设用地土壤污染风险管控 标准(试行)》 (GB36600 -2018)
|
15 mg/KG |
质谱法 |
气象色谱仪 |
手工监测 |
|
苯并[k]荧蒽 |
炼钢车间 |
1年/次 |
《土壤环境质量 建设用地土壤污染风险管控 标准(试行)》 (GB36600 -2018)
|
151 mg/KG |
质谱法 |
气象色谱仪 |
手工监测 |
|
䓛 |
炼钢车间 |
1年/次 |
《土壤环境质量 建设用地土壤污染风险管控 标准(试行)》 (GB36600 -2018)
|
1293mg/KG |
质谱法 |
气象色谱仪 |
手工监测 |
|
二苯并(a, h)蒽 |
炼钢车间 |
1年/次 |
《土壤环境质量 建设用地土壤污染风险管控 标准(试行)》 (GB36600 -2018)
|
1.5 mg/KG |
质谱法 |
气象色谱仪 |
手工监测 |
|
茚并[1,2,3- cd]芘 |
炼钢车间 |
1年/次 |
《土壤环境质量 建设用地土壤污染风险管控 标准(试行)》 (GB36600 -2018)
|
15 mg/KG |
质谱法 |
气象色谱仪 |
手工监测 |
|
萘 |
炼钢车间 |
1年/次 |
《土壤环境质量 建设用地土壤污染风险管控 标准(试行)》 (GB36600 -2018)
|
70 mg/KG |
质谱法 |
气象色谱仪 |
手工监测 |
|
阳离子交换量 |
炼钢车间 |
1年/次 |
《土壤环境质量 建设用地土壤污染风险管控 标准(试行)》 (GB36600 -2018)
|
20cmol/kg |
分光光度法 |
分光光度计 |
手工监测 |
|
锌 |
炼钢车间 |
1年/次 |
《土壤环境质量 建设用地土壤污染风险管控 标准(试行)》 (GB36600 -2018)
|
200 mg/KG |
分光光度法 |
石墨炉原子吸 收光谱仪 |
手工监测 |
|
PH |
高线车间 |
1年/次 |
《土壤环境质量 建设用地土壤污染风险管控 标准(试行)》 (GB36600 -2018)
|
9-6级 |
玻璃电极法 |
离子计 |
手工监测 |
|
铜 |
高线车间 |
1年/次 |
《土壤环境质量 建设用地土壤污染风险管控 标准(试行)》 (GB36600 -2018)
|
18000mg/KG |
火焰原子吸收分光光度法
|
原子吸收分光光度计
|
手工监测 |
|
砷 |
高线车间 |
1年/次 |
《土壤环境质量 建设用地土壤污染风险管控 标准(试行)》 (GB36600 -2018)
|
60 mg/KG
|
原子荧光法
|
原子荧光光度计
|
手工监测 |
|
镉 |
高线车间 |
1年/次 |
《土壤环境质量 建设用地土壤污染风险管控 标准(试行)》 (GB36600 -2018)
|
65 mg/KG
|
原子荧光法
|
石墨炉原子吸收光谱仪
|
手工监测 |
|
铬(六价铬) |
高线车间 |
1年/次 |
《土壤环境质量 建设用地土壤污染风险管控 标准(试行)》 (GB36600 -2018)
|
5.7 mg/KG
|
火焰原子吸收分光光度法
|
原子吸收光谱仪
|
手工监测 |
|
铅 |
高线车间 |
1年/次 |
《土壤环境质量 建设用地土壤污染风险管控 标准(试行)》 (GB36600 -2018)
|
800 mg/KG
|
火焰原子吸收分光光度法
|
火焰原子吸收分光光度计
|
手工监测 |
|
汞 |
高线车间 |
1年/次 |
《土壤环境质量 建设用地土壤污染风险管控 标准(试行)》 (GB36600 -2018)
|
38 mg/KG |
原子荧光法 |
原子荧光光度 计 |
手工监测 |
|
镍 |
高线车间 |
1年/次 |
《土壤环境质量 建设用地土壤污染风险管控 标准(试行)》 (GB36600 -2018)
|
900 mg/KG |
火焰原子吸收 分光光度法 |
原子吸收分光 光度计 |
手工监测 |
|
四氯化碳 |
高线车间 |
1年/次 |
《土壤环境质量 建设用地土壤污染风险管控 标准(试行)》 (GB36600 -2018)
|
2.8 mg/KG |
质谱法 |
气象色谱仪 |
手工监测 |
|
氯仿 |
高线车间 |
1年/次 |
《土壤环境质量 建设用地土壤污染风险管控 标准(试行)》 (GB36600 -2018)
|
0.9 mg/KG |
质谱法 |
气象色谱仪 |
手工监测 |
|
氯甲烷 |
高线车间 |
1年/次 |
《土壤环境质量 建设用地土壤污染风险管控 标准(试行)》 (GB36600 -2018)
|
37 mg/KG |
质谱法 |
气象色谱仪 |
手工监测 |
|
顺-1,2-二氯乙烯 |
高线车间 |
1年/次 |
《土壤环境质量 建设用地土壤污染风险管控 标准(试行)》 (GB36600 -2018)
|
596 mg/KG |
质谱法 |
气象色谱仪 |
手工监测 |
|
反-1,2-二氯 乙烯 |
高线车间 |
1年/次 |
《土壤环境质量 建设用地土壤污染风险管控 标准(试行)》 (GB36600 -2018)
|
54 mg/KG |
质谱法 |
气象色谱仪 |
手工监测 |
|
二氯甲烷 |
高线车间 |
1年/次 |
《土壤环境质量 建设用地土壤污染风险管控 标准(试行)》 (GB36600 -2018)
|
616 mg/KG |
质谱法 |
气象色谱仪 |
手工监测 |
|
1,2-二氯丙烷 |
高线车间 |
1年/次 |
《土壤环境质量 建设用地土壤污染风险管控 标准(试行)》 (GB36600 -2018)
|
5--47 mg/KG |
质谱法 |
气象色谱仪 |
手工监测 |
|
1,1-二氯乙烷 |
高线车间 |
1年/次 |
《土壤环境质量 建设用地土壤污染风险管控 标准(试行)》 (GB36600 -2018)
|
9 mg/KG |
质谱法 |
气象色谱仪 |
手工监测 |
|
1,2-二氯乙烷 |
高线车间 |
1年/次 |
《土壤环境质量 建设用地土壤污染风险管控 标准(试行)》 (GB36600 -2018)
|
5--21mg/KG |
质谱法 |
气象色谱仪 |
手工监测 |
|
1,1-二氯乙烯 |
高线车间 |
1年/次 |
《土壤环境质量 建设用地土壤污染风险管控 标准(试行)》 (GB36600 -2018)
|
66 mg/KG |
质谱法 |
气象色谱仪 |
手工监测 |
|
1,1,1,2-四氯乙烷 |
高线车间 |
1年/次 |
《土壤环境质量 建设用地土壤污染风险管控 标准(试行)》 (GB36600 -2018)
|
10 mg/KG |
质谱法 |
气象色谱仪 |
手工监测 |
|
1,1,2,2-四氯乙烷 |
高线车间 |
1年/次 |
《土壤环境质量 建设用地土壤污染风险管控 标准(试行)》 (GB36600 -2018)
|
6.8 mg/KG |
质谱法 |
气象色谱仪 |
手工监测 |
|
四氯乙烯 |
高线车间 |
1年/次 |
《土壤环境质量 建设用地土壤污染风险管控 标准(试行)》 (GB36600 -2018)
|
53 mg/KG |
质谱法 |
气象色谱仪 |
手工监测 |
|
1,1,1-三氯乙烷 |
高线车间 |
1年/次 |
《土壤环境质量 建设用地土壤污染风险管控 标准(试行)》 (GB36600 -2018)
|
701--840 mg/KG |
质谱法 |
气象色谱仪 |
手工监测 |
|
1,1,2-三氯乙烷 |
高线车间 |
1年/次 |
《土壤环境质量 建设用地土壤污染风险管控 标准(试行)》 (GB36600 -2018)
|
2.8--15 mg/KG |
质谱法 |
气象色谱仪 |
手工监测 |
|
氯乙烯 |
高线车间 |
1年/次 |
《土壤环境质量 建设用地土壤污染风险管控 标准(试行)》 (GB36600 -2018)
|
0.43mg/KG |
质谱法 |
气象色谱仪 |
手工监测 |
|
笨 |
高线车间 |
1年/次 |
《土壤环境质量 建设用地土壤污染风险管控 标准(试行)》 (GB36600 -2018)
|
4 mg/KG |
质谱法 |
气象色谱仪 |
手工监测 |
|
氯苯 |
高线车间 |
1年/次 |
《土壤环境质量 建设用地土壤污染风险管控 标准(试行)》 (GB36600 -2018)
|
270 mg/KG |
质谱法 |
气象色谱仪 |
手工监测 |
|
1,2-二氯苯 |
高线车间 |
1年/次 |
《土壤环境质量 建设用地土壤污染风险管控 标准(试行)》 (GB36600 -2018)
|
560 mg/KG |
质谱法 |
气象色谱仪 |
手工监测 |
|
1,4-二氯苯 |
高线车间 |
1年/次 |
《土壤环境质量 建设用地土壤污染风险管控 标准(试行)》 (GB36600 -2018)
|
20 mg/KG |
质谱法 |
气象色谱仪 |
手工监测 |
|
乙苯 |
高线车间 |
1年/次 |
《土壤环境质量 建设用地土壤污染风险管控 标准(试行)》 (GB36600 -2018)
|
28 mg/KG |
质谱法 |
气象色谱仪 |
手工监测 |
|
苯乙烯 |
高线车间 |
1年/次 |
《土壤环境质量 建设用地土壤污染风险管控 标准(试行)》 (GB36600 -2018)
|
1290mg/KG |
质谱法 |
气象色谱仪 |
手工监测 |
|
甲苯 |
高线车间 |
1年/次 |
《土壤环境质量 建设用地土壤污染风险管控 标准(试行)》 (GB36600 -2018)
|
1200mg/KG |
质谱法 |
气象色谱仪 |
手工监测 |
|
间二甲苯+对二甲苯 |
高线车间 |
1年/次 |
《土壤环境质量 建设用地土壤污染风险管控 标准(试行)》 (GB36600 -2018)
|
570 mg/KG |
质谱法 |
气象色谱仪 |
手工监测 |
|
邻二甲苯 |
高线车间 |
1年/次 |
《土壤环境质量 建设用地土壤污染风险管控 标准(试行)》 (GB36600 -2018)
|
640 mg/KG |
质谱法 |
气象色谱仪 |
手工监测 |
|
硝基苯 |
高线车间 |
1年/次 |
《土壤环境质量 建设用地土壤污染风险管控 标准(试行)》 (GB36600 -2018)
|
76 mg/KG |
质谱法 |
气象色谱仪 |
手工监测 |
|
苯胺 |
高线车间 |
1年/次 |
《土壤环境质量 建设用地土壤污染风险管控 标准(试行)》 (GB36600 -2018)
|
260 mg/KG |
质谱法 |
气象色谱仪 |
手工监测 |
|
2-氯酚 |
高线车间 |
1年/次 |
《土壤环境质量 建设用地土壤污染风险管控 标准(试行)》 (GB36600 -2018)
|
2256mg/KG |
质谱法 |
气象色谱仪 |
手工监测 |
|
苯并[a]蒽 |
高线车间 |
1年/次 |
《土壤环境质量 建设用地土壤污染风险管控 标准(试行)》 (GB36600 -2018)
|
15 mg/KG |
质谱法 |
气象色谱仪 |
手工监测 |
|
苯并[a]芘 |
高线车间 |
1年/次 |
《土壤环境质量 建设用地土壤污染风险管控 标准(试行)》 (GB36600 -2018)
|
1.5 mg/KG |
质谱法 |
气象色谱仪 |
手工监测 |
|
苯并[b]荧蒽 |
高线车间 |
1年/次 |
《土壤环境质量 建设用地土壤污染风险管控 标准(试行)》 (GB36600 -2018)
|
15 mg/KG |
质谱法 |
气象色谱仪 |
手工监测 |
|
苯并[k]荧蒽 |
高线车间 |
1年/次 |
《土壤环境质量 建设用地土壤污染风险管控 标准(试行)》 (GB36600 -2018)
|
151 mg/KG |
质谱法 |
气象色谱仪 |
手工监测 |
|
䓛 |
高线车间 |
1年/次 |
《土壤环境质量 建设用地土壤污染风险管控 标准(试行)》 (GB36600 -2018)
|
1293mg/KG |
质谱法 |
气象色谱仪 |
手工监测 |
|
二苯并(a, h)蒽 |
高线车间 |
1年/次 |
《土壤环境质量 建设用地土壤污染风险管控 标准(试行)》 (GB36600 -2018)
|
1.5 mg/KG |
质谱法 |
气象色谱仪 |
手工监测 |
|
茚并[1,2,3- cd]芘 |
高线车间 |
1年/次 |
《土壤环境质量 建设用地土壤污染风险管控 标准(试行)》 (GB36600 -2018)
|
15 mg/KG |
质谱法 |
气象色谱仪 |
手工监测 |
|
萘 |
高线车间 |
1年/次 |
《土壤环境质量 建设用地土壤污染风险管控 标准(试行)》 (GB36600 -2018)
|
70 mg/KG |
质谱法 |
气象色谱仪 |
手工监测 |
|
阳离子交换量 |
高线车间 |
1年/次 |
《土壤环境质量 建设用地土壤污染风险管控 标准(试行)》 (GB36600 -2018)
|
20cmol/kg |
分光光度法 |
分光光度计 |
手工监测 |
|
锌 |
高线车间 |
1年/次 |
《土壤环境质量 建设用地土壤污染风险管控 标准(试行)》 (GB36600 -2018)
|
200 mg/KG |
分光光度法 |
石墨炉原子吸 收光谱仪 |
手工监测 |
|
PH |
污水处理站 |
1年/次 |
《土壤环境质量 建设用地土壤污染风险管控 标准(试行)》 (GB36600 -2018)
|
9-6级 |
玻璃电极法 |
离子计 |
手工监测 |
|
铜 |
污水处理站 |
1年/次 |
《土壤环境质量 建设用地土壤污染风险管控 标准(试行)》 (GB36600 -2018)
|
18000mg/KG |
火焰原子吸收分光光度法
|
原子吸收分光光度计
|
手工监测 |
|
砷 |
污水处理站 |
1年/次 |
《土壤环境质量 建设用地土壤污染风险管控 标准(试行)》 (GB36600 -2018)
|
60 mg/KG
|
原子荧光法
|
原子荧光光度计
|
手工监测 |
|
镉 |
污水处理站 |
1年/次 |
《土壤环境质量 建设用地土壤污染风险管控 标准(试行)》 (GB36600 -2018)
|
65 mg/KG
|
原子荧光法
|
石墨炉原子吸收光谱仪
|
手工监测 |
|
铬(六价铬) |
污水处理站 |
1年/次 |
《土壤环境质量 建设用地土壤污染风险管控 标准(试行)》 (GB36600 -2018)
|
5.7 mg/KG
|
火焰原子吸收分光光度法
|
原子吸收光谱仪
|
手工监测 |
|
铅 |
污水处理站 |
1年/次 |
《土壤环境质量 建设用地土壤污染风险管控 标准(试行)》 (GB36600 -2018)
|
800 mg/KG
|
火焰原子吸收分光光度法
|
火焰原子吸收分光光度计
|
手工监测 |
|
汞 |
污水处理站 |
1年/次 |
《土壤环境质量 建设用地土壤污染风险管控 标准(试行)》 (GB36600 -2018)
|
38 mg/KG |
原子荧光法 |
原子荧光光度 计 |
手工监测 |
|
镍 |
污水处理站 |
1年/次 |
《土壤环境质量 建设用地土壤污染风险管控 标准(试行)》 (GB36600 -2018)
|
900 mg/KG |
火焰原子吸收 分光光度法 |
原子吸收分光 光度计 |
手工监测 |
|
四氯化碳 |
污水处理站 |
1年/次 |
《土壤环境质量 建设用地土壤污染风险管控 标准(试行)》 (GB36600 -2018)
|
2.8 mg/KG |
质谱法 |
气象色谱仪 |
手工监测 |
|
氯仿 |
污水处理站 |
1年/次 |
《土壤环境质量 建设用地土壤污染风险管控 标准(试行)》 (GB36600 -2018)
|
0.9 mg/KG |
质谱法 |
气象色谱仪 |
手工监测 |
|
氯甲烷 |
污水处理站 |
1年/次 |
《土壤环境质量 建设用地土壤污染风险管控 标准(试行)》 (GB36600 -2018)
|
37 mg/KG |
质谱法 |
气象色谱仪 |
手工监测 |
|
顺-1,2-二氯乙烯 |
污水处理站 |
1年/次 |
《土壤环境质量 建设用地土壤污染风险管控 标准(试行)》 (GB36600 -2018)
|
596 mg/KG |
质谱法 |
气象色谱仪 |
手工监测 |
|
反-1,2-二氯 乙烯 |
污水处理站 |
1年/次 |
《土壤环境质量 建设用地土壤污染风险管控 标准(试行)》 (GB36600 -2018)
|
54 mg/KG |
质谱法 |
气象色谱仪 |
手工监测 |
|
二氯甲烷 |
污水处理站 |
1年/次 |
《土壤环境质量 建设用地土壤污染风险管控 标准(试行)》 (GB36600 -2018)
|
616 mg/KG |
质谱法 |
气象色谱仪 |
手工监测 |
|
1,2-二氯丙烷 |
污水处理站 |
1年/次 |
《土壤环境质量 建设用地土壤污染风险管控 标准(试行)》 (GB36600 -2018)
|
5--47 mg/KG |
质谱法 |
气象色谱仪 |
手工监测 |
|
1,1-二氯乙烷 |
污水处理站 |
1年/次 |
《土壤环境质量 建设用地土壤污染风险管控 标准(试行)》 (GB36600 -2018)
|
9 mg/KG |
质谱法 |
气象色谱仪 |
手工监测 |
|
1,2-二氯乙烷 |
污水处理站 |
1年/次 |
《土壤环境质量 建设用地土壤污染风险管控 标准(试行)》 (GB36600 -2018)
|
5--21mg/KG |
质谱法 |
气象色谱仪 |
手工监测 |
|
1,1-二氯乙烯 |
污水处理站 |
1年/次 |
《土壤环境质量 建设用地土壤污染风险管控 标准(试行)》 (GB36600 -2018)
|
66 mg/KG |
质谱法 |
气象色谱仪 |
手工监测 |
|
1,1,1,2-四氯乙烷 |
污水处理站 |
1年/次 |
《土壤环境质量 建设用地土壤污染风险管控 标准(试行)》 (GB36600 -2018)
|
10 mg/KG |
质谱法 |
气象色谱仪 |
手工监测 |
|
1,1,2,2-四氯乙烷 |
污水处理站 |
1年/次 |
《土壤环境质量 建设用地土壤污染风险管控 标准(试行)》 (GB36600 -2018)
|
6.8 mg/KG |
质谱法 |
气象色谱仪 |
手工监测 |
|
四氯乙烯 |
污水处理站 |
1年/次 |
《土壤环境质量 建设用地土壤污染风险管控 标准(试行)》 (GB36600 -2018)
|
53 mg/KG |
质谱法 |
气象色谱仪 |
手工监测 |
|
1,1,1-三氯乙烷 |
污水处理站 |
1年/次 |
《土壤环境质量 建设用地土壤污染风险管控 标准(试行)》 (GB36600 -2018)
|
701--840 mg/KG |
质谱法 |
气象色谱仪 |
手工监测 |
|
1,1,2-三氯乙烷 |
污水处理站 |
1年/次 |
《土壤环境质量 建设用地土壤污染风险管控 标准(试行)》 (GB36600 -2018)
|
2.8--15 mg/KG |
质谱法 |
气象色谱仪 |
手工监测 |
|
氯乙烯 |
污水处理站 |
1年/次 |
《土壤环境质量 建设用地土壤污染风险管控 标准(试行)》 (GB36600 -2018)
|
0.43mg/KG |
质谱法 |
气象色谱仪 |
手工监测 |
|
笨 |
污水处理站 |
1年/次 |
《土壤环境质量 建设用地土壤污染风险管控 标准(试行)》 (GB36600 -2018)
|
4 mg/KG |
质谱法 |
气象色谱仪 |
手工监测 |
|
氯苯 |
污水处理站 |
1年/次 |
《土壤环境质量 建设用地土壤污染风险管控 标准(试行)》 (GB36600 -2018)
|
270 mg/KG |
质谱法 |
气象色谱仪 |
手工监测 |
|
1,2-二氯苯 |
污水处理站 |
1年/次 |
《土壤环境质量 建设用地土壤污染风险管控 标准(试行)》 (GB36600 -2018)
|
560 mg/KG |
质谱法 |
气象色谱仪 |
手工监测 |
|
1,4-二氯苯 |
污水处理站 |
1年/次 |
《土壤环境质量 建设用地土壤污染风险管控 标准(试行)》 (GB36600 -2018)
|
20 mg/KG |
质谱法 |
气象色谱仪 |
手工监测 |
|
乙苯 |
污水处理站 |
1年/次 |
《土壤环境质量 建设用地土壤污染风险管控 标准(试行)》 (GB36600 -2018)
|
28 mg/KG |
质谱法 |
气象色谱仪 |
手工监测 |
|
苯乙烯 |
污水处理站 |
1年/次 |
《土壤环境质量 建设用地土壤污染风险管控 标准(试行)》 (GB36600 -2018)
|
1290mg/KG |
质谱法 |
气象色谱仪 |
手工监测 |
|
甲苯 |
污水处理站 |
1年/次 |
《土壤环境质量 建设用地土壤污染风险管控 标准(试行)》 (GB36600 -2018)
|
1200mg/KG |
质谱法 |
气象色谱仪 |
手工监测 |
|
间二甲苯+对二甲苯 |
污水处理站 |
1年/次 |
《土壤环境质量 建设用地土壤污染风险管控 标准(试行)》 (GB36600 -2018)
|
570 mg/KG |
质谱法 |
气象色谱仪 |
手工监测 |
|
邻二甲苯 |
污水处理站 |
1年/次 |
《土壤环境质量 建设用地土壤污染风险管控 标准(试行)》 (GB36600 -2018)
|
640 mg/KG |
质谱法 |
气象色谱仪 |
手工监测 |
|
硝基苯 |
污水处理站 |
1年/次 |
《土壤环境质量 建设用地土壤污染风险管控 标准(试行)》 (GB36600 -2018)
|
76 mg/KG |
质谱法 |
气象色谱仪 |
手工监测 |
|
苯胺 |
污水处理站 |
1年/次 |
《土壤环境质量 建设用地土壤污染风险管控 标准(试行)》 (GB36600 -2018)
|
260 mg/KG |
质谱法 |
气象色谱仪 |
手工监测 |
|
2-氯酚 |
污水处理站 |
1年/次 |
《土壤环境质量 建设用地土壤污染风险管控 标准(试行)》 (GB36600 -2018)
|
2256mg/KG |
质谱法 |
气象色谱仪 |
手工监测 |
|
苯并[a]蒽 |
污水处理站 |
1年/次 |
《土壤环境质量 建设用地土壤污染风险管控 标准(试行)》 (GB36600 -2018)
|
15 mg/KG |
质谱法 |
气象色谱仪 |
手工监测 |
|
苯并[a]芘 |
污水处理站 |
1年/次 |
《土壤环境质量 建设用地土壤污染风险管控 标准(试行)》 (GB36600 -2018)
|
1.5 mg/KG |
质谱法 |
气象色谱仪 |
手工监测 |
|
苯并[b]荧蒽 |
污水处理站 |
1年/次 |
《土壤环境质量 建设用地土壤污染风险管控 标准(试行)》 (GB36600 -2018)
|
15 mg/KG |
质谱法 |
气象色谱仪 |
手工监测 |
|
苯并[k]荧蒽 |
污水处理站 |
1年/次 |
《土壤环境质量 建设用地土壤污染风险管控 标准(试行)》 (GB36600 -2018)
|
151 mg/KG |
质谱法 |
气象色谱仪 |
手工监测 |
|
䓛 |
污水处理站 |
1年/次 |
《土壤环境质量 建设用地土壤污染风险管控 标准(试行)》 (GB36600 -2018)
|
1293mg/KG |
质谱法 |
气象色谱仪 |
手工监测 |
|
二苯并(a, h)蒽 |
污水处理站 |
1年/次 |
《土壤环境质量 建设用地土壤污染风险管控 标准(试行)》 (GB36600 -2018)
|
1.5 mg/KG |
质谱法 |
气象色谱仪 |
手工监测 |
|
茚并[1,2,3- cd]芘 |
污水处理站 |
1年/次 |
《土壤环境质量 建设用地土壤污染风险管控 标准(试行)》 (GB36600 -2018)
|
15 mg/KG |
质谱法 |
气象色谱仪 |
手工监测 |
|
萘 |
污水处理站 |
1年/次 |
《土壤环境质量 建设用地土壤污染风险管控 标准(试行)》 (GB36600 -2018)
|
70 mg/KG |
质谱法 |
气象色谱仪 |
手工监测 |
|
阳离子交换量 |
污水处理站 |
1年/次 |
《土壤环境质量 建设用地土壤污染风险管控 标准(试行)》 (GB36600 -2018)
|
20cmol/kg |
分光光度法 |
分光光度计 |
手工监测 |
|
锌 |
污水处理站 |
1年/次 |
《土壤环境质量 建设用地土壤污染风险管控 标准(试行)》 (GB36600 -2018)
|
200 mg/KG |
分光光度法 |
石墨炉原子吸 收光谱仪 |
手工监测 |
|
污染物排放方式及排放去向 |
无 |
||||||
|
采样和样品保存方法 |
1、严格按照《土壤环境质量 建设用地土壤污染风险管控 标准(试行)》 (GB36600-2018) 要求进行
|
||||||
|
监测质量控制措施 |
1、监测人员严格执行环境监测技术规范。 |
||||||
|
监测结果公开时限 |
依据《国家重点监控企业自行监测及信息公开办法》的要求及《排污单位自行监测技术指南 钢铁工业及炼焦化学工业》的频次进行监测,监测完成后一周内向社会公开信息。 |
||||||
|
备注 |
|
||||||
三、监测结果
21年有组织废气污染物监测结果表
|
序号 |
排放口编号 |
排放口名称 |
监测日期 |
出口 |
|||||||||||||
|
标干烟气量(Nm3/h) |
氧含量(%) |
二氧化硫(mg/m3) |
颗粒物(mg/m3) |
氮氧化物(mg/m3) |
氟化物(mg/m3) |
铅及其化合物(mg/m3) |
氨(mg/m3) |
烟气黑度 |
|||||||||
|
监测结果 |
折标值 |
监测结果 |
折标值 |
监测结果 |
折标值 |
监测结果 |
折标值 |
监测结果 |
折标值 |
监测结果 |
监测结果 |
||||||
|
1 |
DA020 |
1#高炉出铁场除尘 |
2021.09.29 |
989541 |
/ |
/ |
/ |
0.5 |
/ |
/ |
/ |
/ |
/ |
/ |
/ |
/ |
/ |
|
2 |
DA019 |
1#高炉矿槽场除尘 |
2021.09.29 |
544648 |
/ |
/ |
/ |
0.7 |
/ |
/ |
/ |
/ |
/ |
/ |
/ |
/ |
/ |
|
3 |
DA023 |
2#高炉出铁场除尘 |
2021.09.29 |
1020948 |
/ |
/ |
/ |
0.7 |
/ |
/ |
/ |
/ |
/ |
/ |
/ |
/ |
/ |
|
4 |
DA022 |
2021.09.29 |
652869 |
/ |
/ |
/ |
1 |
/ |
/ |
/ |
/ |
/ |
/ |
/ |
/ |
/ |
|
|
5 |
DA001 |
原料1#除尘 |
2021.09.31 |
514079 |
/ |
/ |
/ |
0.5 |
/ |
/ |
/ |
/ |
/ |
/ |
/ |
/ |
/ |
|
6 |
DA002 |
原料2#除尘 |
2021.09.31 |
258322 |
/ |
/ |
/ |
0.5 |
/ |
/ |
/ |
/ |
/ |
/ |
/ |
/ |
/ |
|
7 |
DA003 |
原料3#除尘 |
2021.09.31 |
313359 |
/ |
/ |
/ |
0.5 |
/ |
/ |
/ |
/ |
/ |
/ |
/ |
/ |
/ |
|
8 |
DA004 |
原料4#除尘 |
2021.09.31 |
496937 |
/ |
/ |
/ |
0.5 |
/ |
/ |
/ |
/ |
/ |
/ |
/ |
/ |
/ |
|
9 |
DA005 |
原料5#除尘 |
2021.09.31 |
280087 |
/ |
/ |
/ |
0.5 |
/ |
/ |
/ |
/ |
/ |
/ |
/ |
/ |
/ |
|
10 |
DA006 |
原料6#除尘 |
2021.09.31 |
412321 |
/ |
/ |
/ |
0.5 |
/ |
/ |
/ |
/ |
/ |
/ |
/ |
/ |
/ |
|
11 |
DA010 |
烧结机尾除尘 |
2021.09.31 |
584863 |
/ |
/ |
/ |
0.5 |
/ |
/ |
/ |
/ |
/ |
/ |
/ |
/ |
/ |
|
12 |
DA011 |
烧结配料除尘 |
2021.09.31 |
326839 |
/ |
/ |
/ |
1.2 |
/ |
/ |
/ |
/ |
/ |
/ |
/ |
/ |
/ |
|
13 |
DA012 |
烧结燃破除尘 |
2021.09.31 |
226467 |
/ |
/ |
/ |
0.5 |
/ |
/ |
/ |
/ |
/ |
/ |
/ |
/ |
/ |
|
14 |
DA013 |
烧结筛分除尘 |
2021.09.31 |
189828 |
/ |
/ |
/ |
1.3 |
/ |
/ |
/ |
/ |
/ |
/ |
/ |
/ |
/ |
|
15 |
DA017 |
球团干燥一段除尘 |
2021.09.31 |
177467 |
/ |
/ |
/ |
1.8 |
/ |
/ |
/ |
/ |
/ |
/ |
/ |
/ |
/ |
|
16 |
DA018 |
球团环境除尘 |
2021.09.31 |
387887 |
/ |
/ |
/ |
0.5 |
/ |
/ |
/ |
/ |
/ |
/ |
/ |
/ |
/ |
|
17 |
DA007 |
原料7#除尘 |
2021.10.06 |
26617 |
/ |
/ |
/ |
0.5 |
/ |
/ |
/ |
/ |
/ |
/ |
/ |
/ |
/ |
|
18 |
DA008 |
原料8#除尘 |
2021.10.06 |
492077 |
/ |
/ |
/ |
0.5 |
/ |
/ |
/ |
/ |
/ |
/ |
/ |
/ |
/ |
|
19 |
DA016 |
球团烘干机除尘 |
2021.10.06 |
48091 |
/ |
/ |
/ |
7.9 |
/ |
/ |
/ |
/ |
/ |
/ |
/ |
/ |
/ |
|
20 |
DA035 |
原料块矿烘干除尘 |
2021.10.06 |
105389 |
/ |
2 |
/ |
0.5 |
/ |
2 |
/ |
/ |
/ |
/ |
/ |
/ |
/ |
|
21 |
DA028 |
1#转炉一次除尘 |
2021.10.06 |
166868 |
/ |
/ |
/ |
0.5 |
/ |
/ |
/ |
/ |
/ |
/ |
/ |
/ |
/ |
|
22 |
DA029 |
1#转炉二次除尘 |
2021.10.06 |
584000 |
/ |
/ |
/ |
0.5 |
/ |
/ |
/ |
/ |
/ |
/ |
/ |
/ |
/ |
|
23 |
DA030 |
转炉三次除尘 |
2021.10.06 |
1196412 |
/ |
/ |
/ |
0.5 |
/ |
/ |
/ |
/ |
/ |
/ |
/ |
/ |
/ |
|
24 |
DA031 |
转炉上料除尘 |
2021.10.06 |
222583 |
/ |
/ |
/ |
0.5 |
/ |
/ |
/ |
/ |
/ |
/ |
/ |
/ |
/ |
|
25 |
DA032 |
2#转炉一次除尘 |
2021.10.06 |
169086 |
/ |
/ |
/ |
0.5 |
/ |
/ |
/ |
/ |
/ |
/ |
/ |
/ |
/ |
|
26 |
DA033 |
2#转炉二次除尘 |
2021.10.06 |
541264 |
/ |
/ |
/ |
0.5 |
/ |
/ |
/ |
/ |
/ |
/ |
/ |
/ |
/ |
|
27 |
DA041 |
连铸大包除尘 |
2021.10.06 |
523395 |
/ |
/ |
/ |
0.5 |
/ |
/ |
/ |
/ |
/ |
/ |
/ |
/ |
/ |
|
28 |
DA050 |
石灰窑受料槽除尘 |
2021.10.06 |
79913 |
/ |
/ |
/ |
0.5 |
/ |
/ |
/ |
/ |
/ |
/ |
/ |
/ |
/ |
|
29 |
DA052 |
石灰窑原料除尘 |
2021.10.06 |
109567 |
/ |
/ |
/ |
0.5 |
/ |
/ |
/ |
/ |
/ |
/ |
/ |
/ |
/ |
|
30 |
DA038 |
1#钢渣湿电除尘 |
2021.10.06 |
131798 |
/ |
/ |
/ |
0.5 |
/ |
/ |
/ |
/ |
/ |
/ |
/ |
/ |
/ |
|
31 |
DA027 |
2#钢渣湿电除尘 |
2021.10.06 |
132566 |
/ |
/ |
/ |
0.5 |
/ |
/ |
/ |
/ |
/ |
/ |
/ |
/ |
/ |
|
32 |
DA021 |
1#喷煤收粉器 |
2021.10.07 |
131469 |
/ |
/ |
/ |
3.2 |
/ |
/ |
/ |
/ |
/ |
/ |
/ |
/ |
/ |
|
33 |
DA053 |
石灰窑成品除尘 |
2021.10.07 |
369950 |
/ |
/ |
/ |
2.2 |
/ |
/ |
/ |
/ |
/ |
/ |
/ |
/ |
/ |
|
34 |
DA025 |
1#高炉热风炉 |
2021.10.07 |
188466 |
/ |
44 |
/ |
0.5 |
/ |
20 |
/ |
/ |
/ |
/ |
/ |
/ |
/ |
|
35 |
DA026 |
2#高炉热风炉 |
2021.10.07 |
203808 |
/ |
41 |
/ |
0.5 |
/ |
27 |
/ |
/ |
/ |
/ |
/ |
/ |
/ |
|
36 |
DA042 |
1#加热炉空烟 |
2021.10.07 |
28500 |
5.5 |
52 |
43 |
0.5 |
0.4 |
49 |
40 |
/ |
/ |
/ |
/ |
/ |
/ |
|
37 |
DA043 |
1#加热炉煤烟 |
2021.10.07 |
23599 |
2.6 |
47 |
33 |
1.4 |
1 |
30 |
21 |
/ |
/ |
/ |
/ |
/ |
/ |
|
38 |
DA044 |
2#加热炉空烟 |
2021.10.07 |
67098 |
3.3 |
47 |
34 |
0.5 |
0.4 |
42 |
31 |
/ |
/ |
/ |
/ |
/ |
/ |
|
39 |
DA045 |
2#加热炉煤烟 |
2021.10.07 |
89485 |
3.1 |
49 |
36 |
0.5 |
0.4 |
39 |
28 |
/ |
/ |
/ |
/ |
/ |
/ |
|
40 |
DA051 |
石灰窑焙烧除尘 |
2021.10.07 |
53632 |
9.7 |
2 |
2 |
5.8 |
6.6 |
20 |
23 |
/ |
/ |
/ |
/ |
/ |
/ |
|
41 |
DA037 |
矿渣粉磨除尘 |
2021.10.16 |
232787 |
/ |
3 |
/ |
1.6 |
/ |
2 |
/ |
/ |
/ |
/ |
/ |
/ |
/ |
|
42 |
DA024 |
2#喷煤收粉器 |
2021.10.16 |
122943 |
/ |
/ |
/ |
1.1 |
/ |
/ |
/ |
/ |
/ |
/ |
/ |
/ |
/ |
|
43 |
DA014 |
烧结一混除尘 |
2021.10.16 |
49091 |
/ |
/ |
/ |
0.7 |
/ |
/ |
/ |
/ |
/ |
/ |
/ |
/ |
/ |
|
44 |
DA015 |
烧结二混除尘 |
2021.10.16 |
50625 |
/ |
/ |
/ |
0.5 |
/ |
/ |
/ |
/ |
/ |
/ |
/ |
/ |
/ |
|
45 |
DA009 |
烧结球团脱硫脱硝 |
2021.10.16 |
2177150 |
15.2 |
7 |
6 |
0.5 |
0.4 |
21 |
18 |
0.51 |
0.44 |
0.115 |
0.0986 |
0.33 |
/ |
|
46 |
DA042 |
1#加热炉空烟 |
2021.12.03 |
26861 |
4.3 |
39 |
31 |
0.5 |
0.4 |
39 |
31 |
/ |
/ |
/ |
/ |
/ |
/ |
|
47 |
DA043 |
1#加热炉煤烟 |
2021.12.03 |
25337 |
2.7 |
42 |
30 |
1.8 |
1.3 |
40 |
29 |
/ |
/ |
/ |
/ |
/ |
/ |
|
48 |
DA044 |
2#加热炉空烟 |
2021.12.03 |
63961 |
3.3 |
45 |
33 |
0.8 |
0.6 |
46 |
34 |
/ |
/ |
/ |
/ |
/ |
/ |
|
49 |
DA045 |
2#加热炉煤烟 |
2021.12.03 |
87032 |
3.1 |
40 |
29 |
1.5 |
1.1 |
45 |
32 |
/ |
/ |
/ |
/ |
/ |
/ |
|
50 |
DA046 |
3#加热炉空烟 |
2021.12.03 |
61050 |
3.3 |
44 |
33 |
1.2 |
0.9 |
47 |
34 |
/ |
/ |
/ |
/ |
/ |
/ |
|
51 |
DA047 |
3#加热炉煤烟 |
2021.12.03 |
73888 |
3.1 |
41 |
30 |
1.5 |
1.1 |
41 |
30 |
/ |
/ |
/ |
/ |
/ |
/ |
|
52 |
DA011 |
烧结配料除尘 |
2021.12.03 |
324087 |
/ |
/ |
/ |
0.7 |
/ |
/ |
/ |
/ |
/ |
/ |
/ |
/ |
/ |
|
53 |
DA013 |
烧结筛分除尘 |
2021.12.03 |
198594 |
/ |
/ |
/ |
1.0 |
/ |
/ |
/ |
/ |
/ |
/ |
/ |
/ |
/ |
|
54 |
DA030 |
转炉三次除尘 |
2021.12.03 |
1100863 |
/ |
/ |
/ |
0.9 |
/ |
/ |
/ |
/ |
/ |
/ |
/ |
/ |
/ |
|
55 |
DA009 |
烧结球团脱硫脱硝 |
2021.12.03 |
2263322 |
15.3 |
/ |
/ |
/ |
/ |
/ |
/ |
0.52 |
0.45 |
0.0394 |
0.0344 |
1.04 |
/ |
|
56 |
DA034 |
煤气发电锅炉脱硫 |
2021.12.03 |
/ |
/ |
/ |
/ |
/ |
/ |
/ |
/ |
/ |
/ |
/ |
/ |
/ |
<1级 |
|
57 |
DA035 |
原料块矿烘干除尘 |
2021.12.03 |
102064 |
/ |
2 |
/ |
0.5 |
/ |
2 |
/ |
/ |
/ |
/ |
/ |
/ |
/ |
|
58 |
DA037 |
矿渣粉磨除尘 |
2021.12.03 |
230012 |
/ |
2 |
/ |
1.1 |
/ |
2 |
/ |
/ |
/ |
/ |
/ |
/ |
/ |
22年有组织废气污染物监测结果表
|
序号 |
排放口编号 |
排放口名称 |
监测日期 |
出口 |
|||||||||||||
|
标干烟气量(Nm3/h) |
氧含量(%) |
二氧化硫(mg/m3) |
颗粒物(mg/m3) |
氮氧化物(mg/m3) |
氟化物(mg/m3) |
铅及其化合物(mg/m3) |
氨(mg/m3) |
烟气黑度 |
|||||||||
|
监测结果 |
折标值 |
监测结果 |
折标值 |
监测结果 |
折标值 |
监测结果 |
折标值 |
监测结果 |
折标值 |
监测结果 |
监测结果 |
||||||
|
1 |
DA011 |
烧结配料除尘 |
2022.02.28 |
362784 |
/ |
/ |
/ |
1 |
/ |
/ |
/ |
/ |
/ |
/ |
/ |
/ |
/ |
|
2 |
DA013 |
烧结筛分除尘 |
2022.02.28 |
184220 |
/ |
/ |
/ |
0.8 |
/ |
/ |
/ |
/ |
/ |
/ |
/ |
/ |
/ |
|
3 |
DA030 |
转炉三次除尘 |
2022.02.28 |
1148269 |
/ |
/ |
/ |
0.7 |
/ |
/ |
/ |
/ |
/ |
/ |
/ |
/ |
/ |
|
4 |
DA048 |
4#加热炉空烟 |
2022.02.28 |
10118 |
3.6 |
25 |
19 |
0.5 |
0.4 |
6 |
4 |
/ |
/ |
/ |
/ |
/ |
/ |
|
5 |
DA049 |
4#加热炉煤烟 |
2022.02.28 |
12999 |
5.8 |
3 |
3 |
0.5 |
0.4 |
6 |
5 |
/ |
/ |
/ |
/ |
/ |
/ |
|
6 |
DA042 |
1#加热炉空烟 |
2022.03.16 |
35731 |
5.5 |
50 |
42 |
0.5 |
0.4 |
50 |
42 |
/ |
/ |
/ |
/ |
/ |
/ |
|
7 |
DA043 |
1#加热炉煤烟 |
2022.03.16 |
55882 |
2.4 |
42 |
29 |
0.5 |
0.4 |
34 |
24 |
/ |
/ |
/ |
/ |
/ |
/ |
|
8 |
DA044 |
2#加热炉空烟 |
2022.03.16 |
60602 |
8.6 |
13 |
14 |
0.5 |
0.5 |
8 |
9 |
/ |
/ |
/ |
/ |
/ |
/ |
|
9 |
DA045 |
2#加热炉煤烟 |
2022.03.16 |
71591 |
5.6 |
4 |
3 |
0.5 |
0.4 |
7 |
6 |
/ |
/ |
/ |
/ |
/ |
/ |
|
10 |
DA046 |
3#加热炉空烟 |
2022.03.16 |
45919 |
3.7 |
35 |
26 |
5.7 |
4.3 |
47 |
36 |
/ |
/ |
/ |
/ |
/ |
/ |
|
11 |
DA047 |
3#加热炉煤烟 |
2022.03.16 |
67836 |
3.8 |
31 |
24 |
0.5 |
0.4 |
45 |
34 |
/ |
/ |
/ |
/ |
/ |
/ |
|
12 |
DA040 |
除尘灰处理窑头及上料除尘 |
2022.03.31 |
65675 |
/ |
/ |
/ |
0.5 |
/ |
/ |
/ |
/ |
/ |
/ |
/ |
/ |
/ |
|
13 |
DA037 |
矿渣粉磨除尘 |
2022.03.31 |
310692 |
/ |
3 |
/ |
0.5 |
/ |
4 |
/ |
/ |
/ |
/ |
/ |
/ |
/ |
|
14 |
DA009 |
烧结球团脱硫脱硝 |
2022.03.31 |
1611978 |
/ |
/ |
/ |
/ |
/ |
/ |
/ |
0.63 |
0.59 |
0.0089 |
0.0084 |
/ |
/ |
|
15 |
DA034 |
煤气发电锅炉脱硫 |
2022.03.31 |
/ |
/ |
/ |
/ |
/ |
/ |
/ |
/ |
/ |
/ |
/ |
/ |
/ |
<1级 |
|
16 |
DA040 |
除尘灰处理窑头及上料除尘 |
2022.04.23 |
64390 |
/ |
/ |
/ |
0.5 |
/ |
/ |
/ |
/ |
/ |
/ |
/ |
/ |
/ |
|
17 |
DA037 |
矿渣粉磨除尘 |
2022.04.21 |
349520 |
/ |
2 |
/ |
2.9 |
/ |
23 |
/ |
/ |
/ |
/ |
/ |
/ |
/ |
|
18 |
DA042 |
1#加热炉空烟 |
2022.04.23 |
34057 |
3.2 |
26 |
19 |
1.7 |
1.2 |
34 |
25 |
/ |
/ |
/ |
/ |
/ |
/ |
|
19 |
DA043 |
1#加热炉煤烟 |
2022.04.23 |
39788 |
3.4 |
39 |
29 |
3.3 |
2.5 |
37 |
27 |
/ |
/ |
/ |
/ |
/ |
/ |
|
20 |
DA044 |
2#加热炉空烟 |
2022.04.21 |
35609 |
4.4 |
2 |
2 |
2.9 |
2.3 |
36 |
28 |
/ |
/ |
/ |
/ |
/ |
/ |
|
21 |
DA045 |
2#加热炉煤烟 |
2022.04.21 |
61585 |
3.1 |
22 |
16 |
0.5 |
0.4 |
25 |
18 |
/ |
/ |
/ |
/ |
/ |
/ |
|
22 |
DA046 |
3#加热炉空烟 |
2022.04.21 |
13928 |
4.9 |
7 |
6 |
2.9 |
2.3 |
44 |
36 |
/ |
/ |
/ |
/ |
/ |
/ |
|
23 |
DA047 |
3#加热炉煤烟 |
2022.04.21 |
22170 |
3.5 |
27 |
20 |
0.5 |
0.4 |
44 |
33 |
/ |
/ |
/ |
/ |
/ |
/ |
|
24 |
DA048 |
4#加热炉空烟 |
2022.04.23 |
25146 |
3.2 |
22 |
16 |
0.5 |
0.4 |
38 |
28 |
/ |
/ |
/ |
/ |
/ |
/ |
|
25 |
DA049 |
4#加热炉煤烟 |
2022.04.23 |
36856 |
4.0 |
25 |
19 |
1.5 |
1.1 |
46 |
35 |
/ |
/ |
/ |
/ |
/ |
/ |
|
26 |
DA011 |
烧结配料除尘 |
2022.04.21 |
370145 |
/ |
/ |
/ |
0.5 |
/ |
/ |
/ |
/ |
/ |
/ |
/ |
/ |
/ |
|
27 |
DA013 |
烧结筛分除尘 |
2022.04.21 |
187389 |
/ |
/ |
/ |
0.5 |
/ |
/ |
/ |
/ |
/ |
/ |
/ |
/ |
/ |
|
28 |
DA030 |
转炉三次除尘 |
2022.04.22 |
1396279 |
/ |
/ |
/ |
0.5 |
/ |
/ |
/ |
/ |
/ |
/ |
/ |
/ |
/ |
|
29 |
DA059 |
活性炭2#除尘 |
2022.04.22 |
29160 |
/ |
/ |
/ |
0.5 |
/ |
/ |
/ |
/ |
/ |
/ |
/ |
/ |
/ |
|
30 |
DA028 |
1#转炉一次除尘 |
2022.04.22 |
99474 |
/ |
/ |
/ |
0.7 |
/ |
/ |
/ |
/ |
/ |
/ |
/ |
/ |
/ |
|
31 |
DA032 |
2#转炉一次除尘 |
2022.04.22 |
120287 |
/ |
/ |
/ |
2.9 |
/ |
/ |
/ |
/ |
/ |
/ |
/ |
/ |
/ |
|
32 |
DA061 |
微粉仓顶2#除尘 |
2022.04.22 |
5044 |
/ |
/ |
/ |
1.0 |
/ |
/ |
/ |
/ |
/ |
/ |
/ |
/ |
/ |
|
33 |
DA062 |
微粉仓顶3#除尘 |
2022.04.22 |
2924 |
/ |
/ |
/ |
0.5 |
/ |
/ |
/ |
/ |
/ |
/ |
/ |
/ |
/ |
|
34 |
DA063 |
微粉仓顶4#除尘 |
2022.04.22 |
2476 |
/ |
/ |
/ |
0.5 |
/ |
/ |
/ |
/ |
/ |
/ |
/ |
/ |
/ |
|
35 |
DA009 |
烧结球团脱硫脱硝 |
2022.04.23 |
2155319 |
15.4 |
/ |
/ |
/ |
/ |
/ |
/ |
0.55 |
0.5 |
0.0491 |
0.0442 |
1.36 |
/ |
|
36 |
DA034 |
煤气发电锅炉脱硫 |
2022.04.23 |
/ |
/ |
/ |
/ |
/ |
/ |
/ |
/ |
/ |
/ |
/ |
/ |
/ |
<1级 |
无组织废气污染物监测结果表
|
序号 |
生产设施编号/ |
监测日期 |
监测时间 |
颗粒物(mg/m3) |
氨(mg/m3) |
非甲烷总烃(mg/m3) |
|
1 |
轧钢一车间 |
2021.12.2 |
15:40-19:20 |
0.422 |
/ |
/ |
|
2 |
轧钢二车间 |
2021.12.2 |
15:40-19:20 |
0.401 |
/ |
/ |
|
3 |
转炉生产车间 |
2021.12.2 |
15:40-19:20 |
0.471 |
/ |
/ |
|
4 |
烧结生产车间 |
2021.12.3 |
8:40-12:20 |
0.487 |
/ |
/ |
|
5 |
烧结脱硫脱硝氨水罐 |
2021.12.3 |
8:40-12:20 |
/ |
0.078 |
/ |
|
6 |
球团生产车间 |
2021.12.3 |
9:00-12:40 |
0.434 |
/ |
/ |
|
7 |
1#高炉 |
2021.12.3 |
13:00-17:00 |
0.418 |
/ |
/ |
|
8 |
2#高炉 |
2021.12.3 |
13:00-17:00 |
0.437 |
/ |
/ |
|
9 |
公司厂界 |
2021.12.4 |
9:00-12:40 |
0.539 |
/ |
0.89 |
|
10 |
公司厂界 |
2022.03.01 |
11:30-15:30 |
0.372 |
/ |
1.05 |
|
11 |
烧结脱硫脱硝氨水罐 |
2022.03.01 |
11:30-15:30 |
/ |
0.065 |
/ |
|
12 |
公司厂界 |
2022.04.23 |
10:30-15:00 |
0.292 |
/ |
0.95 |
|
13 |
烧结脱硫脱硝氨水罐 |
2022.04.23 |
12:00-16:00 |
/ |
0.082 |
/ |
废水污染物监测结果表
|
序号 |
排放口编号 |
排放口名称 |
监测日期 |
出口 |
||||||||||||||||
|
PH(无量纲) |
悬浮物(mg/L) |
化学需氧量(mg/L) |
氨氮(mg/L) |
挥发酚(mg/L) |
氰化物(mg/L) |
流量(m3/h) |
石油类(mg/L) |
总铅(mg/L) |
总砷(mg/L) |
六价铬(mg/L) |
总镉(mg/L) |
总铬(mg/L) |
总镍(mg/L) |
总汞(mg/L) |
生化需氧量(mg/L) |
氨氮氮氧化物(mg/L) |
||||
|
1 |
|
1#高炉冲渣补水口 |
2021.11.20 |
7.26 |
25 |
36 |
0.715 |
0.01 |
0.004 |
/ |
/ |
/ |
/ |
/ |
/ |
/ |
/ |
/ |
/ |
/ |
|
2 |
|
1#高炉冲渣回用水 |
2021.11.20 |
/ |
/ |
/ |
/ |
0.01 |
/ |
/ |
/ |
/ |
/ |
/ |
/ |
/ |
/ |
/ |
/ |
/ |
|
3 |
|
2#高炉冲渣补水 |
2021.11.20 |
7.33 |
24 |
31 |
0.878 |
0.01 |
0.004 |
/ |
/ |
/ |
/ |
/ |
/ |
/ |
/ |
/ |
/ |
/ |
|
4 |
|
2#高炉冲渣回水 |
2021.11.20 |
/ |
/ |
/ |
/ |
0.01 |
/ |
/ |
/ |
/ |
/ |
/ |
/ |
/ |
/ |
/ |
/ |
/ |
|
5 |
DW003 |
轧钢一车间废水排放口 |
2021.11.20 |
/ |
/ |
/ |
/ |
/ |
/ |
/ |
/ |
/ |
0.0003 |
0.004 |
0.05 |
0.05 |
0.004 |
0.00004 |
/ |
/ |
|
6 |
|
1#高炉冲渣补水口 |
2021.11.29 |
7.37 |
78 |
33 |
1.32 |
0.01 |
0.004 |
/ |
/ |
/ |
/ |
/ |
/ |
/ |
/ |
/ |
/ |
/ |
|
7 |
|
1#高炉冲渣回用水 |
2021.11.29 |
/ |
/ |
/ |
/ |
0.01 |
/ |
/ |
/ |
/ |
/ |
/ |
/ |
/ |
/ |
/ |
/ |
/ |
|
8 |
|
2#高炉冲渣补水 |
2021.11.29 |
7.19 |
71 |
35 |
1.45 |
0.01 |
0.004 |
/ |
/ |
/ |
/ |
/ |
/ |
/ |
/ |
/ |
/ |
/ |
|
9 |
|
2#高炉冲渣回水 |
2021.11.29 |
/ |
/ |
/ |
/ |
0.01 |
/ |
/ |
/ |
/ |
/ |
/ |
/ |
/ |
/ |
/ |
/ |
/ |
|
10 |
|
1#高炉冲渣补水口 |
2021.12.07 |
7.49 |
68 |
35 |
0.08 |
0.01 |
0.004 |
/ |
/ |
/ |
/ |
/ |
/ |
/ |
/ |
/ |
/ |
/ |
|
11 |
|
1#高炉冲渣回用水 |
2021.12.07 |
/ |
/ |
/ |
/ |
0.01 |
|
/ |
/ |
/ |
/ |
/ |
/ |
/ |
/ |
/ |
/ |
/ |
|
12 |
|
2#高炉冲渣补水 |
2021.12.07 |
7.25 |
61 |
36 |
0.92 |
0.01 |
0.004 |
/ |
/ |
/ |
/ |
/ |
/ |
/ |
/ |
/ |
/ |
/ |
|
13 |
|
2#高炉冲渣回水 |
2021.12.07 |
/ |
/ |
/ |
/ |
0.01 |
/ |
/ |
/ |
/ |
/ |
/ |
/ |
/ |
/ |
/ |
/ |
/ |
|
14 |
|
1#高炉冲渣补水口 |
2021.12.15 |
7.26 |
43 |
87 |
0.86 |
0.01 |
0.004 |
/ |
/ |
/ |
/ |
/ |
/ |
/ |
/ |
/ |
/ |
/ |
|
15 |
|
1#高炉冲渣回用水 |
2021.12.15 |
/ |
/ |
/ |
/ |
0.01 |
/ |
/ |
/ |
/ |
/ |
/ |
/ |
/ |
/ |
/ |
/ |
/ |
|
16 |
|
2#高炉冲渣补水 |
2021.12.15 |
7.37 |
48 |
55 |
0.88 |
0.01 |
0.004 |
/ |
/ |
/ |
/ |
/ |
/ |
/ |
/ |
/ |
/ |
/ |
|
17 |
|
2#高炉冲渣回水 |
2021.12.15 |
/ |
/ |
/ |
/ |
0.01 |
/ |
/ |
/ |
/ |
/ |
/ |
/ |
/ |
/ |
/ |
/ |
/ |
|
18 |
DW003 |
轧钢一车间废水排放口 |
2021.12.21 |
/ |
/ |
/ |
/ |
/ |
/ |
/ |
/ |
/ |
0.0003 |
0.004 |
0.05 |
0.004 |
0.05 |
0.00004 |
/ |
/ |
|
19 |
DW004 |
轧钢二车间废水排放口 |
2021.12.21 |
/ |
/ |
/ |
/ |
/ |
/ |
/ |
/ |
/ |
0.0003 |
0.004 |
0.05 |
0.004 |
0.05 |
0.00004 |
/ |
/ |
|
20 |
DW001 |
烧结球团脱硫车间废水排放口 |
2021.12.21 |
7 |
94 |
933 |
/ |
/ |
/ |
3.6 |
0.76 |
0.2 |
0.0003 |
/ |
/ |
/ |
/ |
/ |
/ |
/ |
|
21 |
|
1#高炉冲渣补水口 |
2021.12.21 |
7.4 |
68 |
48 |
1.14 |
0.01 |
0.004 |
/ |
/ |
/ |
/ |
/ |
/ |
/ |
/ |
/ |
/ |
/ |
|
22 |
|
1#高炉冲渣回用水 |
2021.12.21 |
/ |
/ |
/ |
/ |
0.01 |
/ |
/ |
/ |
/ |
/ |
/ |
/ |
/ |
/ |
/ |
/ |
/ |
|
23 |
|
2#高炉冲渣补水 |
2021.12.21 |
7.1 |
60 |
49 |
1.25 |
0.01 |
0.004 |
/ |
/ |
/ |
/ |
/ |
/ |
/ |
/ |
/ |
/ |
/ |
|
24 |
|
2#高炉冲渣回水 |
2021.12.21 |
/ |
/ |
/ |
/ |
0.01 |
/ |
/ |
/ |
/ |
/ |
/ |
/ |
/ |
/ |
/ |
/ |
/ |
|
25 |
|
1#高炉冲渣补水口 |
2021.12.30 |
7.46 |
76 |
63 |
0.866 |
0.01 |
0.004 |
/ |
/ |
/ |
/ |
/ |
/ |
/ |
/ |
/ |
/ |
/ |
|
26 |
|
1#高炉冲渣回用水 |
2021.12.30 |
/ |
/ |
/ |
/ |
0.01 |
/ |
/ |
/ |
/ |
/ |
/ |
/ |
/ |
/ |
/ |
/ |
/ |
|
27 |
|
2#高炉冲渣补水 |
2021.12.30 |
7.24 |
73 |
55 |
0.88 |
0.01 |
0.004 |
/ |
/ |
/ |
/ |
/ |
/ |
/ |
/ |
/ |
/ |
/ |
|
28 |
|
2#高炉冲渣回水 |
2021.12.30 |
/ |
/ |
/ |
/ |
0.01 |
/ |
/ |
/ |
/ |
/ |
/ |
/ |
/ |
/ |
/ |
/ |
/ |
|
29 |
|
1#高炉冲渣补水口 |
2022.01.03 |
7.32 |
34 |
37 |
0.432 |
0.01 |
0.004 |
/ |
/ |
/ |
/ |
/ |
/ |
/ |
/ |
/ |
/ |
/ |
|
30 |
|
1#高炉冲渣回用水 |
2022.01.03 |
/ |
/ |
/ |
/ |
0.01 |
/ |
/ |
/ |
/ |
/ |
/ |
/ |
/ |
/ |
/ |
/ |
/ |
|
31 |
|
2#高炉冲渣补水 |
2022.01.03 |
7.39 |
35 |
39 |
0.402 |
0.01 |
0.004 |
/ |
/ |
/ |
/ |
/ |
/ |
/ |
/ |
/ |
/ |
/ |
|
32 |
|
2#高炉冲渣回水 |
2022.01.03 |
/ |
/ |
/ |
/ |
0.01 |
/ |
/ |
/ |
/ |
/ |
/ |
/ |
/ |
/ |
/ |
/ |
/ |
|
33 |
DW003 |
轧钢一车间废水排放口 |
2022.01.03 |
/ |
/ |
/ |
/ |
/ |
/ |
/ |
/ |
/ |
0.0003 |
0.004 |
0.05 |
0.004 |
0.05 |
0.00004 |
/ |
/ |
|
34 |
DW004 |
轧钢二车间废水排放口 |
2022.01.03 |
/ |
/ |
/ |
/ |
/ |
/ |
/ |
/ |
/ |
0.0003 |
0.004 |
0.05 |
0.004 |
0.05 |
0.00004 |
/ |
/ |
|
35 |
DW001 |
烧结球团脱硫车间废水排放口 |
2022.01.03 |
6.87 |
91 |
745 |
/ |
/ |
/ |
32 |
1.05 |
0.2 |
0.0003 |
/ |
/ |
/ |
/ |
/ |
/ |
/ |
|
36 |
|
1#高炉冲渣补水口 |
2022.01.10 |
7.62 |
62 |
50 |
0.542 |
0.01 |
0.004 |
/ |
/ |
/ |
/ |
/ |
/ |
/ |
/ |
/ |
/ |
/ |
|
37 |
|
1#高炉冲渣回用水 |
2022.01.10 |
/ |
/ |
/ |
/ |
0.01 |
/ |
/ |
/ |
/ |
/ |
/ |
/ |
/ |
/ |
/ |
/ |
/ |
|
38 |
|
2#高炉冲渣补水 |
2022.01.10 |
7.59 |
66 |
48 |
0.508 |
0.01 |
0.004 |
/ |
/ |
/ |
/ |
/ |
/ |
/ |
/ |
/ |
/ |
/ |
|
39 |
|
2#高炉冲渣回水 |
2022.01.10 |
/ |
/ |
/ |
/ |
0.01 |
/ |
/ |
/ |
/ |
/ |
/ |
/ |
/ |
/ |
/ |
/ |
/ |
|
40 |
|
1#高炉冲渣补水口 |
2022.01.17 |
7.13 |
55 |
49 |
0.513 |
0.01 |
0.004 |
/ |
/ |
/ |
/ |
/ |
/ |
/ |
/ |
/ |
/ |
/ |
|
41 |
|
1#高炉冲渣回用水 |
2022.01.17 |
/ |
/ |
/ |
/ |
0.01 |
/ |
/ |
/ |
/ |
/ |
/ |
/ |
/ |
/ |
/ |
/ |
/ |
|
42 |
|
2#高炉冲渣补水 |
2022.01.17 |
7.48 |
62 |
51 |
0.492 |
0.01 |
0.004 |
/ |
/ |
/ |
/ |
/ |
/ |
/ |
/ |
/ |
/ |
/ |
|
43 |
|
2#高炉冲渣回水 |
2022.01.17 |
/ |
/ |
/ |
/ |
0.01 |
/ |
/ |
/ |
/ |
/ |
/ |
/ |
/ |
/ |
/ |
/ |
/ |
|
44 |
|
1#高炉冲渣补水口 |
2022.01.25 |
7.36 |
52 |
62 |
0.965 |
0.01 |
0.004 |
/ |
/ |
/ |
/ |
/ |
/ |
/ |
/ |
/ |
/ |
/ |
|
45 |
|
2#高炉冲渣补水 |
2022.01.25 |
7.47 |
56 |
53 |
0.946 |
0.01 |
0.004 |
/ |
/ |
/ |
/ |
/ |
/ |
/ |
/ |
/ |
/ |
/ |
|
46 |
|
2#高炉冲渣回水 |
2022.01.25 |
/ |
/ |
/ |
/ |
0.01 |
/ |
/ |
/ |
/ |
/ |
/ |
/ |
/ |
/ |
/ |
/ |
/ |
|
47 |
|
1#高炉冲渣补水口 |
2022.02.07 |
7.33 |
49 |
51 |
0.43 |
0.01 |
0.004 |
/ |
/ |
/ |
/ |
/ |
/ |
/ |
/ |
/ |
/ |
/ |
|
48 |
|
1#高炉冲渣回用水 |
2022.02.07 |
/ |
/ |
/ |
/ |
0.01 |
/ |
/ |
/ |
/ |
/ |
/ |
/ |
/ |
/ |
/ |
/ |
/ |
|
49 |
|
2#高炉冲渣补水 |
2022.02.07 |
7.42 |
54 |
59 |
0.364 |
0.01 |
0.004 |
/ |
/ |
/ |
/ |
/ |
/ |
/ |
/ |
/ |
/ |
/ |
|
50 |
|
2#高炉冲渣回水 |
2022.02.07 |
/ |
/ |
/ |
/ |
0.01 |
/ |
/ |
/ |
/ |
/ |
/ |
/ |
/ |
/ |
/ |
/ |
/ |
|
51 |
DW003 |
轧钢一车间废水排放口 |
2022.02.19 |
/ |
/ |
/ |
/ |
/ |
/ |
/ |
/ |
/ |
0.0003 |
0.004 |
0.05 |
0.004 |
0.05 |
0.00004 |
/ |
/ |
|
52 |
DW001 |
烧结球团脱硫车间废水排放口 |
2022.02.19 |
6.89 |
48 |
10 |
/ |
/ |
/ |
36 |
0.06 |
0.2 |
0.0003 |
/ |
/ |
/ |
/ |
/ |
/ |
/ |
|
53 |
|
1#高炉冲渣补水口 |
2022.02.19 |
7.48 |
54 |
20 |
0.116 |
0.01 |
0.004 |
/ |
/ |
/ |
/ |
/ |
/ |
/ |
/ |
/ |
/ |
/ |
|
54 |
|
1#高炉冲渣回用水 |
2022.02.19 |
/ |
/ |
/ |
/ |
0.01 |
/ |
/ |
/ |
/ |
/ |
/ |
/ |
/ |
/ |
/ |
/ |
/ |
|
55 |
|
1#高炉冲渣补水口 |
2022.02.24 |
7.48 |
54 |
20 |
0.632 |
0.01 |
0.004 |
/ |
/ |
/ |
/ |
/ |
/ |
/ |
/ |
/ |
/ |
/ |
|
56 |
|
1#高炉冲渣回用水 |
2022.02.24 |
/ |
/ |
/ |
/ |
0.01 |
/ |
/ |
/ |
/ |
/ |
/ |
/ |
/ |
/ |
/ |
/ |
/ |
|
57 |
DW001 |
烧结球团脱硫车间废水排放口 |
2022.03.07 |
6.87 |
60 |
683 |
/ |
/ |
/ |
33 |
0.09 |
0.2 |
0.0003 |
/ |
/ |
/ |
/ |
/ |
/ |
/ |
|
58 |
|
1#高炉冲渣补水口 |
2022.03.07 |
7.45 |
52 |
46 |
1.6 |
0.01 |
0.004 |
/ |
/ |
/ |
/ |
/ |
/ |
/ |
/ |
/ |
/ |
/ |
|
59 |
|
1#高炉冲渣回用水 |
2022.03.07 |
/ |
/ |
/ |
/ |
0.01 |
/ |
/ |
/ |
/ |
/ |
/ |
/ |
/ |
/ |
/ |
/ |
/ |
|
60 |
|
1#高炉冲渣补水口 |
2022.03.14 |
7.67 |
63 |
41 |
1.61 |
未检出 |
0.004 |
/ |
/ |
/ |
/ |
/ |
/ |
/ |
/ |
/ |
/ |
/ |
|
61 |
|
1#高炉冲渣回用水 |
2022.03.14 |
/ |
/ |
/ |
/ |
未检出 |
/ |
/ |
/ |
/ |
/ |
/ |
/ |
/ |
/ |
/ |
/ |
/ |
|
62 |
|
2#高炉冲渣补水 |
2022.03.14 |
7.59 |
57 |
39 |
1.69 |
未检出 |
0.004 |
/ |
/ |
/ |
/ |
/ |
/ |
/ |
/ |
/ |
/ |
/ |
|
63 |
|
2#高炉冲渣回水 |
2022.03.14 |
/ |
/ |
/ |
/ |
未检出 |
/ |
/ |
/ |
/ |
/ |
/ |
/ |
/ |
/ |
/ |
/ |
/ |
|
64 |
|
1#高炉冲渣补水口 |
2022.03.17 |
7.05 |
68 |
52 |
1.82 |
未检出 |
未检出 |
/ |
/ |
/ |
/ |
/ |
/ |
/ |
/ |
/ |
/ |
/ |
|
65 |
|
1#高炉冲渣回用水 |
2022.03.17 |
/ |
/ |
/ |
/ |
未检出 |
/ |
/ |
/ |
/ |
/ |
/ |
/ |
/ |
/ |
/ |
/ |
/ |
|
66 |
|
2#高炉冲渣补水 |
2022.03.17 |
7.21 |
52 |
53 |
1.83 |
未检出 |
未检出 |
/ |
/ |
/ |
/ |
/ |
/ |
/ |
/ |
/ |
/ |
/ |
|
67 |
|
2#高炉冲渣回水 |
2022.03.17 |
/ |
/ |
/ |
/ |
未检出 |
/ |
/ |
/ |
/ |
/ |
/ |
/ |
/ |
/ |
/ |
/ |
/ |
|
68 |
|
1#高炉冲渣补水口 |
2022.03.31 |
7.11 |
57 |
95 |
2.6 |
未检出 |
未检出 |
/ |
/ |
/ |
/ |
/ |
/ |
/ |
/ |
/ |
/ |
/ |
|
69 |
|
1#高炉冲渣回用水 |
2022.03.31 |
/ |
/ |
/ |
/ |
未检出 |
/ |
/ |
/ |
/ |
/ |
/ |
/ |
/ |
/ |
/ |
/ |
/ |
|
70 |
|
2#高炉冲渣补水 |
2022.03.31 |
7.18 |
53 |
85 |
2.34 |
未检出 |
未检出 |
/ |
/ |
/ |
/ |
/ |
/ |
/ |
/ |
/ |
/ |
/ |
|
71 |
|
2#高炉冲渣回水 |
2022.03.31 |
/ |
/ |
/ |
/ |
未检出 |
/ |
/ |
/ |
/ |
/ |
/ |
/ |
/ |
/ |
/ |
/ |
/ |
|
72 |
|
1#高炉冲渣补水口 |
2022.04.08 |
7.25 |
29 |
149 |
1.46 |
未检出 |
未检出 |
/ |
/ |
/ |
/ |
/ |
/ |
/ |
/ |
/ |
/ |
/ |
|
73 |
|
1#高炉冲渣回用水 |
2022.04.08 |
/ |
/ |
/ |
/ |
未检出 |
/ |
/ |
/ |
/ |
/ |
/ |
/ |
/ |
/ |
/ |
/ |
/ |
|
74 |
|
2#高炉冲渣补水 |
2022.04.08 |
7.33 |
40 |
159 |
1.44 |
未检出 |
未检出 |
/ |
/ |
/ |
/ |
/ |
/ |
/ |
/ |
/ |
/ |
/ |
|
75 |
|
2#高炉冲渣回水 |
2022.04.08 |
/ |
/ |
/ |
/ |
未检出 |
/ |
/ |
/ |
/ |
/ |
/ |
/ |
/ |
/ |
/ |
/ |
/ |
|
76 |
DW003 |
轧钢一车间废水排放口 |
2022.04.08 |
/ |
/ |
/ |
/ |
/ |
/ |
/ |
/ |
/ |
未检出 |
未检出 |
未检出 |
未检出 |
未检出 |
未检出 |
/ |
/ |
|
77 |
DW004 |
轧钢二车间废水排放口 |
2022.04.08 |
/ |
/ |
/ |
/ |
/ |
/ |
/ |
/ |
/ |
未检出 |
未检出 |
未检出 |
未检出 |
未检出 |
未检出 |
/ |
/ |
|
78 |
|
1#高炉冲渣补水口 |
2022.04.13 |
7.53 |
56 |
116 |
3.67 |
未检出 |
未检出 |
/ |
/ |
/ |
/ |
/ |
/ |
/ |
/ |
/ |
/ |
/ |
|
79 |
|
1#高炉冲渣回用水 |
2022.04.13 |
/ |
/ |
/ |
/ |
未检出 |
/ |
/ |
/ |
/ |
/ |
/ |
/ |
/ |
/ |
/ |
/ |
/ |
|
80 |
|
2#高炉冲渣补水 |
2022.04.13 |
7.59 |
52 |
105 |
3.91 |
未检出 |
未检出 |
/ |
/ |
/ |
/ |
/ |
/ |
/ |
/ |
/ |
/ |
/ |
|
81 |
|
2#高炉冲渣回水 |
2022.04.13 |
/ |
/ |
/ |
/ |
未检出 |
/ |
/ |
/ |
/ |
/ |
/ |
/ |
/ |
/ |
/ |
/ |
/ |
|
82 |
|
1#高炉冲渣补水口 |
2022.04.22 |
7.45 |
68 |
120 |
4.08 |
未检出 |
未检出 |
/ |
/ |
/ |
/ |
/ |
/ |
/ |
/ |
/ |
/ |
/ |
|
83 |
|
1#高炉冲渣回用水 |
2022.04.22 |
/ |
/ |
/ |
/ |
未检出 |
/ |
/ |
/ |
/ |
/ |
/ |
/ |
/ |
/ |
/ |
/ |
/ |
|
84 |
|
2#高炉冲渣补水 |
2022.04.22 |
7.51 |
73 |
114 |
3.87 |
未检出 |
未检出 |
/ |
/ |
/ |
/ |
/ |
/ |
/ |
/ |
/ |
/ |
/ |
|
85 |
|
2#高炉冲渣回水 |
2022.04.22 |
/ |
/ |
/ |
/ |
未检出 |
/ |
/ |
/ |
/ |
/ |
/ |
/ |
/ |
/ |
/ |
/ |
/ |
|
86 |
DW001 |
烧结球团脱硫车间废水排放口 |
2022.04.22 |
7.3 |
85 |
103 |
/ |
/ |
/ |
39 |
3.42 |
未检出 |
未检出 |
/ |
/ |
/ |
/ |
/ |
/ |
/ |
|
87 |
|
1#高炉冲渣补水口 |
2022.04.28 |
7.12 |
41 |
118 |
3.44 |
未检出 |
未检出 |
/ |
/ |
/ |
/ |
/ |
/ |
/ |
/ |
/ |
/ |
/ |
|
88 |
|
1#高炉冲渣回用水 |
2022.04.28 |
/ |
/ |
/ |
/ |
未检出 |
/ |
/ |
/ |
/ |
/ |
/ |
/ |
/ |
/ |
/ |
/ |
/ |
|
89 |
|
2#高炉冲渣补水 |
2022.04.28 |
7.16 |
35 |
126 |
3.57 |
未检出 |
未检出 |
/ |
/ |
/ |
/ |
/ |
/ |
/ |
/ |
/ |
/ |
/ |
|
90 |
|
2#高炉冲渣回水 |
2022.04.28 |
/ |
/ |
/ |
/ |
未检出 |
/ |
/ |
/ |
/ |
/ |
/ |
/ |
/ |
/ |
/ |
/ |
/ |
|
91 |
|
1#高炉冲渣补水口 |
2022.05.07 |
6.98 |
56 |
117 |
3.07 |
未检出 |
未检出 |
/ |
/ |
/ |
/ |
/ |
/ |
/ |
/ |
/ |
/ |
/ |
|
92 |
|
1#高炉冲渣回用水 |
2022.05.07 |
/ |
/ |
/ |
/ |
未检出 |
/ |
/ |
/ |
/ |
/ |
/ |
/ |
/ |
/ |
/ |
/ |
/ |
|
93 |
|
2#高炉冲渣补水 |
2022.05.07 |
7.15 |
49 |
104 |
3.13 |
未检出 |
未检出 |
/ |
/ |
/ |
/ |
/ |
/ |
/ |
/ |
/ |
/ |
/ |
|
94 |
|
2#高炉冲渣回水 |
2022.05.07 |
/ |
/ |
/ |
/ |
未检出 |
/ |
/ |
/ |
/ |
/ |
/ |
/ |
/ |
/ |
/ |
/ |
/ |
|
95 |
|
1#高炉冲渣补水口 |
2022.05.11 |
7.25 |
50 |
95 |
3.95 |
未检出 |
未检出 |
/ |
/ |
/ |
/ |
/ |
/ |
/ |
/ |
/ |
/ |
/ |
|
96 |
|
1#高炉冲渣回用水 |
2022.05.11 |
/ |
/ |
/ |
/ |
未检出 |
/ |
/ |
/ |
/ |
/ |
/ |
/ |
/ |
/ |
/ |
/ |
/ |
|
97 |
|
2#高炉冲渣补水 |
2022.05.11 |
7.33 |
52 |
86 |
3.36 |
未检出 |
未检出 |
/ |
/ |
/ |
/ |
/ |
/ |
/ |
/ |
/ |
/ |
/ |
|
98 |
|
2#高炉冲渣回水 |
2022.05.11 |
/ |
/ |
/ |
/ |
未检出 |
/ |
/ |
/ |
/ |
/ |
/ |
/ |
/ |
/ |
/ |
/ |
/ |
|
99 |
DW003 |
轧钢一车间废水排放口 |
2022.05.11 |
/ |
/ |
/ |
/ |
/ |
/ |
/ |
/ |
/ |
未检出 |
0.075 |
未检出 |
未检出 |
未检出 |
未检出 |
/ |
/ |
|
100 |
DW004 |
轧钢二车间废水排放口 |
2022.05.11 |
/ |
/ |
/ |
/ |
/ |
/ |
/ |
/ |
/ |
未检出 |
0.08 |
未检出 |
未检出 |
未检出 |
未检出 |
/ |
/ |
|
101 |
DW001 |
烧结球团脱硫车间废水排放口 |
2022.05.18 |
7.51 |
52 |
77 |
/ |
/ |
/ |
37 |
2.18 |
未检出 |
未检出 |
/ |
/ |
/ |
/ |
/ |
/ |
/ |
|
102 |
|
1#高炉冲渣补水口 |
2022.05.18 |
7.65 |
53 |
91 |
4.05 |
未检出 |
未检出 |
/ |
/ |
/ |
/ |
/ |
/ |
/ |
/ |
/ |
/ |
/ |
|
103 |
|
1#高炉冲渣回用水 |
2022.05.18 |
/ |
/ |
/ |
/ |
未检出 |
/ |
/ |
/ |
/ |
/ |
/ |
/ |
/ |
/ |
/ |
/ |
/ |
|
104 |
|
2#高炉冲渣补水 |
2022.05.18 |
7.83 |
54 |
89 |
4.36 |
未检出 |
未检出 |
/ |
/ |
/ |
/ |
/ |
/ |
/ |
/ |
/ |
/ |
/ |
|
105 |
|
2#高炉冲渣回水 |
2022.05.18 |
/ |
/ |
/ |
/ |
未检出 |
/ |
/ |
/ |
/ |
/ |
/ |
/ |
/ |
/ |
/ |
/ |
/ |
|
106 |
|
1#高炉冲渣补水口 |
2022.05.29 |
7.3 |
40 |
84 |
0.868 |
0.0082 |
0.004 |
/ |
/ |
/ |
/ |
/ |
/ |
/ |
/ |
/ |
/ |
/ |
|
107 |
|
1#高炉冲渣回用水 |
2022.05.29 |
/ |
/ |
/ |
/ |
0.0052 |
/ |
/ |
/ |
/ |
/ |
/ |
/ |
/ |
/ |
/ |
/ |
/ |
|
108 |
|
2#高炉冲渣补水 |
2022.05.29 |
7.5 |
45 |
53 |
0.786 |
0.0055 |
0.004 |
/ |
/ |
/ |
/ |
/ |
/ |
/ |
/ |
/ |
/ |
/ |
|
109 |
|
2#高炉冲渣回水 |
2022.05.29 |
/ |
/ |
/ |
/ |
0.0031 |
/ |
/ |
/ |
/ |
/ |
/ |
/ |
/ |
/ |
/ |
/ |
/ |
|
110 |
|
1#高炉冲渣补水口 |
2022.06.02 |
7.2 |
52 |
62 |
0.862 |
0.0034 |
0.004 |
/ |
/ |
/ |
/ |
/ |
/ |
/ |
/ |
/ |
/ |
/ |
|
111 |
|
1#高炉冲渣回用水 |
2022.06.02 |
/ |
/ |
/ |
/ |
0.0043 |
/ |
/ |
/ |
/ |
/ |
/ |
/ |
/ |
/ |
/ |
/ |
/ |
|
112 |
|
2#高炉冲渣补水 |
2022.06.02 |
7.3 |
58 |
60 |
0.872 |
0.0028 |
0.004 |
/ |
/ |
/ |
/ |
/ |
/ |
/ |
/ |
/ |
/ |
/ |
|
113 |
|
2#高炉冲渣回水 |
2022.06.02 |
/ |
/ |
/ |
/ |
0.0038 |
/ |
/ |
/ |
/ |
/ |
/ |
/ |
/ |
/ |
/ |
/ |
/ |
|
114 |
|
1#高炉冲渣补水口 |
2022.06.11 |
7.83 |
42 |
63 |
2.47 |
0.0043 |
0.004 |
/ |
/ |
/ |
/ |
/ |
/ |
/ |
/ |
/ |
/ |
/ |
|
115 |
|
1#高炉冲渣回用水 |
2022.06.11 |
/ |
/ |
/ |
/ |
0.0039 |
/ |
/ |
/ |
/ |
/ |
/ |
/ |
/ |
/ |
/ |
/ |
/ |
|
116 |
|
2#高炉冲渣补水 |
2022.06.11 |
7.75 |
27 |
30 |
0.739 |
0.0022 |
0.004 |
/ |
/ |
/ |
/ |
/ |
/ |
/ |
/ |
/ |
/ |
/ |
|
117 |
|
2#高炉冲渣回水 |
2022.06.11 |
/ |
/ |
/ |
/ |
0.0026 |
/ |
/ |
/ |
/ |
/ |
/ |
/ |
/ |
/ |
/ |
/ |
/ |
|
118 |
|
1#高炉冲渣补水口 |
2022.06.15 |
7.2 |
26 |
46 |
5.79 |
0.0044 |
0.004 |
/ |
/ |
/ |
/ |
/ |
/ |
/ |
/ |
/ |
/ |
/ |
|
119 |
|
1#高炉冲渣回用水 |
2022.06.15 |
/ |
/ |
/ |
/ |
0.0035 |
/ |
/ |
/ |
/ |
/ |
/ |
/ |
/ |
/ |
/ |
/ |
/ |
|
120 |
|
2#高炉冲渣补水 |
2022.06.15 |
7.3 |
30 |
42 |
1.94 |
0.0029 |
0.004 |
/ |
/ |
/ |
/ |
/ |
/ |
/ |
/ |
/ |
/ |
/ |
|
121 |
|
2#高炉冲渣回水 |
2022.06.15 |
/ |
/ |
/ |
/ |
0.0026 |
/ |
/ |
/ |
/ |
/ |
/ |
/ |
/ |
/ |
/ |
/ |
/ |
|
122 |
DW003 |
轧钢一车间废水排放口 |
2022.06.15 |
/ |
/ |
/ |
/ |
/ |
/ |
/ |
/ |
/ |
0.0003 |
0.004 |
0.05 |
0.004 |
0.05 |
0.00004 |
/ |
/ |
|
123 |
DW004 |
轧钢二车间废水排放口 |
2022.06.15 |
/ |
/ |
/ |
/ |
/ |
/ |
/ |
/ |
/ |
0.0003 |
0.004 |
0.05 |
0.004 |
0.05 |
0.00004 |
/ |
/ |
|
124 |
DW001 |
烧结球团脱硫车间废水排放口 |
2022.06.15 |
7.6 |
64 |
88 |
/ |
/ |
/ |
36 |
0.63 |
0.2 |
0.0003 |
/ |
/ |
/ |
/ |
/ |
/ |
/ |
|
125 |
YS001 |
雨水排放口1 |
2022.06.16 |
/ |
20 |
28 |
0.962 |
/ |
/ |
/ |
0.12 |
/ |
/ |
/ |
/ |
/ |
/ |
/ |
/ |
/ |
|
126 |
YS002 |
雨水排放口2 |
2022.06.16 |
/ |
12 |
37 |
0.564 |
/ |
/ |
/ |
0.16 |
/ |
/ |
/ |
/ |
/ |
/ |
/ |
/ |
/ |
|
127 |
YS003 |
雨水排放口3 |
2022.06.16 |
/ |
14 |
33 |
0.779 |
/ |
/ |
/ |
0.20 |
/ |
/ |
/ |
/ |
/ |
/ |
/ |
/ |
/ |
|
128 |
YS004 |
雨水排放口4 |
2022.06.16 |
/ |
16 |
29 |
0.524 |
/ |
/ |
/ |
0.10 |
/ |
/ |
/ |
/ |
/ |
/ |
/ |
/ |
/ |
|
129 |
|
1#高炉冲渣补水口 |
2022.06.30 |
7.4 |
41 |
42 |
1.23 |
0.0038 |
0.004 |
/ |
/ |
/ |
/ |
/ |
/ |
/ |
/ |
/ |
/ |
/ |
|
130 |
|
1#高炉冲渣回用水 |
2022.06.30 |
/ |
/ |
/ |
/ |
0.0046 |
/ |
/ |
/ |
/ |
/ |
/ |
/ |
/ |
/ |
/ |
/ |
/ |
|
131 |
|
2#高炉冲渣补水 |
2022.06.30 |
7.5 |
28 |
45 |
0.765 |
0.0034 |
0.004 |
/ |
/ |
/ |
/ |
/ |
/ |
/ |
/ |
/ |
/ |
/ |
|
132 |
|
2#高炉冲渣回水 |
2022.06.30 |
/ |
/ |
/ |
/ |
0.0040 |
/ |
/ |
/ |
/ |
/ |
/ |
/ |
/ |
/ |
/ |
/ |
/ |
|
133 |
|
1#高炉冲渣补水口 |
2022.07.06 |
7.2 |
34 |
44 |
4.35 |
0.01 |
0.004 |
/ |
/ |
/ |
/ |
/ |
/ |
/ |
/ |
/ |
/ |
/ |
|
134 |
|
1#高炉冲渣回用水 |
2022.07.06 |
/ |
/ |
/ |
/ |
0.01 |
/ |
/ |
/ |
/ |
/ |
/ |
/ |
/ |
/ |
/ |
/ |
/ |
|
135 |
|
2#高炉冲渣补水 |
2022.07.06 |
7.4 |
28 |
47 |
1.42 |
0.01 |
0.004 |
/ |
/ |
/ |
/ |
/ |
/ |
/ |
/ |
/ |
/ |
/ |
|
136 |
|
2#高炉冲渣回水 |
2022.07.06 |
/ |
/ |
/ |
/ |
0.0100 |
/ |
/ |
/ |
/ |
/ |
/ |
/ |
/ |
/ |
/ |
/ |
/ |
|
137 |
YS001 |
雨水排放口1 |
2022.07.07 |
/ |
13 |
7 |
0.07 |
/ |
/ |
/ |
0.06 |
/ |
/ |
/ |
/ |
/ |
/ |
/ |
/ |
/ |
|
138 |
YS002 |
雨水排放口2 |
2022.07.07 |
/ |
15 |
9 |
0.065 |
/ |
/ |
/ |
0.08 |
/ |
/ |
/ |
/ |
/ |
/ |
/ |
/ |
/ |
|
139 |
YS003 |
雨水排放口3 |
2022.07.07 |
/ |
17 |
6 |
0.05 |
/ |
/ |
/ |
0.07 |
/ |
/ |
/ |
/ |
/ |
/ |
/ |
/ |
/ |
|
140 |
YS004 |
雨水排放口4 |
2022.07.07 |
/ |
18 |
14 |
0.072 |
/ |
/ |
/ |
0.08 |
/ |
/ |
/ |
/ |
/ |
/ |
/ |
/ |
/ |
|
141 |
|
1#高炉冲渣补水口 |
2022.07.13 |
7.2 |
34 |
44 |
4.35 |
0.01 |
0.004 |
/ |
/ |
/ |
/ |
/ |
/ |
/ |
/ |
/ |
/ |
/ |
|
142 |
|
1#高炉冲渣回用水 |
2022.07.13 |
/ |
/ |
/ |
/ |
0.01 |
/ |
/ |
/ |
/ |
/ |
/ |
/ |
/ |
/ |
/ |
/ |
/ |
|
143 |
|
2#高炉冲渣补水 |
2022.07.13 |
7.4 |
28 |
47 |
1.42 |
0.01 |
0.004 |
/ |
/ |
/ |
/ |
/ |
/ |
/ |
/ |
/ |
/ |
/ |
|
144 |
|
2#高炉冲渣回水 |
2022.07.13 |
/ |
/ |
/ |
/ |
0.0040 |
/ |
/ |
/ |
/ |
/ |
/ |
/ |
/ |
/ |
/ |
/ |
/ |
|
145 |
|
1#高炉冲渣补水口 |
2022.07.16 |
7.1 |
20 |
48 |
0.223 |
0.01 |
0.004 |
/ |
/ |
/ |
/ |
/ |
/ |
/ |
/ |
/ |
/ |
/ |
|
146 |
|
1#高炉冲渣回用水 |
2022.07.16 |
/ |
/ |
/ |
/ |
0.01 |
/ |
/ |
/ |
/ |
/ |
/ |
/ |
/ |
/ |
/ |
/ |
/ |
|
147 |
|
2#高炉冲渣补水 |
2022.07.16 |
7.2 |
18 |
47 |
0.241 |
0.01 |
0.004 |
/ |
/ |
/ |
/ |
/ |
/ |
/ |
/ |
/ |
/ |
/ |
|
148 |
|
2#高炉冲渣回水 |
2022.07.16 |
/ |
/ |
/ |
/ |
0.01 |
/ |
/ |
/ |
/ |
/ |
/ |
/ |
/ |
/ |
/ |
/ |
/ |
|
149 |
|
1#高炉冲渣补水口 |
2022.07.22 |
7.3 |
29 |
61 |
6.8 |
0.0262 |
0.004 |
/ |
/ |
/ |
/ |
/ |
/ |
/ |
/ |
/ |
/ |
/ |
|
150 |
|
1#高炉冲渣回用水 |
2022.07.22 |
/ |
/ |
/ |
/ |
0.0185 |
/ |
/ |
/ |
/ |
/ |
/ |
/ |
/ |
/ |
/ |
/ |
/ |
|
151 |
|
2#高炉冲渣补水 |
2022.07.22 |
7.2 |
24 |
66 |
6.72 |
0.0325 |
0.004 |
/ |
/ |
/ |
/ |
/ |
/ |
/ |
/ |
/ |
/ |
/ |
|
152 |
|
2#高炉冲渣回水 |
2022.07.22 |
/ |
/ |
/ |
/ |
0.0211 |
/ |
/ |
/ |
/ |
/ |
/ |
/ |
/ |
/ |
/ |
/ |
/ |
|
153 |
DW003 |
轧钢一车间废水排放口 |
2022.07.22 |
/ |
/ |
/ |
/ |
/ |
/ |
/ |
/ |
/ |
0.0003 |
0.004 |
0.05 |
0.004 |
0.05 |
0.00004 |
/ |
/ |
|
154 |
DW004 |
轧钢二车间废水排放口 |
2022.07.22 |
/ |
/ |
/ |
/ |
/ |
/ |
/ |
/ |
/ |
0.0003 |
0.004 |
0.05 |
0.004 |
0.05 |
0.00004 |
/ |
/ |
|
155 |
YS001 |
雨水排放口1 |
2022.07.23 |
/ |
16 |
8 |
0.124 |
/ |
/ |
/ |
0.1 |
/ |
/ |
/ |
/ |
/ |
/ |
/ |
/ |
/ |
|
156 |
YS002 |
雨水排放口2 |
2022.07.23 |
/ |
20 |
13 |
0.314 |
/ |
/ |
/ |
0.09 |
/ |
/ |
/ |
/ |
/ |
/ |
/ |
/ |
/ |
|
157 |
YS003 |
雨水排放口3 |
2022.07.23 |
/ |
19 |
11 |
0.203 |
/ |
/ |
/ |
0.10 |
/ |
/ |
/ |
/ |
/ |
/ |
/ |
/ |
/ |
|
158 |
YS004 |
雨水排放口4 |
2022.07.23 |
/ |
18 |
16 |
0.167 |
/ |
/ |
/ |
0.08 |
/ |
/ |
/ |
/ |
/ |
/ |
/ |
/ |
/ |
|
159 |
YS001 |
雨水排放口1 |
2022.07.29 |
/ |
19 |
10 |
0.124 |
/ |
/ |
/ |
0.19 |
/ |
/ |
/ |
/ |
/ |
/ |
/ |
/ |
/ |
|
160 |
YS002 |
雨水排放口2 |
2022.07.29 |
/ |
17 |
13 |
0.314 |
/ |
/ |
/ |
0.2 |
/ |
/ |
/ |
/ |
/ |
/ |
/ |
/ |
/ |
|
161 |
YS003 |
雨水排放口3 |
2022.07.29 |
/ |
16 |
15 |
0.203 |
/ |
/ |
/ |
0.22 |
/ |
/ |
/ |
/ |
/ |
/ |
/ |
/ |
/ |
|
162 |
YS004 |
雨水排放口4 |
2022.07.29 |
/ |
18 |
11 |
0.176 |
/ |
/ |
/ |
0.24 |
/ |
/ |
/ |
/ |
/ |
/ |
/ |
/ |
/ |
|
163 |
YS001 |
雨水排放口1 |
2022.08.01 |
/ |
16 |
9 |
0.156 |
/ |
/ |
/ |
0.19 |
/ |
/ |
/ |
/ |
/ |
/ |
/ |
/ |
/ |
|
164 |
YS002 |
雨水排放口2 |
2022.08.01 |
/ |
18 |
13 |
0.150 |
/ |
/ |
/ |
0.18 |
/ |
/ |
/ |
/ |
/ |
/ |
/ |
/ |
/ |
|
165 |
YS003 |
雨水排放口3 |
2022.08.01 |
/ |
19 |
12 |
0.124 |
/ |
/ |
/ |
0.19 |
/ |
/ |
/ |
/ |
/ |
/ |
/ |
/ |
/ |
|
166 |
YS004 |
雨水排放口4 |
2022.08.01 |
/ |
18 |
14 |
0.117 |
/ |
/ |
/ |
0.20 |
/ |
/ |
/ |
/ |
/ |
/ |
/ |
/ |
/ |
|
167 |
DW003 |
轧钢一车间废水排放口 |
2022.08.05 |
/ |
/ |
/ |
/ |
/ |
/ |
/ |
/ |
/ |
0.0003 |
0.004 |
0.05 |
0.004 |
0.05 |
0.00004 |
/ |
/ |
|
168 |
DW004 |
轧钢二车间废水排放口 |
2022.08.05 |
/ |
/ |
/ |
/ |
/ |
/ |
/ |
/ |
/ |
0.0003 |
0.004 |
0.05 |
0.004 |
0.05 |
0.00004 |
/ |
/ |
|
169 |
DW001 |
烧结球团脱硫车间废水排放口 |
2022.08.05 |
7.7 |
25 |
60 |
/ |
/ |
/ |
/ |
0.12 |
0.01 |
0.0003 |
/ |
/ |
/ |
/ |
/ |
/ |
/ |
|
170 |
|
1#高炉冲渣补水口 |
2022.08.05 |
7.2 |
28 |
32 |
1.12 |
0.01 |
0.004 |
/ |
/ |
/ |
/ |
/ |
/ |
/ |
/ |
/ |
/ |
/ |
|
171 |
|
1#高炉冲渣回用水 |
2022.08.05 |
/ |
/ |
/ |
/ |
0.01 |
/ |
/ |
/ |
/ |
/ |
/ |
/ |
/ |
/ |
/ |
/ |
/ |
|
172 |
|
2#高炉冲渣补水 |
2022.08.05 |
7.3 |
31 |
35 |
1.1 |
0.01 |
0.004 |
/ |
/ |
/ |
/ |
/ |
/ |
/ |
/ |
/ |
/ |
/ |
|
173 |
|
2#高炉冲渣回水 |
2022.08.05 |
/ |
/ |
/ |
/ |
0.01 |
/ |
/ |
/ |
/ |
/ |
/ |
/ |
/ |
/ |
/ |
/ |
/ |
|
174 |
|
1#高炉冲渣补水口 |
2022.08.12 |
7 |
34 |
80 |
0.751 |
0.01 |
0.004 |
/ |
/ |
/ |
/ |
/ |
/ |
/ |
/ |
/ |
/ |
/ |
|
175 |
|
1#高炉冲渣回用水 |
2022.08.12 |
/ |
/ |
/ |
/ |
0.01 |
/ |
/ |
/ |
/ |
/ |
/ |
/ |
/ |
/ |
/ |
/ |
/ |
|
176 |
|
2#高炉冲渣补水 |
2022.08.12 |
7.2 |
38 |
77 |
0.719 |
0.01 |
0.004 |
/ |
/ |
/ |
/ |
/ |
/ |
/ |
/ |
/ |
/ |
/ |
|
177 |
|
2#高炉冲渣回水 |
2022.08.12 |
/ |
/ |
/ |
/ |
0.01 |
/ |
/ |
/ |
/ |
/ |
/ |
/ |
/ |
/ |
/ |
/ |
/ |
|
178 |
|
1#高炉冲渣补水口 |
2022.08.17 |
7.2 |
31 |
31 |
1.04 |
0.01 |
0.004 |
/ |
/ |
/ |
/ |
/ |
/ |
/ |
/ |
/ |
/ |
/ |
|
179 |
|
1#高炉冲渣回用水 |
2022.08.17 |
/ |
/ |
/ |
/ |
0.01 |
/ |
/ |
/ |
/ |
/ |
/ |
/ |
/ |
/ |
/ |
/ |
/ |
|
180 |
|
2#高炉冲渣补水 |
2022.08.17 |
7.1 |
29 |
34 |
1.07 |
0.01 |
0.004 |
/ |
/ |
/ |
/ |
/ |
/ |
/ |
/ |
/ |
/ |
/ |
|
181 |
|
2#高炉冲渣回水 |
2022.08.17 |
/ |
/ |
/ |
/ |
0.01 |
/ |
/ |
/ |
/ |
/ |
/ |
/ |
/ |
/ |
/ |
/ |
/ |
|
182 |
|
1#高炉冲渣补水口 |
2022.08.27 |
7.4 |
37 |
24 |
0.86 |
0.01 |
0.004 |
/ |
/ |
/ |
/ |
/ |
/ |
/ |
/ |
/ |
/ |
/ |
|
183 |
|
1#高炉冲渣回用水 |
2022.08.27 |
/ |
/ |
/ |
/ |
0.01 |
/ |
/ |
/ |
/ |
/ |
/ |
/ |
/ |
/ |
/ |
/ |
/ |
|
184 |
|
2#高炉冲渣补水 |
2022.08.27 |
7.6 |
36 |
22 |
0.891 |
0.01 |
0.004 |
/ |
/ |
/ |
/ |
/ |
/ |
/ |
/ |
/ |
/ |
/ |
|
185 |
|
2#高炉冲渣回水 |
2022.08.27 |
/ |
/ |
/ |
/ |
0.01 |
/ |
/ |
/ |
/ |
/ |
/ |
/ |
/ |
/ |
/ |
/ |
/ |
|
186 |
YS001 |
雨水排放口1 |
2022.8.27 |
/ |
17 |
21 |
0.263 |
/ |
/ |
/ |
0.11 |
/ |
/ |
/ |
/ |
/ |
/ |
/ |
/ |
/ |
|
187 |
YS002 |
雨水排放口2 |
2022.8.27 |
/ |
15 |
20 |
0.334 |
/ |
/ |
/ |
0.09 |
/ |
/ |
/ |
/ |
/ |
/ |
/ |
/ |
/ |
|
188 |
YS003 |
雨水排放口3 |
2022.8.27 |
/ |
19 |
22 |
0.302 |
/ |
/ |
/ |
0.09 |
/ |
/ |
/ |
/ |
/ |
/ |
/ |
/ |
/ |
|
189 |
YS004 |
雨水排放口4 |
2022.8.27 |
/ |
18 |
22 |
0.319 |
/ |
/ |
/ |
0.08 |
/ |
/ |
/ |
/ |
/ |
/ |
/ |
/ |
/ |
噪声监测结果表
|
序号 |
监测项目 |
监测点位 |
监测日期 |
检测结果(dB(A)) |
|
1 |
周围敏感点(昼间) |
1#东小官村 |
2021.12.07 |
54.3 |
|
2 |
2#官庄村 |
2021.12.07 |
55.7 |
|
|
3 |
3#朝阳社区 |
2021.12.07 |
54.7 |
|
|
4 |
周围敏感点(夜间) |
1#东小官村 |
2021.12.07 |
45.9 |
|
5 |
2#官庄村 |
2021.12.07 |
46.5 |
|
|
6 |
3#朝阳社区 |
2021.12.07 |
45.3 |
|
|
7 |
厂界环境噪声(昼间) |
东厂界 |
2021.12.07 |
58.5 |
|
8 |
西厂界 |
2021.12.07 |
57.9 |
|
|
9 |
南厂界 |
2021.12.07 |
58.2 |
|
|
10 |
北厂界 |
2021.12.07 |
57.5 |
|
|
11 |
厂界环境噪声(夜间) |
东厂界 |
2021.12.07 |
49.4 |
|
12 |
西厂界 |
2021.12.07 |
48.1 |
|
|
13 |
南厂界 |
2021.12.07 |
48.4 |
|
|
14 |
北厂界 |
2021.12.07 |
48.8 |
|
|
15 |
厂界环境噪声(昼间) |
东厂界 |
2022.02.18 |
56.2 |
|
16 |
西厂界 |
2022.02.18 |
55.7 |
|
|
17 |
南厂界 |
2022.02.18 |
54.4 |
|
|
18 |
北厂界 |
2022.02.18 |
55.3 |
|
|
19 |
厂界环境噪声(夜间) |
东厂界 |
2022.02.18 |
46.5 |
|
20 |
西厂界 |
2022.02.18 |
45.9 |
|
|
21 |
南厂界 |
2022.02.18 |
44.5 |
|
|
22 |
北厂界 |
2022.02.18 |
45.5 |
|
|
23 |
周围敏感点(昼间) |
1#东小官村 |
2022.02.18 |
55.6 |
|
24 |
2#官庄村 |
2022.02.18 |
54.9 |
|
|
25 |
3#朝阳社区 |
2022.02.18 |
55.1 |
|
|
26 |
周围敏感点(夜间) |
1#东小官村 |
2022.02.18 |
45.3 |
|
27 |
2#官庄村 |
2022.02.18 |
45.6 |
|
|
28 |
3#朝阳社区 |
2022.02.18 |
45.2 |
|
|
29 |
厂界环境噪声(昼间) |
东厂界 |
2022.05.05 |
54.4 |
|
30 |
西厂界 |
2022.05.05 |
54.0 |
|
|
31 |
南厂界 |
2022.05.05 |
54.5 |
|
|
32 |
北厂界 |
2022.05.05 |
53.8 |
|
|
33 |
厂界环境噪声(夜间) |
东厂界 |
2022.05.05 |
46.6 |
|
34 |
西厂界 |
2022.05.05 |
45.9 |
|
|
35 |
南厂界 |
2022.05.05 |
46.4 |
|
|
36 |
北厂界 |
2022.05.05 |
45.6 |
|
|
37 |
周围敏感点(昼间) |
1#东小官村 |
2022.05.05 |
52.0 |
|
38 |
2#官庄村 |
2022.05.05 |
51.8 |
|
|
39 |
3#朝阳社区 |
2022.05.05 |
52.9 |
|
|
40 |
周围敏感点(夜间) |
1#东小官村 |
2022.05.05 |
43.3 |
|
41 |
2#官庄村 |
2022.05.05 |
44.4 |
|
|
42 |
3#朝阳社区 |
2022.05.05 |
44.2 |
|
|
29 |
厂界环境噪声(昼间) |
东厂界 |
2022.05.05 |
54.4 |
|
30 |
西厂界 |
2022.05.05 |
54.0 |
|
|
31 |
南厂界 |
2022.05.05 |
54.5 |
|
|
32 |
北厂界 |
2022.05.05 |
53.8 |
|
|
29 |
厂界环境噪声(昼间) |
东厂界 |
2022.07.07 |
55.6 |
|
30 |
西厂界 |
2022.07.07 |
55.2 |
|
|
31 |
南厂界 |
2022.07.07 |
54.3 |
|
|
32 |
北厂界 |
2022.07.07 |
54.7 |
|
|
33 |
厂界环境噪声(夜间) |
东厂界 |
2022.07.07 |
46.7 |
|
34 |
西厂界 |
2022.07.07 |
46.5 |
|
|
35 |
南厂界 |
2022.07.07 |
45.5 |
|
|
36 |
北厂界 |
2022.07.07 |
46.0 |
|
|
37 |
周围敏感点(昼间) |
1#东小官村 |
2022.07.07 |
54.1 |
|
38 |
2#官庄村 |
2022.07.07 |
54.4 |
|
|
39 |
3#朝阳社区 |
2022.07.07 |
55.0 |
|
|
37 |
周围敏感点(夜间) |
1#东小官村 |
2022.07.07 |
45.0 |
|
38 |
2#官庄村 |
2022.07.07 |
45.2 |
|
|
39 |
3#朝阳社区 |
2022.07.07 |
45.6 |
地下水监测结果表
|
序号 |
排放口名称 |
监测日期 |
PH(无量纲) |
总硬度(mg/L) |
耗氧量(mg/L) |
硫酸盐(mg/L) |
氯化物(mg/L) |
氰化物(mg/L) |
溶解性总固体(mg/L) |
氨氮(mg/L) |
硝酸盐氮(mg/L) |
亚硝酸盐氮(mg/L) |
氟化物(mg/L) |
总大肠菌群(MPN/100mL) |
挥发酚(mg/L) |
铁(mg/L) |
锰(mg/L) |
铜(mg/L) |
锌(mg/L) |
镉 |
汞(mg/L) |
砷 |
六价铬(mg/L) |
铅 |
镍 |
石油类(mg/L) |
|
1 |
1#地下水环境监测井 |
2021.12.24 |
7.2 |
164 |
1.76 |
51 |
54 |
0.004L |
709 |
0.212 |
2.7 |
0.06 |
0.74 |
2L |
0.0009 |
0.03L |
0.01L |
0.05L |
0.05L |
1.2 |
4*10-5L |
3*10-4L |
0.004L |
7.2 |
3.02 |
0.01L |
|
2 |
2#地下水环境监测井 |
2021.12.24 |
7.1 |
674 |
2.38 |
85.5 |
147 |
0.004L |
1318 |
0.879 |
9.6 |
0.086 |
0.9 |
2L |
0.0007 |
0.03L |
0.01L |
0.05L |
0.05L |
1.36 |
4*10-5L |
3*10-4L |
0.004L |
40.4 |
2.12 |
0.01L |
|
3 |
3#地下水环境监测井 |
2021.12.24 |
7.1 |
260 |
1.27 |
81.3 |
38 |
0.004L |
660 |
0.222 |
0.9 |
0.077 |
0.71 |
2L |
0.0006 |
0.03L |
0.01L |
0.05L |
0.05L |
0.39 |
4*10-5L |
3*10-4L |
0.004L |
26.4 |
2.02 |
0.01L |
|
4 |
4#地下水环境监测井 |
2021.12.24 |
7.3 |
622 |
2.3 |
89.5 |
147 |
0.004L |
1151 |
0.58 |
9.9 |
0.103 |
0.87 |
2L |
0.0006 |
0.03L |
0.01L |
0.05L |
0.05L |
0.44 |
4*10-5L |
3*10-4L |
0.004L |
37.9 |
1.01 |
0.01L |
|
5 |
1#地下水环境监测井 |
2022.1.18 |
7.3 |
360 |
0.8 |
59.6 |
91 |
0.004L |
582 |
0.386 |
3 |
0.142 |
0.56 |
2L |
0.0005 |
0.03L |
0.01L |
0.05L |
0.05L |
0.41 |
4*10-5L |
3*10-4L |
0.004L |
6.4 |
1.72 |
0.01L |
|
6 |
2#地下水环境监测井 |
2022.1.18 |
7.3 |
422 |
1.15 |
195 |
144 |
0.004L |
976 |
0.427 |
6.4 |
0.214 |
0.16 |
2L |
0.0006 |
0.03L |
0.01L |
0.05L |
0.05L |
0.31 |
4*10-5L |
3*10-4L |
0.004L |
32.5 |
0.68 |
0.01L |
|
7 |
3#地下水环境监测井 |
2022.1.18 |
7.4 |
235 |
1.03 |
46.3 |
38 |
0.004L |
556 |
0.275 |
0.7 |
0.17 |
0.2 |
2L |
0.0006 |
0.03L |
0.01L |
0.05L |
0.05L |
0.21 |
4*10-5L |
3*10-4L |
0.004L |
26.6 |
0.77 |
0.01L |
|
8 |
4#地下水环境监测井 |
2022.1.18 |
7.2 |
412 |
0.88 |
113 |
130 |
0.004L |
947 |
0.315 |
14.2 |
0.206 |
0.44 |
2L |
0.0007 |
0.03L |
0.01L |
0.05L |
0.05L |
0.14 |
4*10-5L |
3*10-4L |
0.004L |
34.9 |
0.65 |
0.01L |
|
9 |
1#地下水环境监测井 |
2022.2.19 |
7.1 |
259 |
0.76 |
193.6 |
110 |
0.004L |
668 |
0.151 |
14.6 |
0.192 |
0.18 |
2L |
0.0008 |
0.03L |
0.01L |
0.05L |
0.05L |
0.17 |
4*10-5L |
3*10-4L |
0.004L |
2.6 |
13.1 |
0.01L |
|
10 |
2#地下水环境监测井 |
2022.2.19 |
7.2 |
330 |
0.6 |
65.1 |
78 |
0.004L |
821 |
0.062 |
4.4 |
0.148 |
0.2 |
2L |
0.0006 |
0.03L |
0.01L |
0.05L |
0.05L |
0.13 |
4*10-5L |
3*10-4L |
0.004L |
0.44 |
5.79 |
0.01L |
|
11 |
3#地下水环境监测井 |
2022.2.19 |
7.1 |
200 |
0.68 |
44.6 |
28 |
0.004L |
649 |
0.174 |
1.1 |
0.031 |
0.22 |
2L |
0.0007 |
0.03L |
0.01L |
0.05L |
0.05L |
0.06 |
4*10-5L |
3*10-4L |
0.004L |
7.34 |
0.55 |
0.01L |
|
12 |
4#地下水环境监测井 |
2022.2.19 |
7.2 |
403 |
0.88 |
115.693 |
93 |
0.004L |
840 |
0.12 |
26.4 |
0.16 |
0.45 |
2L |
0.0008 |
0.03L |
0.01L |
0.05L |
0.05L |
0.06 |
4*10-5L |
3*10-4L |
0.004L |
6.14 |
0.61 |
0.01L |
|
13 |
1#地下水环境监测井 |
2022.4.08 |
7.28 |
93.7 |
/ |
102 |
44 |
未检出 |
265 |
0.24 |
1.02 |
0.008 |
0.78 |
<2 |
未检出 |
未检出 |
未检出 |
未检出 |
未检出 |
未检出 |
未检出 |
未检出 |
未检出 |
未检出 |
未检出 |
未检出 |
|
14 |
2#地下水环境监测井 |
2022.4.08 |
7.39 |
98.1 |
/ |
111 |
45 |
未检出 |
249 |
0.271 |
0.98 |
0.009 |
0.69 |
<2 |
未检出 |
未检出 |
未检出 |
未检出 |
未检出 |
未检出 |
未检出 |
未检出 |
未检出 |
未检出 |
未检出 |
未检出 |
|
15 |
3#地下水环境监测井 |
2022.4.08 |
7.21 |
105 |
/ |
108 |
46 |
未检出 |
254 |
0.326 |
1 |
0.008 |
0.75 |
<2 |
未检出 |
未检出 |
未检出 |
未检出 |
未检出 |
未检出 |
未检出 |
未检出 |
未检出 |
未检出 |
未检出 |
未检出 |
|
16 |
4#地下水环境监测井 |
2022.4.08 |
7.41 |
100 |
/ |
103 |
45 |
未检出 |
261 |
0.353 |
0.98 |
0.007 |
0.72 |
<2 |
未检出 |
未检出 |
未检出 |
未检出 |
未检出 |
未检出 |
未检出 |
未检出 |
未检出 |
未检出 |
未检出 |
未检出 |
|
17 |
1#地下水环境监测井 |
2022.5.11 |
7.12 |
91.7 |
/ |
112 |
44 |
未检出 |
258 |
0.36 |
2.7 |
0.009 |
0.56 |
未检出 |
未检出 |
未检出 |
未检出 |
未检出 |
未检出 |
未检出 |
未检出 |
未检出 |
未检出 |
未检出 |
未检出 |
未检出 |
|
18 |
2#地下水环境监测井 |
2022.5.11 |
7.16 |
96.9 |
/ |
122 |
43 |
未检出 |
255 |
0.31 |
2.53 |
0.009 |
0.63 |
未检出 |
未检出 |
未检出 |
未检出 |
未检出 |
未检出 |
未检出 |
未检出 |
未检出 |
未检出 |
未检出 |
未检出 |
未检出 |
|
19 |
3#地下水环境监测井 |
2022.5.11 |
7.21 |
107 |
/ |
114 |
41 |
未检出 |
253 |
0.32 |
2.51 |
0.009 |
0.68 |
未检出 |
未检出 |
未检出 |
未检出 |
未检出 |
未检出 |
未检出 |
未检出 |
未检出 |
未检出 |
未检出 |
未检出 |
未检出 |
|
20 |
4#地下水环境监测井 |
2022.5.11 |
7.07 |
102 |
/ |
109 |
0.64 |
未检出 |
254 |
0.34 |
2.52 |
0.008 |
0.64 |
未检出 |
未检出 |
未检出 |
未检出 |
未检出 |
未检出 |
未检出 |
未检出 |
未检出 |
未检出 |
未检出 |
未检出 |
未检出 |
|
21 |
1#地下水环境监测井 |
2022.6.15 |
7.23 |
212 |
1.32 |
40.1 |
40.5 |
未检出 |
573 |
0.23 |
5.37 |
未检出 |
0.455 |
未检出 |
0.0006 |
未检出 |
未检出 |
未检出 |
未检出 |
未检出 |
未检出 |
未检出 |
未检出 |
未检出 |
未检出 |
未检出 |
|
22 |
2#地下水环境监测井 |
2022.6.15 |
7.15 |
302 |
1.24 |
40.5 |
41.5 |
未检出 |
687 |
0.378 |
687 |
未检出 |
0.445 |
未检出 |
0.001 |
未检出 |
未检出 |
未检出 |
未检出 |
未检出 |
未检出 |
未检出 |
未检出 |
未检出 |
未检出 |
未检出 |
|
23 |
3#地下水环境监测井 |
2022.6.15 |
7.2 |
231 |
1.4 |
53.8 |
55.6 |
未检出 |
551 |
0.076 |
551 |
未检出 |
0.632 |
未检出 |
0.0007 |
未检出 |
未检出 |
未检出 |
未检出 |
未检出 |
未检出 |
未检出 |
未检出 |
未检出 |
未检出 |
未检出 |
|
24 |
4#地下水环境监测井 |
2022.6.15 |
7.31 |
318 |
1.15 |
33.9 |
35.1 |
未检出 |
714 |
0.054 |
714 |
未检出 |
0.375 |
未检出 |
0.0008 |
未检出 |
未检出 |
未检出 |
未检出 |
未检出 |
未检出 |
未检出 |
未检出 |
未检出 |
未检出 |
未检出 |
|
25 |
1#地下水环境监测井 |
2022.7.22 |
7.1 |
217 |
1.32 |
69.2 |
48 |
未检出 |
432 |
0.064 |
18.5 |
未检出 |
0..927 |
未检出 |
0.0012 |
未检出 |
未检出 |
未检出 |
未检出 |
未检出 |
未检出 |
未检出 |
未检出 |
未检出 |
未检出 |
未检出 |
|
26 |
2#地下水环境监测井 |
2022.7.22 |
7.3 |
192 |
1.78 |
71.2 |
49.2 |
未检出 |
441 |
0.226 |
18.4 |
未检出 |
0.966 |
未检出 |
0.0011 |
未检出 |
未检出 |
未检出 |
未检出 |
未检出 |
未检出 |
未检出 |
未检出 |
未检出 |
未检出 |
未检出 |
|
27 |
3#地下水环境监测井 |
2022.7.22 |
7 |
180 |
1.45 |
31.4 |
32 |
未检出 |
502 |
0.241 |
5.34 |
未检出 |
0.33 |
未检出 |
0.0009 |
未检出 |
未检出 |
未检出 |
未检出 |
未检出 |
未检出 |
未检出 |
未检出 |
未检出 |
未检出 |
未检出 |
|
28 |
4#地下水环境监测井 |
2022.7.22 |
7.2 |
201 |
1.62 |
28.9 |
30.2 |
未检出 |
325 |
0.081 |
5 |
未检出 |
0.267 |
未检出 |
0.0011 |
未检出 |
未检出 |
未检出 |
未检出 |
未检出 |
未检出 |
未检出 |
未检出 |
未检出 |
未检出 |
未检出 |
|
29 |
1#地下水环境监测井 |
2022.8.05 |
7.3 |
217 |
2.20 |
27.4 |
27.5 |
未检出 |
448 |
0.322 |
18.6 |
未检出 |
0.366 |
未检出 |
0.0006 |
未检出 |
未检出 |
未检出 |
未检出 |
未检出 |
未检出 |
未检出 |
未检出 |
未检出 |
未检出 |
未检出 |
|
30 |
2#地下水环境监测井 |
2022.8.05 |
7.1 |
192 |
1.92 |
28.7 |
28.6 |
未检出 |
423 |
0.289 |
19.1 |
未检出 |
0.417 |
未检出 |
0.0009 |
未检出 |
未检出 |
未检出 |
未检出 |
未检出 |
未检出 |
未检出 |
未检出 |
未检出 |
未检出 |
未检出 |
|
31 |
3#地下水环境监测井 |
2022.8.05 |
7.4 |
180 |
1.76 |
29.1 |
28.2 |
未检出 |
419 |
0.294 |
19.1 |
未检出 |
0.386 |
未检出 |
0.0007 |
未检出 |
未检出 |
未检出 |
未检出 |
未检出 |
未检出 |
未检出 |
未检出 |
未检出 |
未检出 |
未检出 |
|
32 |
4#地下水环境监测井 |
2022.8.05 |
6.9 |
201 |
2.48 |
28 |
27.8 |
未检出 |
434 |
0.332 |
19.3 |
未检出 |
0.4 |
未检出 |
0.0009 |
未检出 |
未检出 |
未检出 |
未检出 |
未检出 |
未检出 |
未检出 |
未检出 |
未检出 |
未检出 |
未检出 |
土壤污染物监测结果表
|
监测点位 |
原料厂区域 |
污水处理站区域 |
高炉区域 |
炼钢区域 |
球团区域 |
烧结区域 |
大官庄村 |
|
监测日期 |
2021.12.04 |
2021.12.04 |
2021.12.04 |
2021.12.04 |
2021.12.04 |
2021.12.04 |
2021.12.04 |
|
砷(mg/kg) |
5.04 |
11.4 |
10.5 |
6.23 |
6.8 |
8.94 |
9.03 |
|
铜(mg/kg) |
19 |
15 |
21 |
27 |
25 |
35 |
24 |
|
铅(mg/kg) |
24.8 |
36.5 |
34.2 |
60.4 |
49.3 |
17.6 |
24.6 |
|
镉(mg/kg) |
0.2 |
0.3 |
0.48 |
0.66 |
0.45 |
0.92 |
0.17 |
|
镍(mg/kg) |
47 |
28 |
27 |
55 |
43 |
32 |
110 |
|
六价铬(mg/kg) |
未检出 |
未检出 |
未检出 |
未检出 |
未检出 |
未检出 |
未检出 |
|
汞(mg/kg) |
0.172 |
0.2 |
0.187 |
0.206 |
0.208 |
0.193 |
0.199 |
|
硝基苯(mg/kg) |
未检出 |
未检出 |
未检出 |
未检出 |
未检出 |
未检出 |
未检出 |
|
苯胺(mg/kg) |
未检出 |
未检出 |
未检出 |
未检出 |
未检出 |
未检出 |
未检出 |
|
2-氯酚(mg/kg) |
未检出 |
未检出 |
未检出 |
未检出 |
未检出 |
未检出 |
未检出 |
|
苯并[a]蒽(mg/kg) |
未检出 |
未检出 |
未检出 |
未检出 |
未检出 |
未检出 |
未检出 |
|
苯并[a]芘(mg/kg) |
未检出 |
未检出 |
未检出 |
未检出 |
未检出 |
未检出 |
未检出 |
|
苯并[b]荧蒽(mg/kg) |
未检出 |
未检出 |
未检出 |
未检出 |
未检出 |
未检出 |
未检出 |
|
苯并[k]荧蒽(mg/kg) |
未检出 |
未检出 |
未检出 |
未检出 |
未检出 |
未检出 |
未检出 |
|
䓛(mg/kg) |
未检出 |
未检出 |
未检出 |
未检出 |
未检出 |
未检出 |
未检出 |
|
二苯并[a,h]蒽(mg/kg) |
未检出 |
未检出 |
未检出 |
未检出 |
未检出 |
未检出 |
未检出 |
|
茚并[1,2,3-cd]芘(mg/kg) |
未检出 |
未检出 |
未检出 |
未检出 |
未检出 |
未检出 |
未检出 |
|
萘(mg/kg) |
未检出 |
未检出 |
未检出 |
未检出 |
未检出 |
未检出 |
未检出 |
|
四氯化碳(mg/kg) |
未检出 |
未检出 |
未检出 |
未检出 |
未检出 |
未检出 |
未检出 |
|
氯仿(mg/kg) |
未检出 |
未检出 |
未检出 |
未检出 |
未检出 |
未检出 |
未检出 |
|
氯甲烷(mg/kg) |
未检出 |
未检出 |
未检出 |
未检出 |
未检出 |
未检出 |
未检出 |
|
1,1-二氯乙烷(mg/kg) |
未检出 |
未检出 |
未检出 |
未检出 |
未检出 |
未检出 |
未检出 |
|
1,2-二氯乙烷(mg/kg) |
未检出 |
未检出 |
未检出 |
未检出 |
未检出 |
未检出 |
未检出 |
|
顺-1,2-二氯乙烯(mg/kg) |
未检出 |
未检出 |
未检出 |
未检出 |
未检出 |
未检出 |
未检出 |
|
反-1,2-二氯乙烯(mg/kg) |
未检出 |
未检出 |
未检出 |
未检出 |
未检出 |
未检出 |
未检出 |
|
二氯甲烷(mg/kg) |
未检出 |
未检出 |
未检出 |
未检出 |
未检出 |
未检出 |
未检出 |
|
1,2-二氯丙烷(mg/kg) |
未检出 |
未检出 |
未检出 |
未检出 |
未检出 |
未检出 |
未检出 |
|
1,1,1,2-四氯乙烷(mg/kg) |
未检出 |
未检出 |
未检出 |
未检出 |
未检出 |
未检出 |
未检出 |
|
1,1,2,2-四氯乙烷(mg/kg) |
未检出 |
未检出 |
未检出 |
未检出 |
未检出 |
未检出 |
未检出 |
|
四氯乙烯(mg/kg) |
未检出 |
未检出 |
未检出 |
未检出 |
未检出 |
未检出 |
未检出 |
|
1,1,1-三氯乙烷(mg/kg) |
未检出 |
未检出 |
未检出 |
未检出 |
未检出 |
未检出 |
未检出 |
|
1,1,2-三氯乙烷(mg/kg) |
未检出 |
未检出 |
未检出 |
未检出 |
未检出 |
未检出 |
未检出 |
|
三氯乙烯(mg/kg) |
未检出 |
未检出 |
未检出 |
未检出 |
未检出 |
未检出 |
未检出 |
|
1,2,3-三氯丙烷(mg/kg) |
未检出 |
未检出 |
未检出 |
未检出 |
未检出 |
未检出 |
未检出 |
|
氯乙烯(mg/kg) |
未检出 |
未检出 |
未检出 |
未检出 |
未检出 |
未检出 |
未检出 |
|
苯(mg/kg) |
未检出 |
未检出 |
未检出 |
未检出 |
未检出 |
未检出 |
未检出 |
|
氯苯(mg/kg) |
未检出 |
未检出 |
未检出 |
未检出 |
未检出 |
未检出 |
未检出 |
|
1,2-二氯苯(mg/kg) |
未检出 |
未检出 |
未检出 |
未检出 |
未检出 |
未检出 |
未检出 |
|
1,4-二氯苯(mg/kg) |
未检出 |
未检出 |
未检出 |
未检出 |
未检出 |
未检出 |
未检出 |
|
乙苯(mg/kg) |
未检出 |
未检出 |
未检出 |
未检出 |
未检出 |
未检出 |
未检出 |
|
苯乙烯(mg/kg) |
未检出 |
未检出 |
未检出 |
未检出 |
未检出 |
未检出 |
未检出 |
|
甲苯(mg/kg) |
未检出 |
未检出 |
未检出 |
未检出 |
未检出 |
未检出 |
未检出 |
|
间二甲苯+对二甲苯(mg/kg) |
未检出 |
未检出 |
未检出 |
未检出 |
未检出 |
未检出 |
未检出 |
|
邻二甲苯(mg/kg) |
未检出 |
未检出 |
未检出 |
未检出 |
未检出 |
未检出 |
未检出 |
四、部分点位未监测原因
|
序号 |
污染物类型 |
监测点位 |
检测项目 |
监测频次 |
未监测时间 |
未监测原因 |
|
1 |
废气 |
原料块矿烘干除尘器 |
颗粒物、二氧化硫、氮氧化物 |
1次/季 |
2022年第一、二季度 |
公司前两个季度未使用块矿生产 |
|
2 |
废气 |
钢渣二次处理除尘 |
颗粒物 |
1次/年 |
2021年 |
未投运 |
|
3 |
废气 |
3#加热炉空烟 |
颗粒物、二氧化硫、氮氧化物 |
1次/季 |
2021年第三季度 |
未投运 |
|
4 |
废气 |
3#加热炉空烟 |
颗粒物、二氧化硫、氮氧化物 |
1次/季 |
2021年第三季度 |
未投运 |
|
5 |
废气 |
4#加热炉空烟 |
颗粒物、二氧化硫、氮氧化物 |
1次/季 |
2021年第三、四季度 |
未投运 |
|
6 |
废气 |
4#加热炉煤烟 |
颗粒物、二氧化硫、氮氧化物 |
1次/季 |
2021年第三、四季度 |
未投运 |
|
7 |
废气 |
煤气发电锅炉脱硫 |
林格曼黑度 |
1次/季 |
2021年第三季度 |
未投运 |
|
8 |
废气 |
除尘灰处理窑头及上料除尘 |
颗粒物 |
1次/季 |
2021年第三、四季度 |
未投运 |
|
9 |
废气 |
除尘灰处理窑尾除尘 |
颗粒物、二氧化硫、氮氧化物 |
1次/季 |
2021年第三季度至2022年第二季度 |
现场无此排放口 |
|
10 |
废水 |
轧钢一车间废水排放口 |
总砷、六价铬、总镉、总镍、总铬、总汞 |
1次/月 |
2022年3月份 |
因疫情原因未监测 |
|
11 |
废水 |
轧钢二车间废水排放口 |
总砷、六价铬、总镉、总镍、总铬、总汞 |
1次/月 |
2022年3月份 |
因疫情原因未监测 |
|
12 |
废水 |
1#高炉冲渣回用水 |
挥发酚 |
1次/周 |
2022.1.28 |
检修未生产 |
|
13 |
废水 |
1#高炉冲渣补水口 |
PH、悬浮物、化学需氧量、氨氮、挥发酚、氰化物 |
1次/周 |
2022年2月第一周 |
监测公司年休 |
|
14 |
废水 |
1#高炉冲渣回用水 |
挥发酚 |
1次/周 |
2022年2月第一周 |
监测公司年休 |
|
15 |
废水 |
2#高炉冲渣补水口 |
PH、悬浮物、化学需氧量、氨氮、挥发酚、氰化物 |
1次/周 |
2022年2月第四周 |
检修未生产 |
|
16 |
废水 |
2#高炉冲渣回用水 |
挥发酚 |
1次/周 |
2022年2月第四周 |
检修未生产 |
|
17 |
废水 |
2#高炉冲渣补水口 |
PH、悬浮物、化学需氧量、氨氮、挥发酚、氰化物 |
1次/周 |
2022.3.7 |
检修未生产 |
|
18 |
废水 |
2#高炉冲渣回用水 |
挥发酚 |
1次/周 |
2022.3.7 |
检修未生产 |
